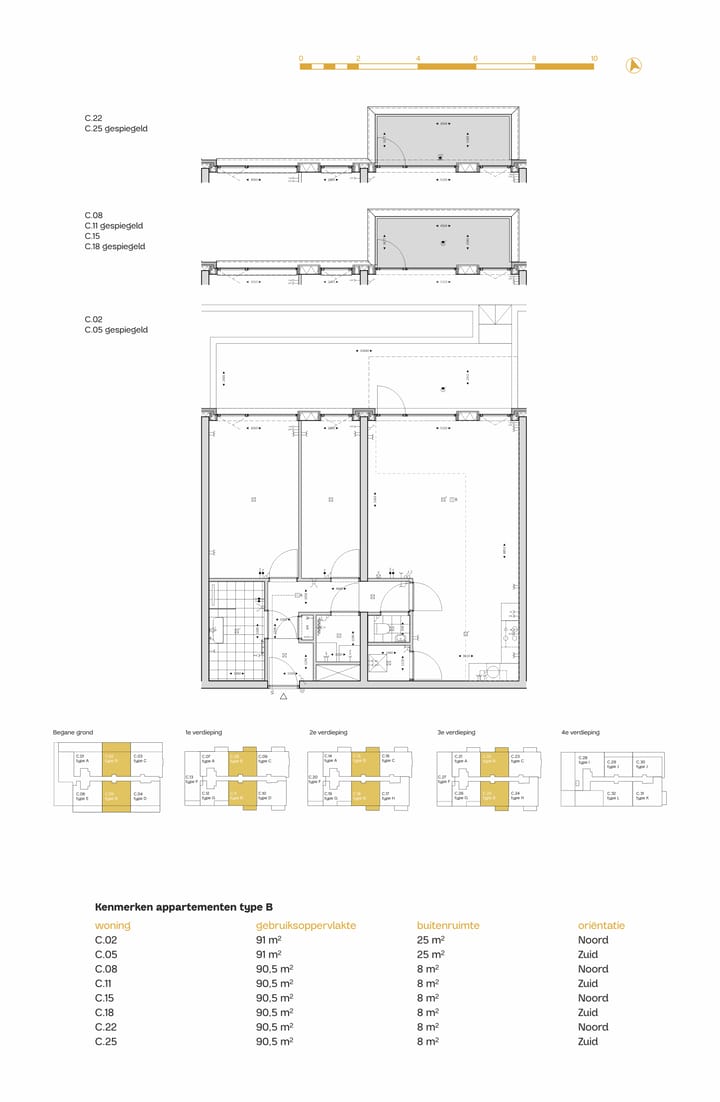
Princenpark Breda Gebouw C Type B (Bouwnr. C.08)4813 EA BredaPrincenhage
€ 471.000 v.o.n.
Kaart
- 91 m²
- 2
- A+++
Dit is de laatste beschikbare woning van dit type in project
Princenpark | Fase 1 | Appartementen & stadswoningen | Bouw gestart!Omschrijving
Advertentie
Kenmerken
Populariteit
1.942x
Bekeken
13x
Bewaard
15-1-2026
Op Funda
Buurt
Princenhage
Breda- Inwoners
- 8.995
- Gezin met kinderen
- 35%
- Gem. vraagprijs / m²
- € 4.368
Ontdek de buurt
Benieuwd naar het woningaanbod, bewoners en lokale makelaars?
Wil je dit huis niet vergeten?
Bewaar het als favoriet. Dan vind je ’m makkelijk terug en krijg je een seintje bij veranderingen.





