Bekijk de laatste beschikbare woning van dit type in project
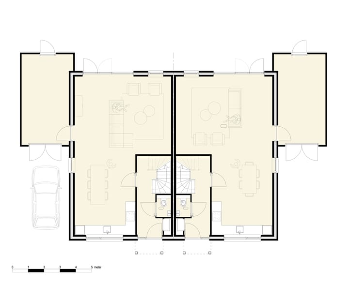
Uuleveld fase 2b, 3e serie, blok 12 & 13Omschrijving
Advertentie
Kenmerken
Populariteit
0x
Bekeken
0x
Bewaard
16-3-2026
Op Funda
Buurt
Pannerden
Pannerden- Inwoners
- 2.120
- Gezin met kinderen
- 34%
- Gem. vraagprijs / m²
- € 3.126
Ontdek de buurt
Benieuwd naar het woningaanbod, bewoners en lokale makelaars?
Wil je dit huis niet vergeten?
Bewaar het als favoriet. Dan vind je ’m makkelijk terug en krijg je een seintje bij veranderingen.





