Saftlevenstraat 353015 BL RotterdamOude Westen
€ 1.595 /mnd
- 70 m²wonen
Omschrijving
Nieuw in de verhuur; leuke masionettewoning op de begane grond met o.a. vloerverwarming en energielabel A+! Beschikbaar vanaf 1 april 2026.
Het moderne appartementencomplex is in 2021 opgeleverd en beschikt o.a. over een gemeenschappelijke fietsenberging in de onderbouw en twee liftinstallaties. Het complex is gelegen in het levendige wijk Oude Westen, onderdeel van Rotterdam Centrum. Het ligt recht tegenover het Erasmus MC.
Onderstaand het appartement kort samengevat:
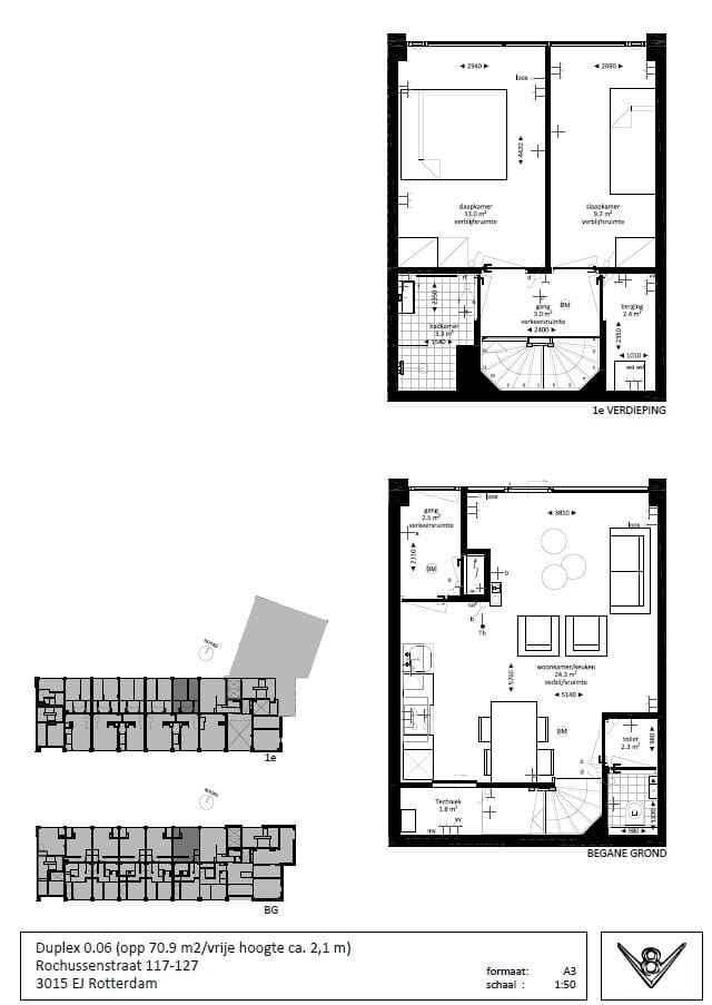
- Een woonoppervlak van ca. 70 m2;
- Op de begane grond bevindt zich de woonkamer met open keuken. De keuken is voorzien van inbouwapparatuur (merk: Inventum) waaronder een vaatwasser, combi-oven, inductiekookplaat, recirculatie afzuigkap en een koel-/vriescombinatie, de toiletruimte en de technische ruimte;
- Op de eerste verdieping bevinden zich 2 slaapkamers, de badkamer met glazen douchewand, een breed wastafelmeubel en een elektrische handdoekradiator en een bergingsruimte met aansluiting voor de wasmachine/droger;
Goed om te weten:
- Servicekosten bedragen € 47,00 per maand;
- Verwarming en warm water door middel van stadsverwarming;
- Parkeerplaats mogelijk in de ondergelegen parkeergarage (niet inbegrepen in de huurprijs).
Algemene huurvoorwaarden:
Uiteraard willen wij u als woningzoekende optimaal van dienst zijn. Om in aanmerking te komen voor één van onze huurwoningen, dient u aan een aantal voorwaarden te voldoen.
• Eénverdiener: 3,5 x bruto maandhuur als inkomenseis (incl. vaste toeslagen en vakantiegeld);
• Tweeverdieners: het tweede bruto salaris telt voor 100% mee;
• Waarborgsom: één maand kale huur;
• Bij een jaarcontract geldt dezelfde inkomenseis. Er is een verhoogde borg van 2 maanden in plaats van één;
• ZZP’ers: dezelfde inkomenseis met een verhoogde waarborgsom van 2 maanden in plaats van één;
• Bij een minimum salaris van 75% van de inkomenseis is een garantstelling van derden vereist (het maximale bedrag in de borgstellingsovereenkomst is één keer de jaarhuur);
• Huisdieren alleen na toestemming beheerder (na toestemming zal er een verhoogde borg van 2 maanden in plaats van één gelden);
• Overwaarde huidige woning en spaargelden kunnen slechts in zeer uitzonderlijke gevallen en geheel naar oordeel van beheerder worden meegenomen.
Bij zelfstandige ondernemers
• Een ingevulde accountantsverklaring of soortgelijk document voor ondernemers;
• Een ingevulde inkomensverklaring (eerder het IB60 formulier);
• Recente jaarcijfers;
• U dient minimaal jaarstukken van de laatste drie afgeronde jaren te laten zien. Indien er geen stukken van drie afgeronde jaren beschikbaar zijn, vindt er een extra toetsing naar oordeel van beheerder plaats;
• Recent gewaarmerkt uittreksel Kamer van Koophandel voor ondernemers (max. drie maanden oud)
Na uw reactie op de woning ontvangt u van ons een email om een eigen digitaal dossier (IDD) aan te maken en uw basisgegevens in te vullen. Ook ontvangt u een link naar Datakeeper om uw inkomensgegevens te delen. Alleen geverifieerde inkomens via Datakeeper worden meegenomen in de toewijzing.
DATAKEEPER EN PROCES
Om op een veilige en betrouwbare manier in aanmerking te kunnen komen voor één van onze huurwoningen vragen we u uw gegevens te verifiëren via de Datakeeper app. Datakeeper is een door de Rabobank ondersteunde applicatie op uw telefoon om op een veilige en snelle gebruiksvriendelijke manier uw inkomens- en persoonsgegevens met ons te delen. Via deze pagina willen we u graag informeren over het gebruik van Datakeeper. Wij adviseren u deze pagina zorgvuldig door te lezen en het stappenplan te doorlopen om uw inschrijving compleet te maken.
Met Datakeeper kunnen we uw privacy beter waarborgen en bent u zelf in controle over de verstuurde gegevens. Niemand anders heeft inzicht in de gegevens die op uw telefoon staan opgeslagen. U bepaalt daarmee zelf met wie en wanneer u uw gegevens deelt en u ziet precies welke gegevens worden verstuurd. Het compleet maken van uw inschrijving via Datakeeper is wel een voorwaarde om u in te kunnen schrijven voor één van onze huurwoningen. Inschrijvingen die niet compleet zijn doordat inkomens- en persoonsgegevens via Datakeeper ontbreken worden niet in behandeling genomen.
Voor nu vragen we u alvast te controleren of u beschikt over uw inloggegevens van DigiD. Het is niet mogelijk om in te loggen met de DigiD app. U moet dus in het bezit zijn van een gebruikersnaam en wachtwoord. Kijk op om te controleren of de sms-verificatie aanstaat. Op deze site van DigiD kunt u met de grote oranje button inloggen en het verifiëren per sms aanzetten.
Wilt u meer weten over Datakeeper? Ga dan naar Datakeeper.nl voor meer informatie of neem contact met ons op.
**Deze informatie is met de grootst mogelijke zorg samengesteld. Toch kunnen wij niet altijd voorkomen dat de informatie enigszins afwijkt van hetgeen je in of rond de woning ziet of hebt gezien. Dit kan met name gelden voor de brochure tekst, de plattegronden en maatvoeringen. Hieraan kunnen dan ook geen rechten worden ontleend.**
Advertentie
Kenmerken
Overdracht
- Aangeboden sinds
- Aanvaarding
- Per direct beschikbaar
- Huurprijs
- € 1.595 per maand (exclusief servicekosten à 47 per maand)
- Waarborgsom
- € 1.595 eenmalig
- Huurovereenkomst
- Onbepaalde tijd
- Status
- Beschikbaar
Bouw
- Soort appartement
- Portiekflat
- Soort bouw
- Bestaande bouw
- Bouwjaar
- 2021
- Specifiek
- Gedeeltelijk gestoffeerd
Oppervlakten en inhoud
- Gebruiksoppervlakten
- Wonen
- 70 m²
- Inhoud
- 210 m³
Indeling
- Aantal kamers
- 2 kamers
- Aantal woonlagen
- 10 woonlagen
- Gelegen op
- 1e woonlaag
Energie
- Energielabel
- Niet beschikbaar
- Isolatie
- Volledig geïsoleerd
VvE checklist
- Inschrijving KvK
- Nee
- Jaarlijkse vergadering
- Nee
- Periodieke bijdrage
- Nee
- Reservefonds aanwezig
- Nee
- Onderhoudsplan
- Nee
- Opstalverzekering
- Nee
Populariteit
715x
Bekeken
31x
Bewaard
11-3-2026
Op Funda
Buurt

Oude Westen
Rotterdam- Inwoners
- 9.635
- Gezin met kinderen
- 23%
- Gem. vraagprijs / m²
- € 5.015
Ontdek de buurt
Benieuwd naar het woningaanbod, bewoners en lokale makelaars?
Wil je dit huis niet vergeten?
Bewaar het als favoriet. Dan vind je ’m makkelijk terug en krijg je een seintje bij veranderingen.


