Verkocht
Landgoed Albergerveld7665 TD AlbergenVerspreide huizen Albergen
€ 1.200.000 v.o.n.
- 102.000 m²perceel
Verkoopgeschiedenis
- Aangeboden sinds
- 12 november 2024
- Verkoopdatum
- 8 januari 2026
- Looptijd
- 13½ maand
Omschrijving
In het weelderige landschap van Twente prijkt een uniek stukje paradijs: Landgoed Albergerveld.
ONTDEK DE KUNST VAN LANDELIJK WONEN!
Betreed de weelderige wereld van landelijk leven in Albergen, waar de kunst van het wonen tot leven komt op een majestueus landgoed. Omringd door een fenomenaal uitzicht, belichaamt dit landgoed een tijdloze elegantie en ongeëvenaarde grandeur. Hier wordt de kunst van het leven geperfectioneerd, met een weelderige tuin en als canvas en eigentijds landhuis als meesterwerk. Een harmonieus samenspel van luxe en natuurlijke pracht creëert een exclusieve levensstijl, waar het dagelijkse leven een meeslepend kunstwerk wordt. Ontdek de allure van wonen op een landgoed in
Albergen, waar elke dag een ode is aan de kunst van het bestaan.
ALLURE VERANKERD IN HET LANDSCHAP
Betreed een wereld waar architecturale innovatie versmelt met de natuurlijke harmonie van het landschap. Uw moderne villa, een tijdloos meesterwerk verankerd in weelderige weiden en majestueuze vergezichten.
Hier kun je de stilte nog horen…
Geniet van de exclusiviteit van het NSW-statuut, waarmee niet alleen het landgoed wordt beschermd maar ook unieke fiscale voordelen worden geboden. Dit betekent niet alleen het bezit van een weelderig stuk land, maar ook een zorgvuldige verbinding met de geschiedenis en de mogelijkheid om te genieten van een uitzonderlijke levensstijl.
EEN NSW LANDGOED - VOORDELEN
Een NSW landgoed in Twente dat exclusiviteit en verfijnde elegantie ademt. Verspreid over uitgestrekte gronden omarmt dit landgoed de schoonheid van de natuur, terwijl het een zeldzame combinatie van privacy en grandeur biedt.
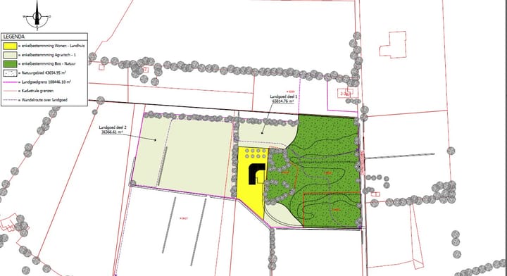
Aantal hectare van het landgoed: 10,2
Maximale inhoud van het landhuis in m³: 2000
Voordelen:
- Overdrachtsbelasting:
Voor de overdrachtsbelasting geldt een gehele vrijstelling. Voorwaarde is dat het landgoed minimaal 25 jaar als NSW landgoed in stand moet worden gehouden anders moet de belasting alsnog worden betaald.
- Schenkbelasting en erfbelasting:
De schenk- en erfbelasting maakt onderscheid tussen opengestelde en niet opengestelde landgoederen. Voor opengestelde landgoederen wordt de waarde waarover de heffing plaatsvindt op € 0 gesteld. Opengestelde landgoederen zijn dus volledig vrijgesteld van schenk- en erfbelasting. Over niet-opengestelde landgoederen wordt schenk- en erfbelasting geheven over de helft van de waarde. Om deze voordelen definitief te verkrijgen moet het verkregen landgoed gedurende 25 jaar gerangschikt blijven en gedurende 25 jaar in bezit worden gehouden door de verkrijger(s).
- Aankoop door een rechtspersoon:
Het is mogelijk om een landgoed aan te kopen door een rechtspersoon zoals een B.V.. Voor de B.V. kan een vrijstelling van de vennootschapsbelasting gelden. Het landgoed moet dan het voornaamste bezit zijn van de B.V., het doel van de B.V. is het in stand houden van het landgoed en de B.V. mag verder geen onderneming drijven. Voor de schenk- en erfbelasting worden de aandeelhouders van de BV, binnen bepaalde voorwaarden, geacht direct het landgoed te bezitten. Dit wordt fiscale transparantie genoemd. Het gevolg is dat de aandeelhouders een beroep kunnen doen op de vrijstelling voor de schenk- en erfbelasting.
Deze samenvatting is globaal en algemeen, hieraan kunnen geen rechten worden ontleend. Voor de voor u specifieke (fiscale) gevolgen raden wij u aan een fiscaal of NSW gespecialiseerde adviseur te raadplegen. Voor aanvullende informatie kunt u de brochure van Rijksdienst voor Ondernemend Nederland raadplegen.
Heeft u interesse? Wij vertellen u er graag meer over!
Wilt u meer weten over de mogelijkheden over wonen op Landgoed Albergerveld? Dan vragen wij u om telefonisch of per e-mail contact met ons op te nemen voor een afspraak.
De VON prijs vermeld in de presentatie is voor een gedeelte van het Landgoed. De koopsom voor het geheel is € 1.700.000
Advertentie
Kenmerken
Overdracht
- Laatste vraagprijs
- € 1.200.000 vrij op naam
- Status
- Verkocht
Bouw
- Soort object
- Bouwgrond
- Bouwrijp
- Nee
Indeling
- Perceel
- 102.000 m²
Buitenruimte
- Ligging
- Aan bosrand, beschutte ligging, buiten bebouwde kom, in bosrijke omgeving, landelijk gelegen, open ligging en vrij uitzicht
Populariteit
23.339x
Bekeken
205x
Bewaard
11-11-2024
Op Funda
Buurt

Verspreide huizen Albergen
Albergen- Inwoners
- 1.275
- Gezin met kinderen
- 43%
Ontdek de buurt
Benieuwd naar het woningaanbod, bewoners en lokale makelaars?
Wil je dit huis niet vergeten?
Bewaar het als favoriet. Dan vind je ’m makkelijk terug en krijg je een seintje bij veranderingen.




