Kanaaldijk 296-B41825 DB Alkmaar't Rak-Zuid
€ 389.500 k.k.
- 64 m²wonen
- 2slaapkamers
- A+++energielabel
Omschrijving
NIEUWBOUW ZONDER TE WACHTEN! OPLEVERING 2026
GEWILD PROJECT BUITENVAART 1e FASE INCL PARKEERPLAATS
Te koop: modern 3-kamer nieuwbouwappartement met balkon
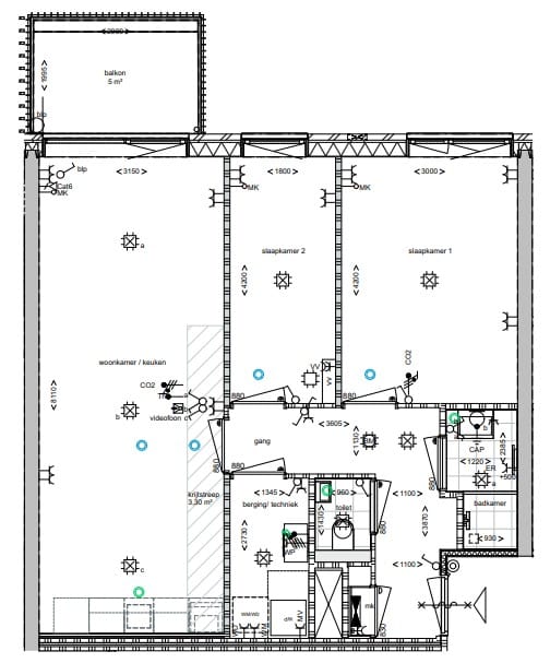
In dit moderne nieuwbouwappartement woon je straks comfortabel, energiezuinig en helemaal klaar voor de toekomst. Het appartement ligt op de 1e verdieping en biedt alles voor een ontspannen woonstijl: een lichte woonkamer met open keuken, twee slaapkamers en een fijn balkon waar je heerlijk buiten kunt zitten.
De woning maakt deel uit van een duurzaam nieuwbouwproject dat momenteel in aanbouw is. De verwachte oplevering is Q4 2026. Een unieke kans om nu al eigenaar te worden van een gloednieuw appartement nog vóór oplevering!
Wonen met comfort
Via de gezamenlijke entree kom je binnen in de hal van het appartement. Hier bevinden zich direct de badkamer, het toilet en twee slaapkamers. Aan het einde van de hal stap je de lichte woonkamer met open keuken binnen. De keuken kun je nog volledig naar eigen smaak inrichten, ideaal om je toekomstige thuis een persoonlijke touch te geven. De woonkamer biedt voldoende ruimte voor een gezellige zithoek en eettafel. Vanuit hier stap je zo het balkon op, waar je in de zomermaanden fijn kunt genieten van de buitenlucht.
In de technische ruimte is plaats voor de wasmachine en extra bergruimte. Bovendien beschikt het appartement over een eigen parkeerplaats in de kelder.
Duurzaam en energiezuinig
De woning is voorzien van vloerverwarming in alle ruimtes en wordt verwarmd met een bodemwarmtepomp. Zo geniet je van een prettig binnenklimaat, lagere energiekosten en woon je volledig toekomstgericht.
Let op: de warmtepomp is niet standaard bij de koopsom inbegrepen. Als koper kun je kiezen of je deze wilt kopen of huren. Zodra de verkoopdocumentatie beschikbaar is, ontvang je de informatiefolder van Eneco.
Warmtepomp: Informatie hierover is op te vragen bij de makelaar.
Belangrijk om te weten:
- Verwachte oplevering: Q4 2026
- Nieuwbouwproject verkoop door huidige koper (doorverkoop in aanbouw)
- Concept servicekosten VvE: appartement: € 144,41 parkeerplaats: € 23,85 per maand
- 3 kamers (2 slaapkamers)
- Balkon op de 1e verdieping
- Vloerverwarming en balansventilatie
- Woning is incl. sanitair
- Gasloos met bodemwarmtepomp via Eneco ( huur of koop)
- (Voorlopig) energielabel is A+++
- Eigen parkeerplaats in stallingsgarage aanwezig
- Projectnotaris: Erkamp Boot en Willemsen
Een prachtig nieuwbouwappartement waar je straks direct kunt genieten van comfortabel wonen, zonder nog jaren te hoeven wachten op de bouwstart. Wij maken graag een afspraak op kantoor, zodat we alle stukken kunnen doornemen.
Advertentie
Kenmerken
Overdracht
- Oorspronkelijke vraagprijs
- € 395.000 kosten koper
- Aangeboden sinds
- Aanvaarding
- In overleg
- Vraagprijs
- € 389.500 kosten koper
- Vraagprijs per m²
- € 6.086
- Status
- Beschikbaar
- Bijdrage VvE
- € 168,26 per maand
Bouw
- Soort appartement
- Portiekflat (appartement)
- Soort bouw
- Nieuwbouw
- Bouwjaar
- 2025
- Soort dak
- Plat dak
- Keurmerken
- SWK Garantiecertificaat
Oppervlakten en inhoud
- Gebruiksoppervlakten
- Wonen
- 64 m²
- Gebouwgebonden buitenruimte
- 5 m²
- Inhoud
- 170 m³
Indeling
- Aantal kamers
- 3 kamers (2 slaapkamers)
- Aantal badkamers
- 1 badkamer en 1 apart toilet
- Badkamervoorzieningen
- Douche en wastafel
- Aantal woonlagen
- 1 woonlaag
- Voorzieningen
- Balansventilatie, lift, en mechanische ventilatie
- Gelegen op
- 1e woonlaag
Energie
- Energielabel
- A+++
- Isolatie
- Volledig geïsoleerd
- Verwarming
- Gehele vloerverwarming, warmte terugwininstallatie en warmtepomp
Kadastrale gegevens
- ALKMAAR K
- Kadastrale kaart
- Eigendomssituatie
- Volle eigendom
- ALKMAAR K
- Kadastrale kaart
- Eigendomssituatie
- Volle eigendom
Buitenruimte
- Ligging
- In woonwijk en vrij uitzicht
- Balkon/dakterras
- Balkon aanwezig
Garage
- Soort garage
- Parkeerplaats
Parkeergelegenheid
- Soort parkeergelegenheid
- Openbaar parkeren en parkeergarage
VvE checklist
- Inschrijving KvK
- Ja
- Jaarlijkse vergadering
- Ja
- Periodieke bijdrage
- Ja (€ 168,26 per maand)
- Reservefonds aanwezig
- Ja
- Onderhoudsplan
- Ja
- Opstalverzekering
- Ja
Populariteit
2.974x
Bekeken
47x
Bewaard
11-2-2026
Op Funda
Buurt

't Rak-Zuid
Alkmaar- Inwoners
- 3.655
- Gezin met kinderen
- 36%
- Gem. vraagprijs / m²
- € 3.933
Ontdek de buurt
Benieuwd naar het woningaanbod, bewoners en lokale makelaars?
Wil je dit huis niet vergeten?
Bewaar het als favoriet. Dan vind je ’m makkelijk terug en krijg je een seintje bij veranderingen.




