Aletta Jacobsstraat 671349 HB AlmereOosterwold Noord
€ 495.000 k.k.
- 57 m²wonen
- 215 m²perceel
- 1slaapkamer
- A+++energielabel
BlikvangerSpeelse nieuw te bouwen woning in het prachtige Oosterwold!!
Omschrijving
Compact wonen in stijl – duurzame nieuwbouw in het groene hart van Oosterwold:
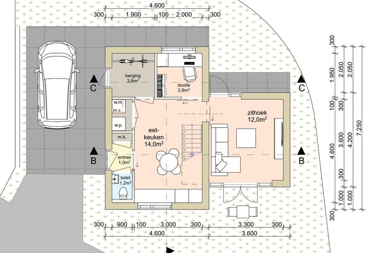
Een moderne uitstraling, een efficiënte indeling en een hoogwaardige afwerking komen samen in deze duurzame compacte woning in Almere Oosterwold. Met circa 57 m² gebruiksoppervlakte, verdeeld over twee woonlagen, biedt deze nieuw te bouwen woning verrassend veel comfort. De bouw vindt plaats volgens een energiezuinige houtskeletbouwconstructie en de woning wordt volledig gasloos uitgevoerd.
Strakke indeling, maximaal wooncomfort:
De begane grond is ontworpen met oog voor ruimte en licht. Aan de voorzijde bevindt zich de entree met direct daarnaast het toilet. Vanuit de hal stap je de open leefruimte binnen, waar aan de tuinzijde een lichte zithoek is gesitueerd. Centraal in de ruimte ligt de eetkeuken met voldoende plek voor een royale eettafel. Ook is er op de begane grond een aparte studiehoek en een praktische inpandige berging of bijkeuken.
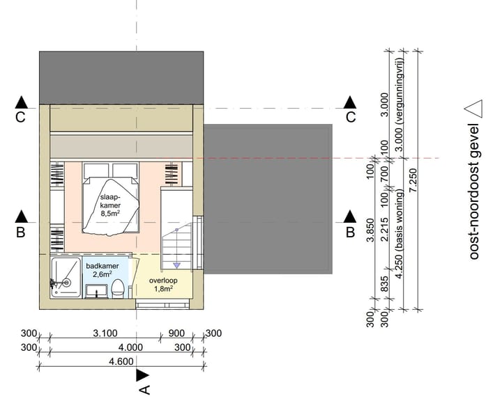
Op de verdieping is ruimte voor een lichte slaapkamer aan de achterzijde, een badkamer aan de voorzijde en een overloop met aansluitingen voor de wasmachine. Door de slimme indeling en grote raampartijen voelt deze verdieping opvallend ruim en licht.
Hoogwaardige bouw en afwerking:
De woning wordt gebouwd in een moderne houtskeletconstructie. Het casco wordt in de fabriek voorbereid en op locatie gemonteerd met behulp van kraanwerk. De gevels worden afgewerkt met thermisch gemodificeerd vuren in een strakke verticale profilering, passend bij de hedendaagse architectuur van Oosterwold.
De woning krijgt een houten, geïsoleerde begane-grondvloer op schroefpalen, volledig afgestemd op het lichte en duurzame karakter van houtskeletbouw. De binnenwanden bestaan uit een geïsoleerde houtconstructie met OSB- en gipsafwerking aan beide zijden. Het dak wordt uitgevoerd als een plat dak met EPDM-dakbedekking, dakopstanden, dakisolatie en een dampdichte laag.
Alle kozijnen worden uitgevoerd in kunststof met HR+++ beglazing en ventilatiestroken. Binnen wordt de woning voorbereid op de verdere aanleg van elektra, ventilatie en drinkwaterinstallaties. Rondom de woning worden de benodigde grondwerkzaamheden uitgevoerd, waaronder het uitgraven van het bouwwerk, het aanbrengen van schoon zand en de aanleg van de buitenriolering. Hemelwater wordt afgevoerd via zinken hemelwaterafvoeren.
Aanpassingen in de bouw en afwerking kunnen in overleg met de bouwer worden besproken; eventuele wijzigingen kunnen leiden tot meer- of minderwerk.
Techniek en duurzaamheid:
De woning wordt volledig gasloos gebouwd. Verwarmen en koelen gebeurt via airco’s, die onderdeel uitmaken van de technische voorbereiding. Ook ventilatie en waterinstallaties worden tijdens de bouw geïntegreerd. Hiermee ontstaat een moderne en energiezuinige woning die klaar is voor de toekomst.
Wonen in Oosterwold – vrijheid, natuur en gemeenschapszin:
De Aletta Jacobsstraat ligt in het bijzondere Oosterwold, waar duurzaamheid, vrijheid en eigen initiatief centraal staan. Je woont hier in het groen, in een omgeving die uitnodigt tot stadslandbouw, eigen invulling van je perceel en een sterke gemeenschapszin.
De straat heeft een verzorgde uitstraling en wordt beheerd door Kavelwegvereniging “De Valk”, wat bijdraagt aan een nette, veilige en groene leefomgeving.
In de directe omgeving vind je onder meer:
• Basisschool De Verbeelding
• Kinderopvang voor jonge kinderen
• Winkels en supermarkten op korte afstand
• Medimere gezondheidscentrum
• Golfbaan Almeerderhout
• Stadslandgoed De Kemphaan
Sinds het najaar van 2025 is Oosterwold bovendien beter bereikbaar dankzij een buurtbusdienst die aansluit op de stadsbus.
In het kort:
• Circa 57 m² gebruiksoppervlakte
• Doordachte indeling met werkhoek, berging, slaapkamer en badkamer
• Hoogwaardige houtskeletbouw
• Gasloos, met verwarming en koeling via airco’s
• Voorbereiding voor elektra, drinkwater en ventilatie
• Gelegen aan de verzorgde Aletta Jacobsstraat in Oosterwold
• Nabij scholen, kinderopvang, winkels en recreatie
• Perceeloppervlak circa 215 m², inclusief aandeel in de weg
De tekeningen en impressies zijn met zorg gemaakt maar zijn een impressie. De werkelijkheid kan afwijken.
Overdrachtsbelasting over de grond per 1-1-2026 8% ipv 10,4%. Verkoper is bereid mee te werken aan het eerder plaatsen van de fundering hetgeen een extra verlaging van de overdrachtsbelasting kan betekenen naar 2% of zelfs 0%.
Advertentie
Kenmerken
Overdracht
- Aangeboden sinds
- Aanvaarding
- In overleg
- Vraagprijs
- € 495.000 kosten koper
- Vraagprijs per m²
- € 8.684
- Status
- Beschikbaar
Bouw
- Soort woonhuis
- Eengezinswoning, vrijstaande woning
- Soort bouw
- Nieuwbouw
- Bouwjaar
- 2026
- Soort dak
- Samengesteld dak
Oppervlakten en inhoud
- Gebruiksoppervlakten
- Wonen
- 57 m²
- Perceel
- 215 m²
- Inhoud
- 158 m³
Indeling
- Aantal kamers
- 3 kamers (1 slaapkamer)
- Aantal badkamers
- 1 badkamer
- Badkamervoorzieningen
- Douche, toilet, en wastafel
- Aantal woonlagen
- 2 woonlagen
- Voorzieningen
- Airconditioning, glasvezelkabel, mechanische ventilatie, en zonnepanelen
Energie
- Energielabel
- A+++
- Isolatie
- Volledig geïsoleerd
- Verwarming
- Warmtepomp
- Warm water
- Elektrische boiler
Kadastrale gegevens
- ALMERE C 5315
- Kadastrale kaart
- Oppervlakte
- 215 m² (deelperceel)
- Eigendomssituatie
- Volle eigendom
Buitenruimte
- Ligging
- Aan rustige weg, in bosrijke omgeving, in woonwijk en landelijk gelegen
- Tuin
- Tuin rondom
Garage
- Soort garage
- Parkeerplaats
Parkeergelegenheid
- Soort parkeergelegenheid
- Op eigen terrein
Populariteit
3.770x
Bekeken
20x
Bewaard
30-11-2025
Op Funda
Buurt
Ontdek de buurt
Benieuwd naar het woningaanbod, bewoners en lokale makelaars?
Wil je dit huis niet vergeten?
Bewaar het als favoriet. Dan vind je ’m makkelijk terug en krijg je een seintje bij veranderingen.




