Verkocht
Sint Janskruidlaan 3541187 ED AmstelveenKruidenbuurt
€ 365.000 k.k.
- 53 m²wonen
- 1slaapkamer
- Aenergielabel
Verkoopgeschiedenis
- Aangeboden sinds
- 5 juli 2025
- Verkoopdatum
- 23 juli 2025
- Looptijd
- 2 weken
Omschrijving
Wat een fijne plek! Dit leuke tweekamerappartement van ca. 53 m² heeft een heerlijk zonnig balkon met uitzicht op sierwater. Het appartement bevindt zich op de derde verdieping van een goed onderhouden complex. Deze duurzame woning heeft energielabel A en is netjes én goed onderhouden. Je hoeft alleen nog maar je spullen uit te pakken en te gaan wonen!
***English version below***
Bekijk ook onze virtuele tour!
Het appartement bevindt zich in de rustige en groene wijk Westwijk, in het zuidwesten van Amstelveen. Er is ruim voldoende plek om te parkeren voor de deur, ook voor bezoek. Voor de dagelijkse boodschappen kun je terecht in het winkelcentrum Westwijk, dat praktisch om de hoek ligt. Zin in een middagje uitgebreid shoppen? Dan zijn zowel het Stadshart Amstelveen als het centrum van Amsterdam goed bereikbaar met tram 25. Binnen 25 minuten sta je op Station Zuid. En met de auto ben je zo op de snelweg richting Amsterdam, Utrecht of Den Haag.
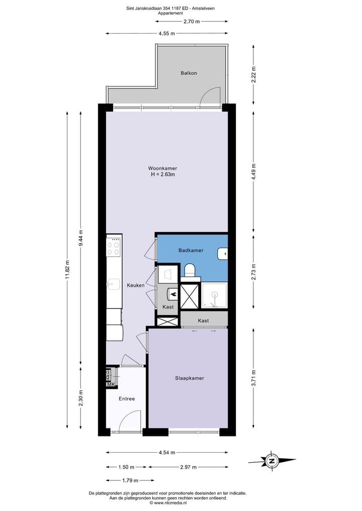
Indeling:
Via de afgesloten entree met het trappenhuis en de lift bereik je de woning op de derde verdieping.
Aangekomen op de etage kom je eerst in een ruime, afgesloten hal met de meterkast. Vanuit hier stap je de woning binnen.
De woonkamer bevindt zich aan de achterzijde en voelt dankzij de grote raampartijen heerlijk licht aan. De strakke wanden en de lichte zandkleurige tegelvloer geven de ruimte een moderne en rustige uitstraling. Vanuit de woonkamer loop je zo het balkon op.
In het midden van de woning vind je de open keuken, afgewerkt met een fraai composiet aanrechtblad. De keuken is van alle gemakken voorzien: een inductiekookplaat, afzuigkap, vaatwasser, oven, koel-vriescombinatie én een aparte koelkast maken het geheel compleet.
Aan de voorzijde ligt de ruime slaapkamer, voorzien van een grote inbouw garderobekast en genoeg plek voor een tweepersoonsbed.
De moderne badkamer is volledig betegeld en uitgerust met een douche, wastafel en een zwevend toilet.
De wasmachine- en drogeropstelling vind je in een aparte ruimte, waar ook extra opbergruimte beschikbaar is.
Het appartement is uitgerust met warmte- en koudeopslag. De vloerverwarming verwarmt het appartement in de winter en koelt in de zomer.
Balkon:
Het ruime balkon van 7 m² ligt gunstig op het westen, waardoor je hier tot in de avond van de zon kunt genieten. Een fijne, rustige plek met volop privacy en een vrij uitzicht over het sierwater, ideaal om even te ontspannen na een lange dag.
In de onderbouw van het complex is een ruime, gezamenlijke fietsenberging aanwezig – ideaal voor het veilig en droog stallen van je fiets.
Bijzonderheden:
- woonoppervlakte ca. 53 m² (conform NEN 2580 ingemeten en meetrapport aanwezig);
- energielabel A;
- instapklaar 2- kamer appartement;
- vrij uitzicht aan voor- en achterzijde;
- balkon op het westen;
- complex met lift en gemeenschappelijke afgesloten fietsenstalling;
- warmte terugwin unit aanwezig;
- vloerverwarming en -koeling;
- kunststof kozijnen met HR++ glas;
- glasvezelkabel;
- videofoonsysteem;
- servicekosten VvE € 155,95 per maand inclusief voorschot warmte, water en bijdrage WKO-belangenvereniging;
- gratis parkeren rondom het complex;
- goede locatie t.o.v. OV (bus- en tramhalte).
Hebben wij jouw interesse ook gewekt?
Dan nodigen we je graag uit deze woning eens van binnen te bekijken.
***English version***
What a lovely place! This charming two-room apartment of approx. 53 m² has a lovely sunny balcony overlooking ornamental water. The apartment is located on the third floor of a well-maintained complex. This sustainable home has energy label A and is neat and well maintained. All you have to do is unpack your things and move in!
Check out our virtual tour!
The apartment is located in the quiet and green Westwijk neighbourhood, in the southwest of Amstelveen. There is plenty of parking space in front of the door, also for visitors. For your daily shopping, you can visit the Westwijk shopping centre, which is practically around the corner. Fancy an afternoon of shopping? Both Stadshart Amstelveen and the centre of Amsterdam are easily accessible by tram 25. Within 25 minutes you are at Station Zuid. And by car you can quickly reach the motorway to Amsterdam, Utrecht or The Hague.
Layout:
Through the enclosed entrance with the staircase and lift, you reach the apartment on the third floor.
Upon arriving on the floor, you first enter a spacious, enclosed hall with the meter cupboard. From here, you enter the apartment.
The living room is located at the rear and feels wonderfully light thanks to the large windows. The sleek walls and light sand-coloured tile floor give the space a modern and calm look. From the living room, you can walk straight onto the balcony.
In the middle of the house, you will find the open kitchen, finished with a beautiful composite worktop. The kitchen is fully equipped: an induction hob, extractor hood, dishwasher, oven, fridge-freezer and a separate refrigerator complete the picture.
At the front is the spacious bedroom, equipped with a large built-in wardrobe and enough space for a double bed.
The modern bathroom is fully tiled and equipped with a shower, washbasin and a floating toilet.
The washing machine and dryer are located in a separate room, which also offers additional storage space.
The apartment is equipped with heat and cold storage. The underfloor heating warms the apartment in winter and cools it in summer.
Balcony:
The spacious 7 m² balcony is conveniently located on the west side, allowing you to enjoy the sun until the evening. A nice, quiet place with plenty of privacy and an unobstructed view of the decorative water feature, ideal for relaxing after a long day.
In the basement of the complex there is a spacious, communal bicycle storage room – ideal for storing your bicycle safely and dry.
Details:
- living area approx. 53 m² (measured in accordance with NEN 2580 and measurement report available);
- energy label A;
- ready-to-move-in 2-room apartment;
- unobstructed view at the front and rear;
- west-facing balcony;
- complex with lift and communal enclosed bicycle storage;
- heat recovery unit available;
- underfloor heating and cooling;
- plastic window frames with HR++ glass;
- fibre optic cable;
- Videophone system;
- Service costs VvE € 155.95 per month including advance payment for heating, water and contribution to WKO interest group;
- Free parking around the complex;
- Good location in relation to public transport (bus and tram stop).
Have we piqued your interest?
Then we would like to invite you to come and view this property.
Advertentie
Kenmerken
Overdracht
- Servicekosten
- € 156 per maand
- Laatste vraagprijs
- € 365.000 kosten koper
- Vraagprijs per m²
- € 6.887
- Status
- Verkocht
- Bijdrage VvE
- € 155,95 per maand
Bouw
- Soort appartement
- Galerijflat (appartement)
- Soort bouw
- Bestaande bouw
- Bouwjaar
- 2011
- Soort dak
- Plat dak bedekt met bitumineuze dakbedekking
Oppervlakten en inhoud
- Gebruiksoppervlakten
- Wonen
- 53 m²
- Gebouwgebonden buitenruimte
- 7 m²
- Inhoud
- 174 m³
Indeling
- Aantal kamers
- 2 kamers (1 slaapkamer)
- Aantal badkamers
- 1 badkamer
- Badkamervoorzieningen
- Douche, toilet, en wastafel
- Aantal woonlagen
- 1 woonlaag
- Voorzieningen
- Lift, mechanische ventilatie, TV kabel, en zonnepanelen
- Gelegen op
- 3e woonlaag
Energie
- Energielabel
- A
- Isolatie
- Dakisolatie, dubbel glas, HR-glas, muurisolatie, vloerisolatie en volledig geïsoleerd
- Verwarming
- Warmte terugwininstallatie
- Warm water
- Centrale voorziening
Kadastrale gegevens
- AMSTELVEEN O 8283
- Kadastrale kaart
- Eigendomssituatie
- Volle eigendom
Buitenruimte
- Ligging
- Aan rustige weg, in woonwijk en vrij uitzicht
- Balkon/dakterras
- Balkon aanwezig
Parkeergelegenheid
- Soort parkeergelegenheid
- Openbaar parkeren
VvE checklist
- Inschrijving KvK
- Ja
- Jaarlijkse vergadering
- Ja
- Periodieke bijdrage
- Nee
- Reservefonds aanwezig
- Ja
- Onderhoudsplan
- Ja
- Opstalverzekering
- Ja
Populariteit
2.689x
Bekeken
50x
Bewaard
4-7-2025
Op Funda
Buurt

Kruidenbuurt
Amstelveen- Inwoners
- 2.600
- Gezin met kinderen
- 52%
- Gem. vraagprijs / m²
- € 6.618
Ontdek de buurt
Benieuwd naar het woningaanbod, bewoners en lokale makelaars?
Wil je dit huis niet vergeten?
Bewaar het als favoriet. Dan vind je ’m makkelijk terug en krijg je een seintje bij veranderingen.




