Verkocht onder voorbehoud
Polderwijk fase 3 | Bouwnummer 043 (Bouwnr. 043)2661 AA BergschenhoekWilderszijde
€ 595.000 v.o.n.
Kaart
- 121 m²
- 4
Bekijk alle beschikbare woningen in project
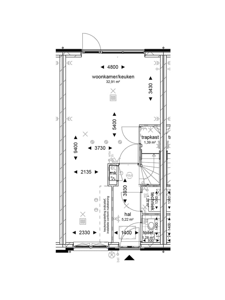
Polderwijk fase 3Omschrijving
Advertentie
Kenmerken
Populariteit
1.181x
Bekeken
37x
Bewaard
19-1-2026
Op Funda
Buurt
Wilderszijde
Bergschenhoek- Inwoners
- 685
- Gezin met kinderen
- 67%
Ontdek de buurt
Benieuwd naar het woningaanbod, bewoners en lokale makelaars?
Wil je dit huis niet vergeten?
Bewaar het als favoriet. Dan vind je ’m makkelijk terug en krijg je een seintje bij veranderingen.



