Verkocht
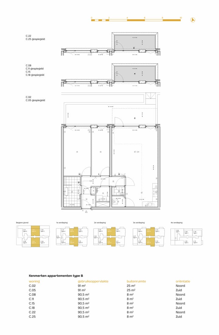
Princenpark Breda Gebouw C Type B (Bouwnr. C.08)4813 EA BredaPrincenhage
€ 471.000 v.o.n.
Kaart
- 91 m²
- 2
- A+++
Onderdeel van project Princenpark | Appartementen & stadswoningen | Bouw gestart! | 80% verkocht |, Breda
Verkoopgeschiedenis
- Aangeboden sinds
- 1 april 2025
- Verkoopdatum
- 22 december 2025
- Looptijd
- 8½ maand
Omschrijving
Advertentie
Kenmerken
Populariteit
0x
Bekeken
0x
Bewaard
1-4-2025
Op Funda
Buurt
Ontdek de buurt
Benieuwd naar het woningaanbod, bewoners en lokale makelaars?
Wil je dit huis niet vergeten?
Bewaar het als favoriet. Dan vind je ’m makkelijk terug en krijg je een seintje bij veranderingen.




