Onder optie
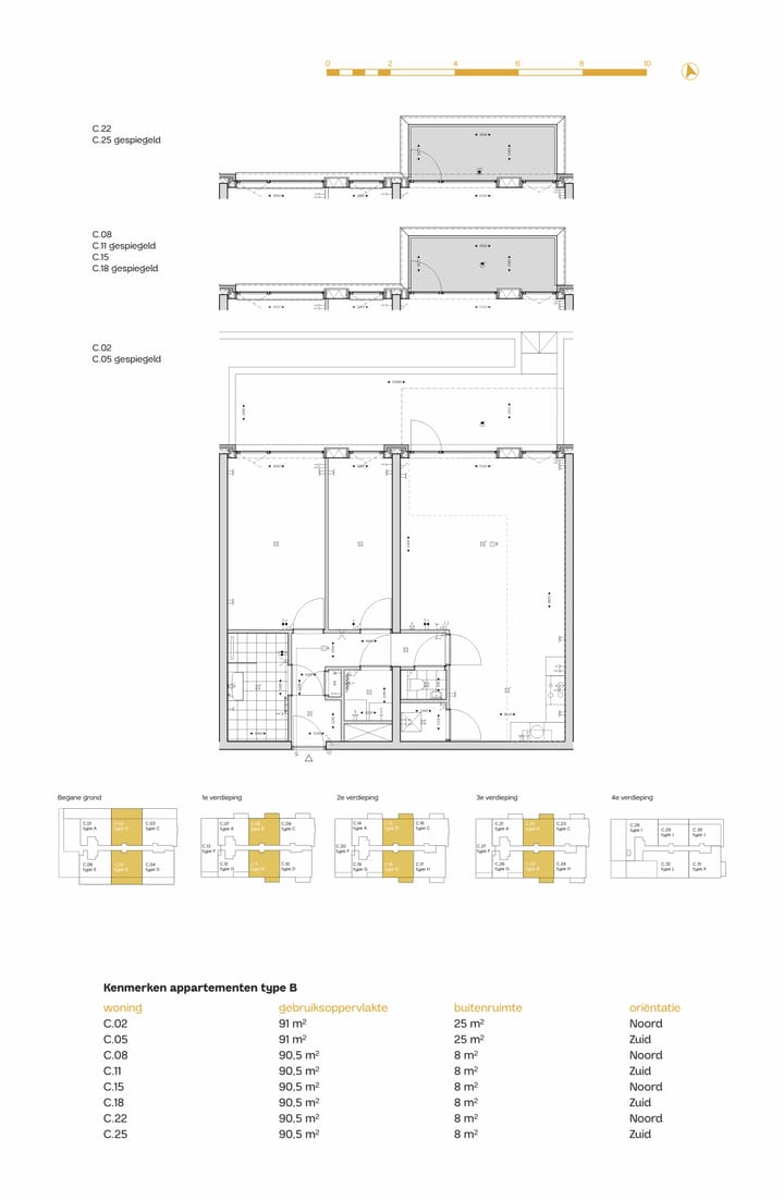
Princenpark Breda Gebouw C Type B (Bouwnr. C.15)4813 EA BredaPrincenhage
€ 474.000 v.o.n.
Kaart
- 91 m²
- 2
- A+++
Onderdeel van project
Bekijk de laatste beschikbare woning van dit type in project
Princenpark | Appartementen & stadswoningen | Bouw gestart! | 85% verkocht |Omschrijving
Advertentie
Kenmerken
Populariteit
832x
Bekeken
5x
Bewaard
1-4-2025
Op Funda
Buurt
Princenhage
Breda- Inwoners
- 8.995
- Gezin met kinderen
- 35%
- Gem. vraagprijs / m²
- € 4.283
Ontdek de buurt
Benieuwd naar het woningaanbod, bewoners en lokale makelaars?
Wil je dit huis niet vergeten?
Bewaar het als favoriet. Dan vind je ’m makkelijk terug en krijg je een seintje bij veranderingen.





