Onder optie
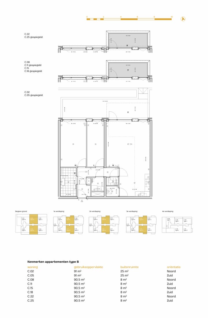
Princenpark Breda Gebouw C Type B (Bouwnr. C.22)4813 EA BredaPrincenhage
€ 477.000 v.o.n.
Kaart
- 2
- A+++
Bekijk de laatste beschikbare woning van dit type in project
Princenpark | Fase 1 | Appartementen & stadswoningen | Bouw gestart!Omschrijving
Advertentie
Kenmerken
Populariteit
623x
Bekeken
9x
Bewaard
1-4-2025
Op Funda
Buurt
Princenhage
Breda- Inwoners
- 8.995
- Gezin met kinderen
- 35%
- Gem. vraagprijs / m²
- € 4.387
Ontdek de buurt
Benieuwd naar het woningaanbod, bewoners en lokale makelaars?
Wil je dit huis niet vergeten?
Bewaar het als favoriet. Dan vind je ’m makkelijk terug en krijg je een seintje bij veranderingen.





