Misterstraat 5-A7126 CA BredevoortBredevoort
€ 499.005 v.o.n.
- 160 m²wonen
- 292 m²perceel
- 3slaapkamers
- A+++energielabel
Omschrijving
BOUWEN IN BREDEVOORT
Waar eeuwenoude straatjes verhalen vertellen over vestingwerken, boeken en belegeringen, krijgt ook het gezinsleven hier alle ruimte. In het hart van historisch Bredevoort verrijst deze royale 2-onder-1-kap casco nieuwbouwwoning: een comfortabel en eigentijds familiehuis dat naadloos aansluit bij de sfeer van het vestingstadje. Met volop leefruimte, genoeg slaapkamers en een prettige indeling is dit een woning waarin het hele gezin zich direct thuis voelt. Een fijne plek om samen te leven, te groeien en herinneringen te maken en dat midden in de charme van toen, met het comfort van nu.
BINNENKIJKEN
In gedachten krijgt de rechterhelft van deze nieuwbouwwoning vorm, waarbij ruimte, comfort en vrijheid qua afwerking centraal staan. Parkeren gaat gemakkelijk aan de zijkant van de woning, waar tevens de entree is gesitueerd. Via de hal, met toilet en meterkast, lopen we door naar de woonkamer aan de voorzijde. Een fijne plek om uit te kijken over de straat en alvast na te denken over de ideale zithoek. Aan de achterzijde ontvouwt zich de gezellige woonkeuken met openslaande tuindeuren naar de tuin, waar binnen- en buitenleven moeiteloos in elkaar overlopen. De naastgelegen bijkeuken zal in de dagelijkse praktijk veel worden gebruikt als binnenkomst en biedt ruimte voor de opstelling van witgoed en de warmtepomp als kloppend hart van de woning.
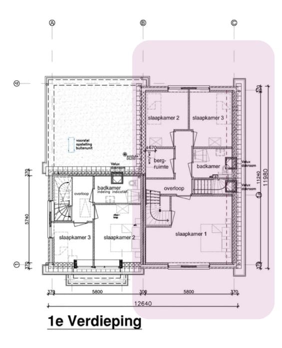
Op de eerste verdieping bevindt zich de masterslaapkamer aan de voorzijde en twee mooie slaapkamers aan de achterzijde, aangevuld met een praktische berging in het midden. De badkamer wordt in overleg ontworpen en is voorzien van een Velux-dakraam, waardoor ook hier volop mogelijkheden zijn voor een persoonlijke invulling. Via een vaste trap is de tweede verdieping bereikbaar; deze kan worden ingericht als bergzolder, maar biedt eveneens de mogelijkheid tot het creëren van een volwaardige vierde slaapkamer. Ook deze woning vormt daarmee een flexibel uitgangspunt om woonwensen verder uit te werken en volledig naar eigen smaak af te werken.
BUITEN GENIETEN
Achter de woning kabbelt de Slingebeek rustig voorbij en strekt zich een heerlijk ruime tuin van circa 318 m² uit. Een plek waar kinderen alle ruimte hebben om te spelen, waar de barbecue zonder moeite kan worden aangestoken en waar lange zomeravonden vanzelf ontstaan.. Een kop koffie in de ochtendzon, een boek in de schaduw en je voeten in het gras. En wie eropuit wil loopt gemakkelijk een rondje (met of zonder hond) om de Slingeplas. Sluit de dag af met een drankje op een van de gezellige terrasjes rondom de markt waar boeren en buitenlui samenkomen en verhalen als vanzelf ontstaan.
BIJZONDER BREDEVOORT
Zodra je dit voormalige vestingstadje binnenloopt, verandert er iets. Alsof de hectiek van alledag achter je blijft en je in een andere tijd stapt. Een tijd van rust, charme en karakter. Bredevoort is een plek die je uitnodigt om rond te dwalen, te kijken, te ontdekken. In het historische centrum is geen huis hetzelfde. Elk pand heeft een eigen gezicht, een eigen verleden. En dat voel je. Oude gevels, ambachtelijke details, kleine straatjes met klinkers en hofjes vol bloemen. Alsof je door een levend schilderij loopt.
BEPALEN EN BEGINNEN
Een nieuwe woning bouwen begint met een goed gesprek. Met jouw woonwensen, ideeën en toekomstplannen als uitgangspunt. Bel dus gerust met Iets Anders Makelaars voor meer informatie. We denken met plezier mee en verbinden je graag met Bouwgroep Heijnen zodat plannen concreet worden, dromen vorm krijgen en begonnen kan worden met de bouw van je toekomst!
Advertentie
Kenmerken
Overdracht
- Aangeboden sinds
- Aanvaarding
- In overleg
- Vraagprijs
- € 499.005 vrij op naam
- Vraagprijs per m²
- € 3.119
- Status
- Beschikbaar
Bouw
- Soort woonhuis
- Eengezinswoning, 2-onder-1-kapwoning
- Soort bouw
- Bestaande bouw
- Bouwjaar
- 2026
Oppervlakten en inhoud
- Gebruiksoppervlakten
- Wonen
- 160 m²
- Perceel
- 292 m²
- Inhoud
- 500 m³
Indeling
- Aantal kamers
- 4 kamers (3 slaapkamers)
- Aantal badkamers
- 1 badkamer en 1 apart toilet
- Badkamervoorzieningen
- Douche, toilet, en wastafel
- Aantal woonlagen
- 2 woonlagen en een zolder
- Voorzieningen
- Zonnepanelen
Energie
- Energielabel
- A+++
- Isolatie
- HR-glas en volledig geïsoleerd
Kadastrale gegevens
- BREDEVOORT A 2682
- Kadastrale kaart
- Oppervlakte
- 292 m²
- Eigendomssituatie
- Volle eigendom
Buitenruimte
- Ligging
- Aan rustige weg en in centrum
- Tuin
- Achtertuin, voortuin en zijtuin
Parkeergelegenheid
- Soort parkeergelegenheid
- Op eigen terrein
Populariteit
3.403x
Bekeken
37x
Bewaard
24-12-2025
Op Funda
Buurt

Bredevoort
Bredevoort- Inwoners
- 1.445
- Gezin met kinderen
- 33%
- Gem. vraagprijs / m²
- € 3.101
Ontdek de buurt
Benieuwd naar het woningaanbod, bewoners en lokale makelaars?
Wil je dit huis niet vergeten?
Bewaar het als favoriet. Dan vind je ’m makkelijk terug en krijg je een seintje bij veranderingen.




