Verkocht
Stille Putten 542612 KV DelftHeilige Land
€ 238.000 k.k.
- 58 m²wonen
- 1slaapkamer
- Eenergielabel
Verkoopgeschiedenis
- Aangeboden sinds
- 19 augustus 2025
- Verkoopdatum
- 1 september 2025
- Looptijd
- 13 dagen
Omschrijving
Delft - Heilige Land
Koopsom van € 280.000,-- k.k. voor € 238.000,-- k.k. (met terugkoop-garantie)
INSCHRIJVEN VOOR DEZE WONING KAN TOT UITERLIJK VRIJDAG 22 AUGUSTUS 2025 TOT 09.00 UUR.
Heeft u interesse in deze woning? Laat het ons weten via de knop "Neem contact op".
Inschrijven kan ook direct via de QR-Code in de brochure. Zonder inschrijving via de link, loot u niet mee!
Kandidaten met een sociale huurwoning van verkoper en met een passend inkomen, krijgen voorrang op deze KoopGarant-woning. Bij meerdere kandidaten gaat de kandidaat met het langstlopende huidige huurcontract voor. Voorwaarde is dat de huur direct na het vervallen van de ontbindende voorwaarde voor financiering opgezegd wordt.
Centraal gelegen 2-kamer appartement met een mooi uitzicht naar het Centrum van Delft, 2 goede balkons en een eigen fietsenberging in de onderbouw. Op ca. 10 minuten loopafstand van het gezellige centrum van Delft en tegenover IKEA gelegen. In de nabijheid van diverse uitvalswegen zoals de A4 en A13.
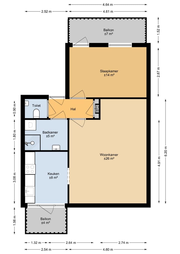
Indeling:
Begane grond: open portiek, trappenhuis naar de derde verdieping: entree woning, hal met meterkast, toilet met fonteintje, prima badkamer met douchehoek, wastafelmeubel en wasmachine aansluiting, slaapkamer met deur naar zonnig balkon, ruime woonkamer met aangrenzende moderne keuken met inbouwapparatuur en deur naar 2e balkon op het Westen. Eigen berging op de begane grond.
Afmetingen:
- Woonkamer ca. 26.00 m²
- Keuken ca. 8.00 m²
- Badkamer ca. 5.00 m²
- Slaapkamer ca. 14.00 m²
- Balkon 1 ca. 4.00 m²
- Balkon 2 ca. 7.00 m²
- Berging ca. 6.00 m²
Bijzonderheden:
- Projectnotaris van toepassing;
- Eeuwigdurende zelfbewoningsplicht;
- Koopgarant bepalingen van toepassing (terugkoopverplichting en winst/verliesdeling);
- VvE bijdrage ca. € 216,24 per maand (inclusief € 71,-- stookkosten);
- Deze woning is niet geschikt voor studenten;
- Geen garantie op de (inbouw)apparatuur;
- De boiler is eigendom;
- Eigen (fietsen)berging;
- OPLEVERINGSDATUM: 6 oktober 2025
Kandidaten met een sociale huurwoning van verkoper en met een passend inkomen, krijgen voorrang op deze KoopGarant-woning. Bij meerdere kandidaten gaat de kandidaat met het langstlopende huidige huurcontract voor. Voorwaarde is dat de huur direct na het aflopen van de ontbindende voorwaarde voor financiering opgezegd wordt.'
Deze woning wordt gepubliceerd met een deadline tot wanneer u zich bij interesse kunt aanmelden, daarna kijken we of er geïnteresseerden met voorrang zijn. Is dit niet het geval dan wordt er geloot.
Bijzonderheden:
o Voorrangsregeling van toepassing voor huurders van een sociale huurwoning van de verkopende woningcorporatie en passend inkomen. De huur moet direct na vervallen van de ontbindende voorwaarde voor financiering worden opgezegd.
o Zelfbewoningsplicht; dus (kamer)verhuur of studentenbewoning is niet toegestaan.
o Inschrijving is alleen mogelijk indien u 18 jaar of ouder bent.
o Degene die inschrijft dient de uiteindelijke koper en bewoner te zijn, koopt u samen dan moet u zich ook samen inschrijven door middel van één inschrijving. De bruto-inkomens van alle kopers tellen mee voor de voorrangsregeling.
o Bij meerdere inschrijvingen (ook uit hetzelfde huishouden) vervalt uw deelname.
o U dient op uw contactgegevens bereikbaar te zijn, indien wij u twee dagen niet hebben kunnen bereiken behouden wij ons het recht voor om de woning aan de volgende kandidaat te verkopen.
o Inschrijven kan tot de deadline gemeld in de advertentie.
o Plattegronden en afmetingen zijn indicatief!
KoopGarant
Deze woning wordt onder (Onder)Erfpacht- en KoopGarantbepalingen verkocht. U krijgt van de corporatie een koperskorting van 15% op de taxatiewaarde van deze woning. Dat scheelt aanzienlijk in uw woonlasten. Deze koperskorting wordt bij terugverkoop verrekend. Met KoopGarant bent u verzekerd van een snelle verkoop als u gaat verhuizen. De corporatie koopt de woning binnen drie maanden van u terug.
We plannen de bezichtiging als eerste met geïnteresseerden die voorrang bij ons krijgen. Als er geen voorrangskandidaten zijn gaan we over tot loting.
Voorwaarden KoopGarant
Aan het kopen van een KoopGarant-woning zijn voorwaarden verbonden. Zo heeft u een zelfbewoningplicht, wat onder andere betekent dat u de woning niet (gedeeltelijk) mag verhuren of aan iemand in gebruik mag geven. Daarnaast moet u uw hypotheek afsluiten met Nationale Hypotheekgarantie (NHG). Bovendien wordt, als u de woning terugverkoopt aan de corporatie, de winst of het verlies gedeeld in een verhouding van 15% voor de corporatie en 85% voor u. Een onafhankelijk taxateur bepaalt de marktwaarde van uw woning bij aan- en verkoop. De aan- en verkoopprijs is een vastgestelde prijs, u kunt hier niet over onderhandelen. De hypotheek moet u sluiten met Nationale HypotheekGarantie.
Advertentie
Kenmerken
Overdracht
- Laatste vraagprijs
- € 238.000 kosten koper
- Vraagprijs per m²
- € 4.103
- Status
- Verkocht
- Bijdrage VvE
- € 145,25 per maand
Bouw
- Soort appartement
- Portiekflat (appartement)
- Soort bouw
- Bestaande bouw
- Bouwjaar
- 1982
- Soort dak
- Plat dak
Oppervlakten en inhoud
- Gebruiksoppervlakten
- Wonen
- 58 m²
- Gebouwgebonden buitenruimte
- 11 m²
- Externe bergruimte
- 6 m²
- Inhoud
- 170 m³
Indeling
- Aantal kamers
- 2 kamers (1 slaapkamer)
- Aantal badkamers
- 1 badkamer en 1 apart toilet
- Badkamervoorzieningen
- Douche
- Aantal woonlagen
- 1 woonlaag
- Gelegen op
- 3e woonlaag
Energie
- Energielabel
- E
- Isolatie
- Gedeeltelijk dubbel glas
- Verwarming
- Blokverwarming
- Warm water
- Elektrische boiler
Kadastrale gegevens
- DELFT P 2493
- Kadastrale kaart
- Eigendomssituatie
- Eigendom belast met erfpacht
Buitenruimte
- Ligging
- In woonwijk
- Balkon/dakterras
- Balkon aanwezig
Bergruimte
- Schuur/berging
- Box
VvE checklist
- Inschrijving KvK
- Ja
- Jaarlijkse vergadering
- Ja
- Periodieke bijdrage
- Ja (€ 145,25 per maand)
- Reservefonds aanwezig
- Ja
- Onderhoudsplan
- Ja
- Opstalverzekering
- Ja
Populariteit
2.932x
Bekeken
61x
Bewaard
19-8-2025
Op Funda
Buurt

Heilige Land
Delft- Inwoners
- 2.115
- Gezin met kinderen
- 27%
- Gem. vraagprijs / m²
- € 4.423
Ontdek de buurt
Benieuwd naar het woningaanbod, bewoners en lokale makelaars?
Wil je dit huis niet vergeten?
Bewaar het als favoriet. Dan vind je ’m makkelijk terug en krijg je een seintje bij veranderingen.




