De Wetterwille 689207 BK DrachtenDe Folgeren centrum
€ 575.000 v.o.n.
- 157 m²wonen
- 3slaapkamers
- A+++energielabel
Omschrijving
WENJE FOAR ELKENIEN | NIJ WENWILLE
DE BOUW VAN FASE 1 (DE RIJWONINGEN EN DE VERANDAWONINGEN) GAAT STARTEN IN Q1 2026!!
Kijk voor alle informatie op: nij-wenwille.nl!
TUINLANDSCHAP DAT KLEUR GEEFT AAN ALLE JAARGETIJDEN
Als bewoner van Nij Wenwille geniet je van een tuinlandschap dat in alle seizoenen tot leven komt. Slingerende wandelpaden leiden je langs kleurrijke planten en siergrassen. Op de centrale ontmoetingsplek nodigen comfortabele zitbanken uit tot een praatje met de buren, terwijl kinderen zich vermaken in de natuurlijke speeltuin. Aan de rand van de buurt dient het water aan de Wetterwille als natuurlijke wadi's met oeverplanten, die het regenwater opvangen en aantrekkelijke elementen in het landschap vormen.
VERANDAWONINGEN: FLEXIBEL WONEN MET KARAKTER
Van de 12 verandawoningen liggen er 6 aan het water langs de Wetterwille. De andere 6 woningen grenzen aan het groene binnen gebied. De tweelaagse woningen beschikken standaard over drie slaapkamers op de verdieping. De begane grond biedt ruimte aan de woonkamer en een berging. Optioneel kun je op de begane grond een slaapkamer en badkamer creëren en de woning levensloopgeschikt maken. Je auto parkeer je op je eigen parkeerplaats, terwijl het binnen gebied autovrij blijft.
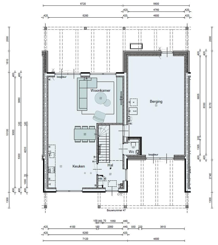
VERANDAWONING - BOUWNUMMER 46
- Kleur baksteen: geelbruin
- Gebruiksoppervlakte van 157 m2 (inclusief inpandige berging)
- Perceelgrootte van 295 m2
- 3 slaapkamers
- Energielabel A+++
- Warmtepomp en vloerverwarming
- 2 Parkeerplaatsen op eigen terrein
- Optioneel: slaapkamer en badkamer op begane grond (levensloopgeschikt)
DRACHTEN: EEN BRUISEND DORP ALS JE ACHTERTUIN
Vanuit je woning in Nij Wenwille spring je op de fiets en ben je binnen tien minuten in het gezellige centrum van Drachten. Even snel boodschappen doen, een terrasje pakken met vrienden of winkelen - alles ligt binnen handbereik. In cultureel centrum De Lawei geniet je van theater, muziek en exposities, en in de Bios zie je de nieuwste films in één van de moderne filmzalen. Of breng je met de kinderen een ontspannen bezoekje aan kinderboerderij De Naturij?
Daarmee geniet je in Nij Wenwille van het beste van twee werelden: de rust van wonen in het groen én alle gemakken van de stad binnen handbereik. Het hart van de wijk wordt gevormd door een prachtig tuinlandschap. Of je nu starter bent, een gezin hebt of op zoek bent naar een levensloopgeschikte woning - in Nij Wenwille vind je een thuis dat bij je past.
WOONGEREED
Deze fraaie, duurzame nieuwbouwwoningen worden door de ontwikkelaar zeer compleet opgeleverd. Desgewenst kun je via WoonGereed jouw gloednieuwe huis verhuisklaar afwerken en inrichten, tot en met de erfafscheiding en tuinaanleg aan toe. Kijk voor meer informatie op: woongereed.nl.
Deze online presentatie en eventuele bijlagen zijn samengesteld aan de hand van de ons bekende gegevens en afbeeldingen. Samen met de artist impressies geven zij een indruk van de toekomstige situatie. Zij pretenderen niet een exacte weergave te zijn van het uiteindelijke product. Rechten kunnen dan ook niet aan deze presentatie of bijlagen ontleend worden. Eventueel genoemde of getoonde afmetingen zijn indicatief.
Let op: het door de ontwikkelaar opgegeven gebruiksoppervlak kan afwijken van het daadwerkelijke woonoppervlak! Bij het gebruiksoppervlak kunnen ook bergzolders, bergingen of andere ruimten zijn gerekend, terwijl deze volgens de NEN2580 niet als woonoppervlak zijn aan te merken. Afhankelijk van de mogelijkheden kunt u bijvoorbeeld voor een bergzolder een dakraam toepassen, waardoor deze ruimte eventueel alsnog als woonoppervlak kan worden gerekend. Vraag de makelaar voor meer informatie en eventuele mogelijkheden.
Advertentie
Kenmerken
Overdracht
- Aangeboden sinds
- Aanvaarding
- In overleg
- Vraagprijs
- € 575.000 vrij op naam
- Vraagprijs per m²
- € 3.662
- Status
- Beschikbaar
Bouw
- Bouwjaar
- Na 2020
- Soort woonhuis
- Eengezinswoning, geschakelde woning
- Soort bouw
- Nieuwbouw
- Soort dak
- Plat dak bedekt met bitumineuze dakbedekking
- Keurmerken
- Woningborg Garantiecertificaat
Oppervlakten en inhoud
- Gebruiksoppervlakten
- Wonen
- 157 m²
- Inhoud
- 622 m³
Indeling
- Aantal kamers
- 4 kamers (3 slaapkamers)
- Aantal woonlagen
- 2 woonlagen
- Voorzieningen
- Mechanische ventilatie
Energie
- Energielabel
- A+++
- Isolatie
- Volledig geïsoleerd
- Verwarming
- Gedeeltelijke vloerverwarming en warmtepomp
Buitenruimte
- Ligging
- Aan rustige weg, aan water, in woonwijk en vrij uitzicht
- Tuin
- Achtertuin en voortuin
Bergruimte
- Schuur/berging
- Aangebouwde stenen berging
- Voorzieningen
- Elektra en stromend water
- Isolatie
- Volledig geïsoleerd
Parkeergelegenheid
- Soort parkeergelegenheid
- Op eigen terrein
Populariteit
3.855x
Bekeken
24x
Bewaard
11-12-2025
Op Funda
Buurt

De Folgeren centrum
Drachten- Inwoners
- 1.515
- Gezin met kinderen
- 36%
- Gem. vraagprijs / m²
- € 2.719
Ontdek de buurt
Benieuwd naar het woningaanbod, bewoners en lokale makelaars?
Wil je dit huis niet vergeten?
Bewaar het als favoriet. Dan vind je ’m makkelijk terug en krijg je een seintje bij veranderingen.




