Bekijk alle 4 beschikbare woningen van dit type in project
Eindhoven - Nieuw BergenOmschrijving
Advertentie
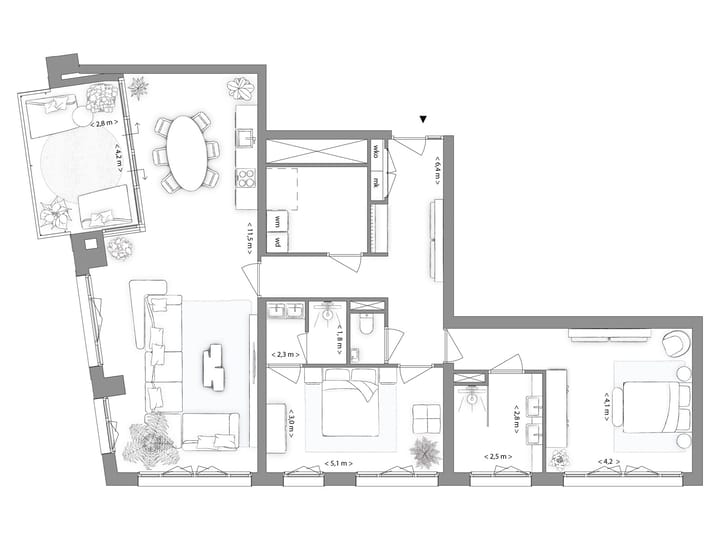
Kenmerken
Populariteit
9.592x
Bekeken
32x
Bewaard
4-1-2024
Op Funda
Buurt
Bergen
Eindhoven- Inwoners
- 2.805
- Gezin met kinderen
- 8%
- Gem. vraagprijs / m²
- € 5.304
Ontdek de buurt
Benieuwd naar het woningaanbod, bewoners en lokale makelaars?
Wil je dit huis niet vergeten?
Bewaar het als favoriet. Dan vind je ’m makkelijk terug en krijg je een seintje bij veranderingen.





