Appartement fase 1 (Bouwnr. 1)8302 EJ EmmeloordEmmeloord-Centrum-Centrum Oost
€ 340.000 k.k.
Kaart
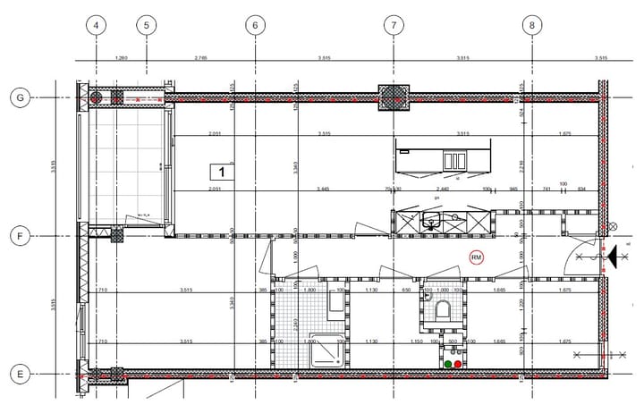
- 79 m²
- 1
- A+++
Bekijk alle 12 beschikbare woningen van dit type in project
De BankierOmschrijving
Advertentie
Kenmerken
Populariteit
0x
Bekeken
0x
Bewaard
27-1-2026
Op Funda
Buurt
Emmeloord-Centrum-Centrum Oost
Emmeloord- Inwoners
- 1.695
- Gezin met kinderen
- 27%
- Gem. vraagprijs / m²
- € 4.119
Ontdek de buurt
Benieuwd naar het woningaanbod, bewoners en lokale makelaars?
Wil je dit huis niet vergeten?
Bewaar het als favoriet. Dan vind je ’m makkelijk terug en krijg je een seintje bij veranderingen.



