Onder optie
Vrijstaande woningen Emmelhage (Bouwnr. 124)8302 AA EmmeloordEmmeloord-Centrum-Centrum West
€ 665.500 v.o.n.
Kaart
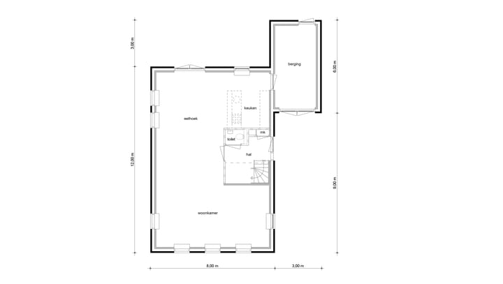
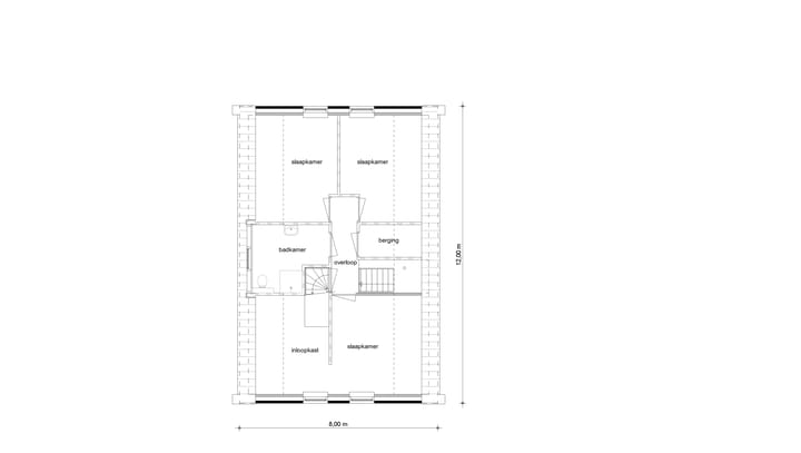
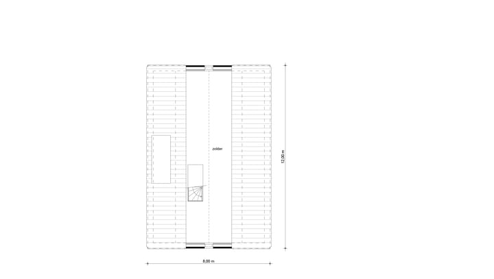
- 188 m²
- 497 m²
- 3
- A+++
Bekijk alle woningen in project
Vrijstaande woningen EmmelhageOmschrijving
Advertentie
Kenmerken
Populariteit
0x
Bekeken
0x
Bewaard
2-10-2025
Op Funda
Buurt
Emmeloord-Centrum-Centrum West
Emmeloord- Inwoners
- 1.465
- Gezin met kinderen
- 26%
- Gem. vraagprijs / m²
- € 3.140
Ontdek de buurt
Benieuwd naar het woningaanbod, bewoners en lokale makelaars?
Wil je dit huis niet vergeten?
Bewaar het als favoriet. Dan vind je ’m makkelijk terug en krijg je een seintje bij veranderingen.





