Verkocht
- 66 m²wonen
- 2slaapkamers
- A++energielabel
Bekijk alle beschikbare woningen in project
Entrada - HeerhugowaardVerkoopgeschiedenis
- Aangeboden sinds
- 17 september 2025
- Verkoopdatum
- 20 oktober 2025
- Looptijd
- 4 weken
Omschrijving
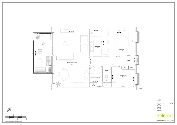
Entrada - Type B1
Dit appartement heeft een heerlijke woon- en eetkamer die zich over de volledige breedte van de gevel uitstrekt en grenst direct aan het balkon. Hierdoor geniet je van veel lichtinval én een mooi uitzicht. Het zonnige balkon op het zuidwesten is met 9,8 m² extra ruim! Dankzij het glazen schuifvouwsysteem, waarmee je het balkon bijna volledig kunt afsluiten, maak je extra lang gebruik van deze fijne buitenruimte. En in de zomer zet je de pui eenvoudig open en haal je het zonnetje letterlijk in huis.
Tot slot beschik je op de begane grond over een eigen berging van nog eens 5 m². Perfect voor je fiets of het opbergen van extra spullen.
Alles op een rij:
- Woonoppervlakte: 65,6 m²
- Balkon 9,8 m², gelegen op het zuidwesten
- Balkon voorzien van glazen schuifvouwsysteem
- De types B1 liggen op de 1e t/m 5e verdieping
- 2 slaapkamers
- Badkamer en separate toiletruimte
- Extra (fietsen)berging op de begane grond
- Parkeren op eigen terrein
- Energielabel A++
In de woningzoeker op de projectwebsite vind je van alle bouwnummers de plattegronden en specificaties.
THUIS IN ENTRADA:
Door de ligging aan het water ervaar je ruimte en vrijheid en geniet je vanuit je appartement van de waterbeleving die nooit verveelt. Op de hoger gelegen verdiepingen heb je een prachtig uitzicht en ervaar je iedere dag opnieuw het schouwspel van de Hollandse luchten die door de grote schilders zo bekend zijn geworden. Vanzelfsprekend is ieder appartement zeer goed geïsoleerd en biedt de vloerverwarming heerlijk comfort. Daarnaast zijn alle appartementen voorzien van een ruim balkon met glazen schuifvouwwanden. Zo geniet je het hele jaar door van jouw eigen buitenruimte en vormt het een verlengde van je woonkamer. En op mooie dagen zet je de glazen wand wagenwijd open en haal je het zonnetje letterlijk in huis.
Gunstige financieringsvoorwaarden
Wil jij graag een appartement in Entrada kopen? Dan is het goed om te weten dat er een aantal belangrijke financiële voordelen zijn waar je gebruik van kunt maken. Namelijk;
Extra rentevoordeel NHG, De woning komt in aanmerking voor NHG. De rente van een hypotheek met NHG is al snel 0,5% goedkoper!
Rentekorting; Veel geldverstrekkers hebben een duurzaamheidskorting waarvoor de appartementen van Entrada in aanmerking komen. Alle appartementen hebben een energielabel A++
Starterslening, Voor stellen en singles die voor de eerste keer een woning gaan kopen is er voor Entrada een starterslening beschikbaar. Hiermee kun je tot soms wel € 50.000,- extra lenen tegen zeer gunstige voorwaarden. Daarmee komt de stap naar je eigen appartement ineens een heel stuk dichterbij!
Wij snappen dat het best lastig is om zelf te onderzoeken hoeveel je kunt lenen en wat daar allemaal bij komt kijken. Gelukkig zijn er goede en betrouwbare adviseurs die je daarbij kunnen helpen. Misschien heb je zelf al een adviseur op het oog. Zo niet, dan kun je kosteloos en vrijblijvend een eerste financiële check laten uitvoeren door CJK Advies of De Financiële Raadgevers. Zij weten precies wat de mogelijkheden zijn voor een financiering voor Entrada en koppelen dat aan jouw persoonlijke situatie.
In Entrada woon je modern en comfortabel!
Advertentie
Kenmerken
Overdracht
- Laatste vraagprijs
- € 351.000 vrij op naam
- Vraagprijs per m²
- € 5.318
- Status
- Verkocht
Bouw
- Bouwjaar
- Na 2020
- Soort appartement
- Galerijflat (appartement)
- Soort bouw
- Nieuwbouw
- Soort dak
- Plat dak bedekt met bitumineuze dakbedekking
- Keurmerken
- Woningborg Garantiecertificaat
Oppervlakten en inhoud
- Gebruiksoppervlakten
- Wonen
- 66 m²
- Gebouwgebonden buitenruimte
- 10 m²
- Externe bergruimte
- 5 m²
- Inhoud
- 170 m³
Indeling
- Aantal kamers
- 3 kamers (2 slaapkamers)
- Aantal badkamers
- 1 badkamer en 1 apart toilet
- Aantal woonlagen
- 1 woonlaag
- Voorzieningen
- Lift en zonnepanelen
- Gelegen op
- 5e woonlaag
Energie
- Energielabel
- A++
- Isolatie
- Volledig geïsoleerd
- Verwarming
- Stadsverwarming en gehele vloerverwarming
- Warm water
- Stadsverwarming
Buitenruimte
- Ligging
- Aan water en in centrum
- Balkon/dakterras
- Balkon aanwezig
Bergruimte
- Schuur/berging
- Inpandig
- Voorzieningen
- Elektra
Parkeergelegenheid
- Soort parkeergelegenheid
- Op eigen terrein en openbaar parkeren
Populariteit
0x
Bekeken
0x
Bewaard
17-9-2025
Op Funda
Buurt

Beveland
Heerhugowaard- Inwoners
- 5
Ontdek de buurt
Benieuwd naar het woningaanbod, bewoners en lokale makelaars?
Wil je dit huis niet vergeten?
Bewaar het als favoriet. Dan vind je ’m makkelijk terug en krijg je een seintje bij veranderingen.




