Verkocht
Frans van Mierislaan 221213 EM HilversumSchilderskwartier
€ 595.000 k.k.
- 148 m²wonen
- 261 m²perceel
- 5slaapkamers
- Fenergielabel
Verkoopgeschiedenis
- Aangeboden sinds
- 9 mei 2025
- Verkoopdatum
- 12 juni 2025
- Looptijd
- 4 weken
Omschrijving
In gewilde woonwijk in Hilversum Zuid gelegen fraaie helft van dubbel woonhuis met voor- en diepe zonnige vrij gelegen achtertuin op het zuiden, eigen oprit met garage en in de nabijheid van goede basis- en middelbare scholen, de internationale school en leuke winkels en horeca van de Gijsbrecht van Amstelstraat. Een huis waarin een gelukkig gezin is opgegroeid.
De Gijsbrecht van Amstelstraat is vijf minuten wandelen en met tien minuten bent u in het bos en op de Hoorneboegse Heide. De wijk is groen en fijn voor kinderen om te spelen.
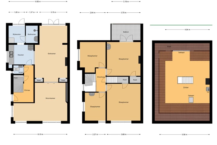
Indeling begane grond
Entree, hal, toiletruimte, provisiekelder. Kamer en suite met aan de voorzijde de zitkamer en aan de achterzijde de royale eetkamer met openslaande deuren naar de tuin op het zuiden, halfopen keuken met doorgang naar de bijkeuken en badkamer.
Eerste verdieping
Overloop, Vier slaapkamers waarvan een slaapkamer aan de tuinzijde met openslaande deuren naar het balkon op het zuiden.
Tweede verdieping
Via een vaste trap is de tweede verdieping bereikbaar. Momenteel ingericht als een grote slaapkamer. Hier is nog heel veel mogelijk, denk bijvoorbeeld aan twee ruime slaap- of werkkamers.
De omgeving en bereikbaarheid
De buurt kenmerkt zich als rustig en kindvriendelijk en ligt dichtbij het centrum van Hilversum. Scholen en kinderopvang liggen in de directe omgeving van het huis. Uitvalswegen richting Utrecht en Amsterdam (A27, A1, N201) zijn snel bereikbaar. Treinstation Hilversum Sportpark ligt op 5 minuten fietsen en heeft een directe verbinding met Utrecht Centraal (15 minuten). Hilversum Centraal ligt op 8 minuten fietsen en heeft goede Intercity verbindingen naar Amsterdam CS en Zuid (20 minuten). Natuurliefhebbers kunnen in de directe omgeving genieten van onder meer de Hoorneboegse Heide, de bossen van Lage Vuursche en de Loosdrechtse Plassen.
Meetrapport
De woning is ingemeten conform NEN 2580 en heeft een woonoppervlakte van 148 m2. Een meetrapport is uiteraard beschikbaar.
Bijzonderheden
-prachtige ligging nabij centrum, heide, openbaar vervoer en uitvalswegen
-originele stijlkenmerken zoals paneeldeuren
-sfeervol huis dat enige modernisering behoeft
-bouwjaar 1920
-vloeroppervlakte 148 m²
-perceeloppervlakte 261 m²
-energielabel F
Kortom
Een heerlijk huis met 5 slaapkamers, met veel licht en ruimte, op een prachtige rustige plek en toch zeer centraal gelegen.
----
In popular residential area in Hilversum South located beautiful half of double house with front and deep sunny south-facing detached back garden, private driveway with garage and in the vicinity of good primary and secondary schools, the international school and nice shops and restaurants of the Gijsbrecht van Amstelstraat. A house in which a happy family grew up.
The Gijsbrecht van Amstelstraat is a five-minute walk and with ten minutes you are in the woods and on the Hoorneboegse Heide. The neighbourhood is green and nice for children to play.
Layout ground floor
Entrance hall, toilet, pantry. Room en suite with sitting room at the front and spacious dining room at the back with French doors to the south-facing garden, semi-open kitchen with passage to the pantry and bathroom.
First floor
Landing, Four bedrooms, one of which is on the garden side with French doors to the south-facing balcony.
Second floor
A fixed staircase leads to the second floor. Currently furnished as a large bedroom. A lot is still possible here, for example two spacious bedrooms or work rooms.
Surroundings and accessibility
The neighbourhood is characterised as quiet and child-friendly and is close to the centre of Hilversum. Schools and childcare are in the immediate vicinity of the house. Highways towards Utrecht and Amsterdam (A27, A1, N201) are quickly accessible. Hilversum Sportpark train station is a 5-minute bike ride away and has a direct connection to Utrecht Central Station (15 minutes). Hilversum Centraal is 8 minutes' cycling and has good Intercity connections to Amsterdam CS and Zuid (20 minutes). Nature lovers can enjoy the Hoorneboegse Heide, the woods of Lage Vuursche and the Loosdrechtse Plassen, among others, in the immediate vicinity.
Measurement report
The house was measured in accordance with NEN 2580 and has a living area of 148 m2. A measurement report is of course available.
Special features
-Beautiful location near centre, heath, public transport and roads
-original style features such as panel doors
-cosy house that needs some modernisation
-built in 1920
-floor area 148 m²
-plot size 261 m²
-energy label F
In short
A lovely 5-bedroom house with lots of light and space, in a beautiful quiet spot and yet very centrally located.
Advertentie
Kenmerken
Overdracht
- Laatste vraagprijs
- € 595.000 kosten koper
- Vraagprijs per m²
- € 4.020
- Status
- Verkocht
Bouw
- Soort woonhuis
- Eengezinswoning, 2-onder-1-kapwoning
- Soort bouw
- Bestaande bouw
- Bouwjaar
- 1920
Oppervlakten en inhoud
- Gebruiksoppervlakten
- Wonen
- 148 m²
- Gebouwgebonden buitenruimte
- 6 m²
- Externe bergruimte
- 13 m²
- Perceel
- 261 m²
- Inhoud
- 528 m³
Indeling
- Aantal kamers
- 7 kamers (5 slaapkamers)
- Aantal badkamers
- 1 badkamer en 1 apart toilet
- Badkamervoorzieningen
- Douche en wastafel
- Aantal woonlagen
- 3 woonlagen
Energie
- Energielabel
- F
- Isolatie
- Gedeeltelijk dubbel glas
- Verwarming
- Cv-ketel
- Warm water
- Cv-ketel
- Cv-ketel
- Gas gestookt combiketel, eigendom
Kadastrale gegevens
- HILVERSUM K 91
- Kadastrale kaart
- Oppervlakte
- 261 m²
- Eigendomssituatie
- Volle eigendom
Buitenruimte
- Tuin
- Achtertuin, voortuin en zijtuin
- Achtertuin
- 100 m² (10,00 meter diep en 10,00 meter breed)
- Ligging tuin
- Gelegen op het zuiden
- Balkon/dakterras
- Balkon aanwezig
Garage
- Soort garage
- Vrijstaande stenen garage
- Capaciteit
- 1 auto
- Voorzieningen
- Elektra
Parkeergelegenheid
- Soort parkeergelegenheid
- Op eigen terrein
Populariteit
18.037x
Bekeken
523x
Bewaard
9-5-2025
Op Funda
Buurt

Schilderskwartier
Hilversum- Inwoners
- 3.985
- Gezin met kinderen
- 42%
- Gem. vraagprijs / m²
- € 5.824
Ontdek de buurt
Benieuwd naar het woningaanbod, bewoners en lokale makelaars?
Wil je dit huis niet vergeten?
Bewaar het als favoriet. Dan vind je ’m makkelijk terug en krijg je een seintje bij veranderingen.




