Verkocht onder voorbehoud
Kijkglas 29 (Bouwnr. 11)4142 LR LeerdamBroekgraaf-Noord
€ 265.000 v.o.n.
Kaart
- A+++
Bekijk alle woningen in project
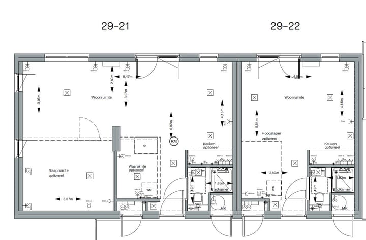
Glas in Lood - Smart Tiny LoftOmschrijving
Advertentie
Kenmerken
Populariteit
0x
Bekeken
0x
Bewaard
21-11-2025
Op Funda
Buurt
Broekgraaf-Noord
Leerdam- Inwoners
- 790
- Gezin met kinderen
- 40%
- Gem. vraagprijs / m²
- € 4.507
Ontdek de buurt
Benieuwd naar het woningaanbod, bewoners en lokale makelaars?
Wil je dit huis niet vergeten?
Bewaar het als favoriet. Dan vind je ’m makkelijk terug en krijg je een seintje bij veranderingen.





