Onder optie
Gildewoning (Bouwnr. 20)8912 DA LeeuwardenWetterstêd
€ 450.000 v.o.n.
Kaart
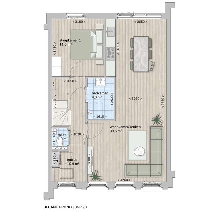
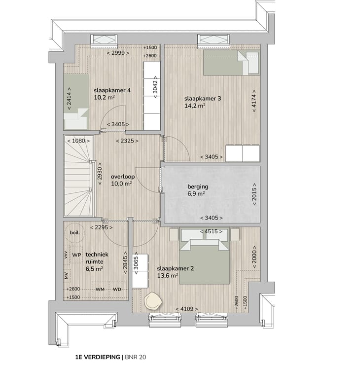
- 131 m²
- 149 m²
- 4
- A+++
Bekijk alle woningen in project
Prinsenhoek MiddelseeOmschrijving
Advertentie
Kenmerken
Populariteit
2.052x
Bekeken
29x
Bewaard
30-5-2025
Op Funda
Buurt
Ontdek de buurt
Benieuwd naar het woningaanbod, bewoners en lokale makelaars?
Wil je dit huis niet vergeten?
Bewaar het als favoriet. Dan vind je ’m makkelijk terug en krijg je een seintje bij veranderingen.





