- 82 m²
- 2
- A+++
Onderdeel van project Het Smidshof, Lichtenvoorde
Omschrijving
Ruime en comfortabele benedenwoning met tuin in het groen.
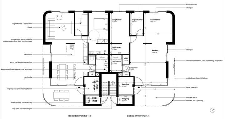
Deze levensloopbestendige benedenwoning combineert ruimte, comfort en duurzaamheid. Met een netto woonoppervlakte van ca. 82 m² (incl. berging) en een kavel van maar liefst 278m² is er volop plek om te genieten, zowel binnen als buiten.
Kenmerken:
• Overdekt terras aan de voorzijde
• Schuifpuien aan de voor-, achter- én zijkant van de woning: volop licht en contact met buiten
• Ruime slaapkamer én logeerkamer
• Woonkeuken met directe toegang tot de tuin
• Iedere woning beschikt over 2 eigen parkeerplaatsen
• Optioneel: Extra vrijstaande berging
• Optioneel: levering en plaatsing van keuken en sanitair (aansluitpunten standaard aanwezig)
Dankzij hoogwaardige (geluids)isolatie en een A+++ energielabel woon je hier energiezuinig en comfortabel. Het huis is ontworpen met oog voor de toekomst en biedt alle gemakken van gelijkvloers wonen in een groene en rustige omgeving.
Kortom: een unieke kans op een woning die duurzaamheid, comfort en leefruimte perfect combineert!
Advertentie
Kenmerken
Overdracht
- Aangeboden sinds
- Aanvaarding
- In overleg
- Vraagprijs
- € 545.000 vrij op naam
- Vraagprijs per m²
- € 6.646
- Status
- Beschikbaar
Bouw
- Soort appartement
- Benedenwoning (appartement)
- Soort bouw
- Nieuwbouw
- Bouwjaar
- 2025
Oppervlakten en inhoud
- Gebruiksoppervlakten
- Wonen
- 82 m²
- Gebouwgebonden buitenruimte
- 278 m²
- Inhoud
- 285 m³
Indeling
- Aantal kamers
- 3 kamers (2 slaapkamers)
- Aantal badkamers
- 1 badkamer
- Badkamervoorzieningen
- Dubbele wastafel, inloopdouche, en vloerverwarming
- Aantal woonlagen
- 1 woonlaag
- Voorzieningen
- Buitenzonwering, mechanische ventilatie, en zonnepanelen
- Gelegen op
- Begane grond
Energie
- Energielabel
- Isolatie
- Volledig geïsoleerd
- Verwarming
- Warmtepomp
Buitenruimte
- Ligging
- Aan rustige weg en in woonwijk
- Tuin
- Achtertuin, voortuin en zijtuin
Bergruimte
- Schuur/berging
- Aangebouwde stenen berging
- Voorzieningen
- Elektra
Populariteit
1.403x
Bekeken
15x
Bewaard
22-5-2025
Op Funda
Buurt
't Zand
Lichtenvoorde- Inwoners
- 2.760
- Gezin met kinderen
- 38%
Ontdek de buurt
Benieuwd naar het woningaanbod, bewoners en lokale makelaars?
Wil je dit huis niet vergeten?
Bewaar het als favoriet. Dan vind je ’m makkelijk terug en krijg je een seintje bij veranderingen.


