Verkocht onder voorbehoud
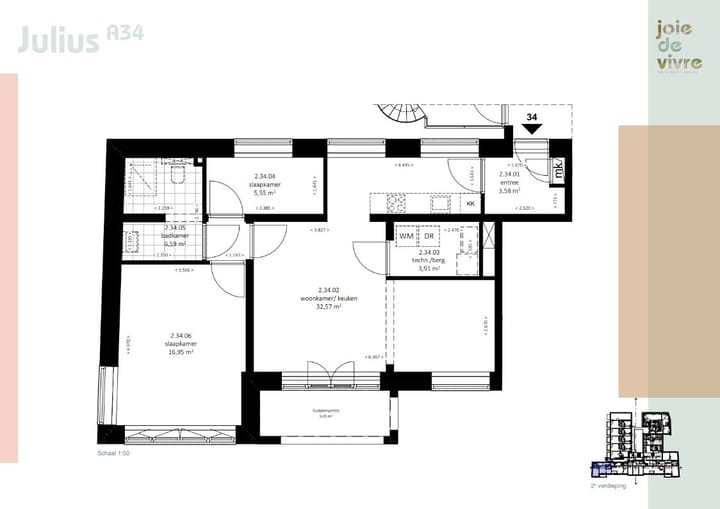
Joie de Vivre | appartement | Julius (Bouwnr. 34)6524 JM NijmegenGalgenveld
€ 576.950 v.o.n.
Kaart
- 73 m²
- 2
- A+++
Bekijk alle 3 beschikbare woningen van dit type in project
Joie De VivreOmschrijving
Advertentie
Kenmerken
Populariteit
0x
Bekeken
0x
Bewaard
18-9-2025
Op Funda
Buurt
Galgenveld
Nijmegen- Inwoners
- 7.085
- Gezin met kinderen
- 12%
- Gem. vraagprijs / m²
- € 5.069
Ontdek de buurt
Benieuwd naar het woningaanbod, bewoners en lokale makelaars?
Wil je dit huis niet vergeten?
Bewaar het als favoriet. Dan vind je ’m makkelijk terug en krijg je een seintje bij veranderingen.





