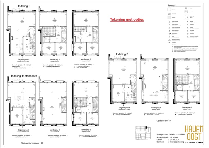
Onder optie
Multi functionele 'Fabrieks' woningen (Bouwnr. 19 (hoek))7731 GT OmmenKern Ommen - Industrieterrein
€ 489.250 v.o.n.
Kaart
- 121 m²
- 121 m²
- 6
- A+++
Onderdeel van project Haven Oost, Stoer wonen in Ommen, Ommen
Omschrijving
Advertentie
Kenmerken
Populariteit
5.603x
Bekeken
35x
Bewaard
24-3-2025
Op Funda
Buurt
Kern Ommen - Industrieterrein
Ommen- Inwoners
- 110
- Gezin met kinderen
- 20%
Ontdek de buurt
Benieuwd naar het woningaanbod, bewoners en lokale makelaars?
Wil je dit huis niet vergeten?
Bewaar het als favoriet. Dan vind je ’m makkelijk terug en krijg je een seintje bij veranderingen.





