Bekijk alle woningen in project
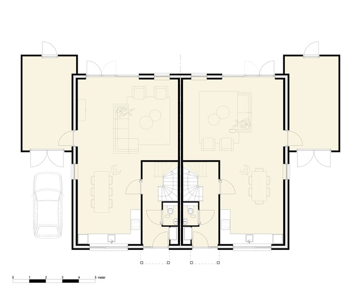
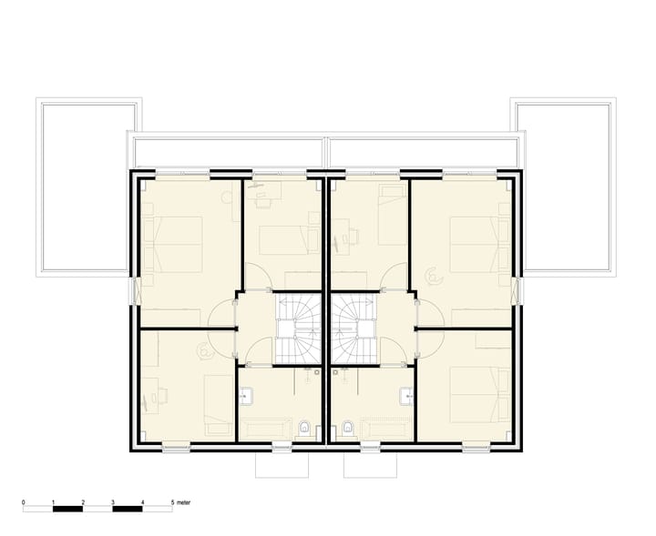
Uuleveld fase 2b, 3e serie, blok 12 & 13Omschrijving
Advertentie
Kenmerken
Populariteit
620x
Bekeken
6x
Bewaard
16-3-2026
Op Funda
Buurt
Pannerden
Pannerden- Inwoners
- 2.120
- Gezin met kinderen
- 34%
- Gem. vraagprijs / m²
- € 3.199
Ontdek de buurt
Benieuwd naar het woningaanbod, bewoners en lokale makelaars?
Wil je dit huis niet vergeten?
Bewaar het als favoriet. Dan vind je ’m makkelijk terug en krijg je een seintje bij veranderingen.





