Onder optie
Noord Voorstraat 29 - 06 (The Banq)3295 BL 's-Gravendeel's-Gravendeel Woonkern
€ 375.000 v.o.n.
Kaart
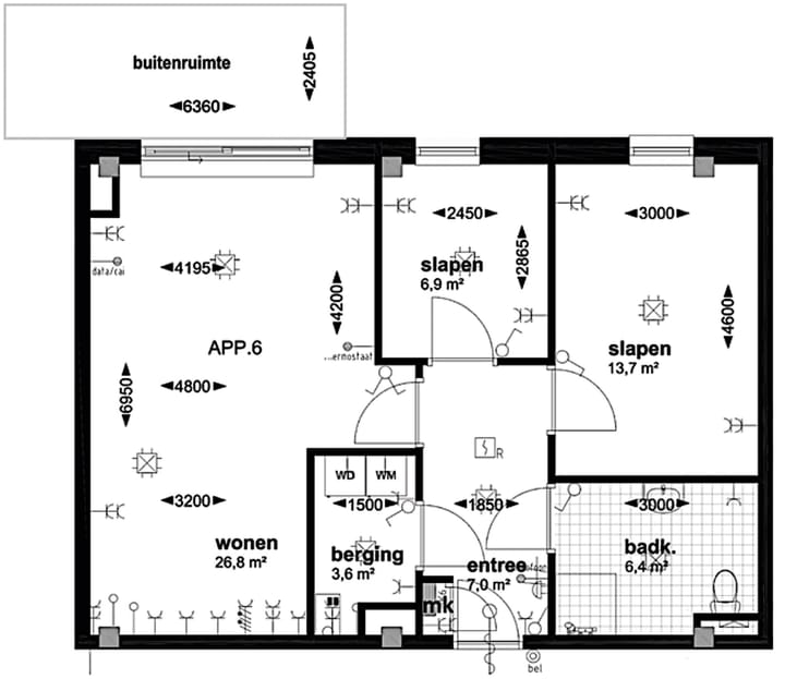
- 68 m²
- 2
- A+
Omschrijving
Advertentie
Kenmerken
Populariteit
843x
Bekeken
10x
Bewaard
30-10-2025
Op Funda
Buurt
's-Gravendeel Woonkern
's-Gravendeel- Inwoners
- 8.065
- Gezin met kinderen
- 34%
- Gem. vraagprijs / m²
- € 3.808
Ontdek de buurt
Benieuwd naar het woningaanbod, bewoners en lokale makelaars?
Wil je dit huis niet vergeten?
Bewaar het als favoriet. Dan vind je ’m makkelijk terug en krijg je een seintje bij veranderingen.





