Lingestraat 404535 ES TerneuzenZeldenrust
€ 275.000 k.k.
- 123 m²wonen
- 138 m²perceel
- 4slaapkamers
- Benergielabel
Omschrijving
Ruime gezinswoning met vier slaapkamers in kindvriendelijke wijk
Deze fijne eengezinswoning biedt alles wat een (jong) gezin zich kan wensen. Met vier slaapkamers, een lichte doorzonwoonkamer en een nette tuin is er volop ruimte om prettig te wonen. Bovendien krijg je hier de kans om er met eigen smaak en stijl een heerlijk thuis van te maken.
De woning ligt in een rustige en groene woonwijk in Terneuzen, waar kinderen veilig buiten kunnen spelen en waar je nog echt buren hebt die elkaar groeten. In de directe omgeving zijn speeltuintjes, sportclubs en scholen te vinden, waardoor alles voor het gezinsleven binnen handbereik ligt. Voor de dagelijkse boodschappen wandel je zo naar de supermarkt en voor een gezellige middag of avond fiets je binnen enkele minuten naar het centrum met zijn restaurants, cafés en winkels. Zoek je liever de rust op, dan ligt het ‘Rondje Kreek’ om de hoek: een prachtige plek om te wandelen, te joggen of gewoon even uit te waaien. Dankzij de gunstige ligging zijn ook steden als Antwerpen, Gent, Middelburg en Goes snel bereikbaar.
Indeling:
Begane grond:
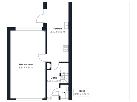
Bij binnenkomst in de hal tref je het toilet met fonteintje, de trapopgang, meterkast en de doorgang naar de keuken. De keuken bevindt zich aan de achterzijde van de woning, is uitgevoerd in een lichte kleuropstelling en voorzien van inbouwapparatuur. Vanuit hier stap je zo de tuin in en heb je eveneens toegang tot de woonkamer. Deze doorzonkamer voelt licht en ruim aan, met ramen aan beide kanten die de hele dag door zorgen voor een fijne sfeer.
De tuin is onderhoudsvriendelijk aangelegd en ligt op het zuidoosten, zodat je optimaal profiteert van de zon. Een verzorgde border geeft het groen en achterin de tuin staat een praktische stenen berging. De vrije achterom maakt de tuin goed bereikbaar, ideaal voor fietsen of tuingereedschap.
Eerste verdieping:
Op de eerste verdieping bevinden zich drie slaapkamers die samen zorgen voor een praktische en comfortabele indeling. De badkamer is voorzien van een douche, toilet en wastafel.
Tweede verdieping:
De tweede verdieping is via een vaste trap bereikbaar en biedt een extra ruime slaapkamer. Dankzij de dakkapel is hier niet alleen veel licht, maar ook extra leefruimte gecreëerd. De kamer beschikt bovendien over een eigen wastafel. Op de overloop vind je de cv-installatie en de aansluiting voor het witgoed.
Bijzonderheden:
- Energielabel B
- Voorzien van dak- en muurisolatie
- Warm water en verwarming door middel van C.V.-combiketel
- Voorzien van kunststof kozijnen met dubbelglas en rolluiken
Ben jij op zoek naar een ruime gezinswoning met vier slaapkamers op een rustige, kindvriendelijke locatie in Terneuzen? Dan is dit een woning met potentie die je zeker niet mag missen. Maak snel een afspraak voor een bezichtiging en ervaar zelf hoe fijn het wonen hier kan zijn!
Advertentie
Kenmerken
Overdracht
- Aangeboden sinds
- Aanvaarding
- In overleg
- Vraagprijs
- € 275.000 kosten koper
- Vraagprijs per m²
- € 2.236
- Status
- Beschikbaar
Bouw
- Soort woonhuis
- Eengezinswoning, tussenwoning
- Soort bouw
- Bestaande bouw
- Bouwjaar
- 1973
- Soort dak
- Zadeldak bedekt met pannen
Oppervlakten en inhoud
- Gebruiksoppervlakten
- Wonen
- 123 m²
- Externe bergruimte
- 16 m²
- Perceel
- 138 m²
- Inhoud
- 380 m³
Indeling
- Aantal kamers
- 5 kamers (4 slaapkamers)
- Aantal badkamers
- 1 badkamer en 1 apart toilet
- Badkamervoorzieningen
- Douche, toilet, en wastafel
- Aantal woonlagen
- 3 woonlagen
- Voorzieningen
- Natuurlijke ventilatie, rolluiken, en TV kabel
Energie
- Energielabel
- B
- Isolatie
- Dakisolatie, dubbel glas en muurisolatie
- Verwarming
- Cv-ketel
- Warm water
- Cv-ketel
- Cv-ketel
- Remeha Avanta (gas gestookt combiketel, huur)
Kadastrale gegevens
- TERNEUZEN N 582
- Kadastrale kaart
- Oppervlakte
- 138 m²
- Eigendomssituatie
- Volle eigendom
Buitenruimte
- Ligging
- Aan rustige weg en in woonwijk
- Tuin
- Achtertuin en voortuin
- Achtertuin
- 42 m² (7,00 meter diep en 6,00 meter breed)
- Ligging tuin
- Gelegen op het zuidoosten bereikbaar via achterom
Bergruimte
- Schuur/berging
- Vrijstaande stenen berging
Parkeergelegenheid
- Soort parkeergelegenheid
- Openbaar parkeren
Populariteit
4.212x
Bekeken
37x
Bewaard
20-8-2025
Op Funda
Buurt

Zeldenrust
Terneuzen- Inwoners
- 2.920
- Gezin met kinderen
- 38%
- Gem. vraagprijs / m²
- € 2.841
Ontdek de buurt
Benieuwd naar het woningaanbod, bewoners en lokale makelaars?
Wil je dit huis niet vergeten?
Bewaar het als favoriet. Dan vind je ’m makkelijk terug en krijg je een seintje bij veranderingen.





