Verkoopgeschiedenis
- Aangeboden sinds
- 6 augustus 2025
- Verkoopdatum
- 1 september 2025
- Looptijd
- 3 weken
Omschrijving
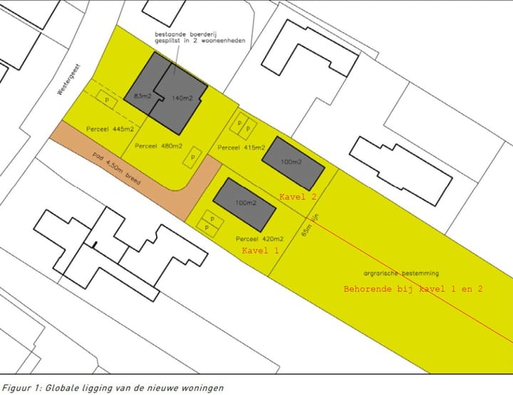
Kavel 1 (van 2)
TE KOOP – Twee royale bouwkavels aan vaarwater | Westergeest/De Terp – Uitgeest
Wonen op een unieke plek op de rand van de strandwal van Uitgeest, grenzend aan het polderlandschap met vaarwater richting het Alkmaardermeer.
Aan de Westergeest in Uitgeest worden twee royale bouwkavels van elk circa 2.900 m² aangeboden voor de bouw van een vrijstaande schuurwoning met uitzicht over de uitgestrekte weilanden én directe vaarverbinding naar het Alkmaardermeer.
Een buitenkans voor wie op zoek is naar rust, ruimte, privacy én recreatiemogelijkheden aan huis.
De kavels in het kort
- Er zijn twee kavels beschikbaar van elk circa 2.900m². Een andere verdeling van de totale 5.800m² is bespreekbaar, afhankelijk van de wensen van de kopers;
- Bouwvlak van 100 m²;
- Max. goothoogte: 6 meter | max. bouwhoogte: 9 meter;
- Bestemming: Wonen, Waarde – Archeologie 2 en agrarisch;
- Bouwtype: vrijstaande schuurwoning;
- Verplichte aanleg van minimaal 2 parkeerplaatsen per kavel;
- Mandelig toegangsperceel (min. 4,5 m breed), in gebruik als oprit;
- Ligging: aan vaarwater, landelijk, met vrij uitzicht;
- De kavels worden separaat aangeboden; koop van beide tegelijk is mogelijk.
Wat je als koper nog moet regelen
- Kosten koper (10,4% overdrachtsbelasting)
- Bouwrijp maken, waaronder het verwijderen van bestaande opstallen (vrijstaande schuur en kleine kas)
- Aanleg van nutsvoorzieningen en tracees tot aan de kavels
- Aanvraag omgevingsvergunning voor het gewenste bouwplan is voor rekening en risico van koper.
De oprit is gezamenlijk (mandelig) eigendom; afspraken over gebruik en onderhoud worden vastgelegd in de leveringsakte.
Disclaimer grootte perceel:
De genoemde perceeloppervlaktes van circa 2.900 m² zijn indicatief. De kavels dienen nog kadastraal te worden gesplitst. Aan deze opgave kunnen derhalve geen rechten worden ontleend. De definitieve oppervlakte wordt vastgesteld na inmeting door het Kadaster en vastgelegd bij notariële levering.
Meer weten of bezichtigen?
Heb je interesse in een van de kavels, wil je meer informatie of de beschikbare stukken inzien? Neem dan contact op met Magneet Makelaars.
We nodigen je graag uit voor een bezichtiging ter plaatse, zodat je zelf de rust, ruimte en prachtige ligging kunt ervaren.
Heb je een eigen woning die je mogelijk wilt verkopen? Wij bieden ook een vrijblijvende waardebepaling aan. Bel ons voor meer informatie of het maken van een afspraak.
Historie & landschap
Uitgeest ligt op een van de oudste strandwallen van Noord-Holland, een natuurlijke zandrug gevormd duizenden jaren geleden langs de oerkust. Hier vestigden zich al vroeg bewoners op de droge, hoge gronden tussen veen en water. Het landschap wordt gekenmerkt door een unieke combinatie van open polder, historische dorpsstructuren en restanten van het Oer IJ, het oude rivierenstelsel dat ooit door dit gebied stroomde. Deze rijke bodem vertelt nog altijd het verhaal van eeuwen wonen, werken en waterbeheersing.
De onderzoeken ten behoeve van de bestemmingswijziging zijn uitgevoerd en op te vragen bij de verkopende makelaar, waaronder wordt begrepen:
- Akoestisch onderzoek
- Verkennend bodemonderzoek
- Quickscan flora en fauna
- Archeologisch onderzoek
- Watertoets
- Stikstof onderzoek aeriusberekening beginfase
- Stikstof onderzoek aeriusberekening bouwfase
- Vormvrije mer-beoordeling
Bijzonderheden:
- Bij de verkoop is een projectnotaris aangesloten, Uitgeester Notariaat in Uitgeest.
Advertentie
Kenmerken
Overdracht
- Laatste vraagprijs
- € 600.000 kosten koper
- Status
- Verkocht
Bouw
- Soort object
- Bouwgrond
- Bouwrijp
- Nee
Indeling
- Perceel
- 2.900 m²
Kadastrale gegevens
- UITGEEST BA 15
- Kadastrale kaart
- Oppervlakte
- 7.110 m²
- Eigendomssituatie
- Eigendom belast met gebruik en bewoning
Buitenruimte
- Ligging
- Aan rustige weg en vrij uitzicht
Populariteit
2.548x
Bekeken
41x
Bewaard
6-8-2025
Op Funda
Buurt
Ontdek de buurt
Benieuwd naar het woningaanbod, bewoners en lokale makelaars?
Wil je dit huis niet vergeten?
Bewaar het als favoriet. Dan vind je ’m makkelijk terug en krijg je een seintje bij veranderingen.




