Verkocht
Bijdorplaan 2-M2713 PX ZoetermeerDriemanspolder-Noord
€ 481.000 v.o.n.
- 92 m²wonen
- 3slaapkamers
Verkoopgeschiedenis
- Aangeboden sinds
- 5 maart 2025
- Verkoopdatum
- 17 juli 2025
- Looptijd
- 4 maanden
Omschrijving
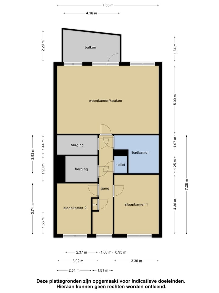
NIEUWBOUWPROJECT SOETERDAEL - BOUWNUMMER 63 - TYPE B1 (AQUA)
Dit appartement is een special in het Waterblok.
Kies (optioneel) voor de uitvoering met:
- een grote living van 7,5 meter breed óf
- een luxe (slaap-/werk)kamer en-suite óf (MEERWERK OPTIE)
- een extra (slaap)kamer (IN DE KOOPSOM IS DEZE OPTIE AL VERWERKT)
Dit type heeft als enige in Waterblok standaard een separate berging, die in de praktijk eventueel als verlenging van de keuken gebruik kan worden.
Tel daarbij op een balkon op het zuiden, een privéparkeerplaats én een lagere energielasten (pv-panelen) bij op. Een heerlijke plek om te wonen, vlakbij het oude dorp.
Het appartement wordt opgeleverd exclusief keuken, inclusief fraai sanitair- en tegelwerk en een lease-warmtepomp met de mogelijkheid tot koop. De gemeenschappelijke pv-panelen op het dak van het Waterblok worden gekoppeld aan de privé meterkasten van de appartementen. De stroom die wordt opgewekt kun je zelf gebruiken.
CENTRALE GROENE LIGGING
Soeterdael ligt op een aantrekkelijke locatie tussen Dorp, Stadscentrum en Driemanspolder. Aan de
Dorpsstraat grenst het Wilhelminapark; het oudste park van Zoetermeer. Sinds 2006 heeft het de
status van monumentaal park gekregen. Het is een herdenkingspark en om het oorlogsmonument in
Engelse landschapsstijl heen ontworpen. Kenmerkend zijn de glooiingen, losse boomgroepen en langgerekte
serpentine-vijver.
Tussen het Oude Dorp en het stadscentrum ligt het Dobbegebied. Het Dobbegebied wordt omgevormd
naar een Centraal Park waar voor iedereen iets te beleven is: van rustige ontmoeting rond het water
en in het groen tot feestelijke gezelligheid. Het ‘hart van de stad’ zal een aangename groene verblijfsplek
worden met een eigen identiteit, rust en dynamiek, ontmoeten, vermaken en genieten van de natuur. De
omgeving van Soeterdael vergroent terwijl de centrale ligging uniek blijft.
LOCATIE
Soeterdael, centraal gelegen aan de Bijdorplaan in Zoetermeer en is uitstekend bereikbaar. Wandelend
naar zowel de historische dorpskern als het eigentijdse Stadshart. Vlakbij de leuke
winkels en restaurantjes aan de Dorpstraat. En met een groene wandeling langs de Dobbeplas is ook het
uitgebreidere voorzieningenaanbod van Stadshart te voet bereikbaar. Het gemak van (zorg)voorzieningen
om de hoek. En gemakkelijk met de Randstadrail of de auto naar de rest van de Randstad. Wil je met het openbaar vervoer? Halte Dorp van de Randstadrail ligt vrijwel voor de deur en brengt je in korte tijd ook naar het Stadshart, het centrum van Zoetermeer of naar Den Haag.
ZOETERMEER
Ontstaan uit verschillende dorpen is Zoetermeer nu de derde stad van Zuid-Holland en uitgegroeid tot
‘groene stad tussen de parken’. Van Palenstein tot Oosterheem, bij de ontwikkeling van elke nieuwe wijk
was er veel aandacht voor een brede ceintuur van parken, wijk en buurtgroen.
Niet alleen in de stad maar ook aan de rand van Zoetermeer liggen uitgestrekte natuurgebieden met
talloze mogelijkheden voor ontspanning, sport en spel. Recreatiegebied Noord Aa met de Zoetermeerse Plas,
golfbanen BurgGolf en Bentwoud en Buytenpark: de ideale omgeving om te wandelen, fietsen, golfen of
anderszins actief bezig te zijn. In Zoetermeer heeft de aanleg van fietspaden en veilige wandelpaden altijd
hoog op de agenda gestaan.
DORPSSTRAAT
De oorsprong van het stedelijk leven in Zoetermeer ligt in de nabij Soeterdael gelegen Dorpsstraat. De
Dorpsstraat lag halverwege de doorgaande route van Den Haag naar Gouda, en hier kruiste de weg met de
vaarroute tussen Leiden en Delft. Uit opgravingen blijkt dat er al in de 13de eeuw mensen woonden.
De Dorpsstraat en de omliggende straten laten nog de oude sfeer proeven. De bebouwing dateert
grotendeels uit de negentiende en twintigste eeuw. Enkele panden stammen uit de achttiende eeuw of
nog daarvoor.
Zoetermeer was – en is – rijk en welvarend, en in de Dorpsstraat zijn dan ook vrijstaande herenhuizen
en villa’s met riante tuinen te vinden. De Oude Kerk met de markante witte torenspits uit 1642 en de
Nicolaaskerk uit 1915 bepalen het straatbeeld rond de winkeltjes, cafés en restaurants. Ook de oude
korenmolen De Hoop (1897) is nog altijd in bedrijf.
Advertentie
Kenmerken
Overdracht
- Laatste vraagprijs
- € 481.000 vrij op naam
- Vraagprijs per m²
- € 5.228
- Status
- Verkocht
Bouw
- Soort appartement
- Portiekwoning (appartement)
- Soort bouw
- Nieuwbouw
- Bouwjaar
- 2025
- Soort dak
- Plat dak
- Keurmerken
- SWK Garantiecertificaat
- Toegankelijkheid
- Toegankelijk voor mensen met een beperking en toegankelijk voor ouderen
Oppervlakten en inhoud
- Gebruiksoppervlakten
- Wonen
- 92 m²
- Inhoud
- 276 m³
Indeling
- Aantal kamers
- 4 kamers (3 slaapkamers)
- Aantal woonlagen
- 1 woonlaag
- Voorzieningen
- Lift, mechanische ventilatie, TV kabel, en zonnepanelen
- Gelegen op
- 2e woonlaag
Energie
- Energielabel
- Niet beschikbaar
- Isolatie
- Volledig geïsoleerd
- Verwarming
- Warmte terugwininstallatie en warmtepomp
- Warm water
- Centrale voorziening
Buitenruimte
- Ligging
- In woonwijk
- Balkon/dakterras
- Balkon aanwezig
Bergruimte
- Schuur/berging
- Inpandig
Garage
- Soort garage
- Parkeerkelder
Populariteit
1.041x
Bekeken
8x
Bewaard
5-3-2025
Op Funda
Buurt

Driemanspolder-Noord
Zoetermeer- Inwoners
- 985
- Gezin met kinderen
- 12%
- Gem. vraagprijs / m²
- € 4.432
Ontdek de buurt
Benieuwd naar het woningaanbod, bewoners en lokale makelaars?
Wil je dit huis niet vergeten?
Bewaar het als favoriet. Dan vind je ’m makkelijk terug en krijg je een seintje bij veranderingen.




