Verkocht onder voorbehoud

Rijwoning 4.8 (Bouwnr. 115)3237 KD VierpoldersVierpolders

Kaart
  • 105 m²
  • 114 m²
  • 3
  • A++++
Wat worden mijn maandlasten?

Bekijk alle beschikbare woningen in project

Buitenplaats Brielle

Omschrijving

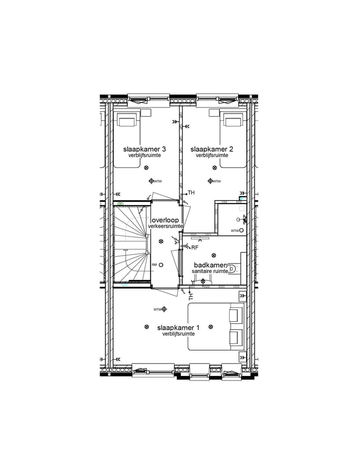
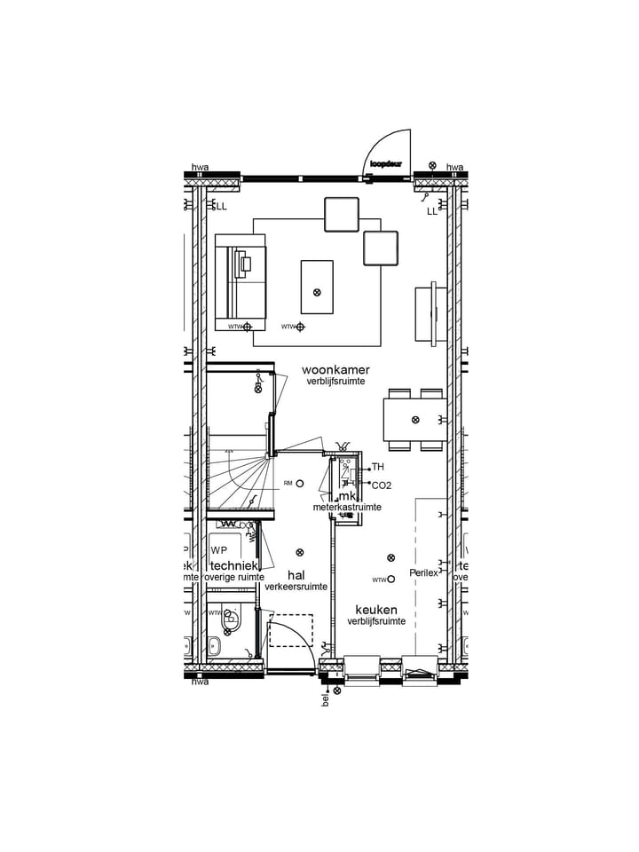
Rijwoning 4.8 meter Het moment dat je de voordeur opent, voel je het al. Dit is niet zomaar een huis. Aan de dijk of de groene laan van Buitenplaats Brielle ontvouwt zich over drie verdiepingen jouw nieuwe leven. De sfeervolle architectuur met rijke metselwerkdetails, verschillende kleuren baksteen en hier en daar een charmante tuitgevel geeft de woningen een eigen gezicht. Waar kaplaarzen bij de deur staan en avontuur om de hoek ligt. Voel je thuis in Brielle, waar elke dag een nieuw avontuur is. Voel je thuis Je stapt deze rijwoning binnen in de entreehal met het toilet, de meterkast en trap naar boven. De begane grond nodigt uit tot samenzijn. Vanuit de keuken aan de voorzijde zie je de buurt ontwaken en kook je de lekkerste maaltijden voor jezelf of je gezin. In de woonkamer speelt het dagelijks leven zich af en heb je door het brede raam goed uitzicht over de tuin. Sla de achterdeur open en stap naar buiten je achtertuin in. Een persoonlijk stukje paradijs op het zuidoosten of noordwesten. Dé plek om te genieten van het leven in de groene omgeving. De verdiepingen Boven wachten 3 slaapkamers. De verschillende groottes geven je de vrijheid om ze in te richten zoals jij wilt. De badkamer is voorzien van een douche, wastafel en 2e toilet. Hier start je elke dag fris en eindigt je dag ontspannen. Ga je mee naar de 2e verdieping? Hier zijn de aansluiting voor de wasmachine. Verder heb je alle vrijheid om inrichting te geven aan de ruimte. Wat dacht je van een fijne werkkamer, sportruimte of logeerkamer? En goed om te weten: deze woning is voorzien van energielabel A++++. Dat betekent energiezuinig wonen, lage maandlasten én een duurzame keuze. Helemaal klaar voor de toekomst! Disclaimer: Deze informatie is door Van Ravens Makelaardij met de nodige zorgvuldigheid samengesteld. De informatie is echter van algemene aard. Onzerzijds wordt echter geen enkele aansprakelijkheid aanvaard voor enige onvolledigheid, onjuistheid of anderszins, dan wel de gevolgen daarvan. Alle opgegeven maten en oppervlakten zijn indicatief. Van toepassing zijn de NVM voorwaarden.

Kenmerken

Overdracht

Aangeboden sinds
Aanvaarding
In overleg
Vraagprijs
€ 478.000 vrij op naam
Vraagprijs per m²
€ 4.552
Status
Verkocht onder voorbehoud

Bouw

Bouwjaar
Na 2020
Soort woonhuis
Eengezinswoning, tussenwoning
Soort bouw
Nieuwbouw
Soort dak
Samengesteld dak bedekt met pannen

Oppervlakten en inhoud

Gebruiksoppervlakten
Wonen
105 m²
Perceel
114 m²
Inhoud
330 m³

Indeling

Aantal kamers
4 kamers (3 slaapkamers)
Aantal badkamers
1 apart toilet
Aantal woonlagen
3 woonlagen
Voorzieningen
Balansventilatie en zonnepanelen

Energie

Energielabel
Isolatie
Volledig geïsoleerd
Verwarming
Gedeeltelijke vloerverwarming en warmtepomp

Kadastrale gegevens

VOORNE AAN ZEE
Kadastrale kaart
Oppervlakte
114 m²

Buitenruimte

Ligging
In woonwijk
Tuin
Achtertuin
Achtertuin
66 m² (13,70 meter diep en 4,80 meter breed)
Ligging tuin
Gelegen op het noordwesten

Bergruimte

Schuur/berging
Vrijstaande houten berging

Parkeergelegenheid

Soort parkeergelegenheid
Openbaar parkeren

Populariteit

0x

Bekeken

0x

Bewaard

11-12-2025

Op Funda

Buurt

Vierpolders

Vierpolders
Inwoners
1.265
Gezin met kinderen
35%
Gem. vraagprijs / m²
€ 3.928

Ontdek de buurt

Benieuwd naar het woningaanbod, bewoners en lokale makelaars?

Bekijk buurtinzichten

Wil je dit huis niet vergeten?

Bewaar het als favoriet. Dan vind je ’m makkelijk terug en krijg je een seintje bij veranderingen.