Verkocht onder voorbehoud
Rijwoning 5.4 (Bouwnr. 36)3237 KD VierpoldersVierpolders
€ 526.000 v.o.n.
Kaart
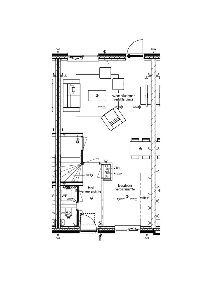
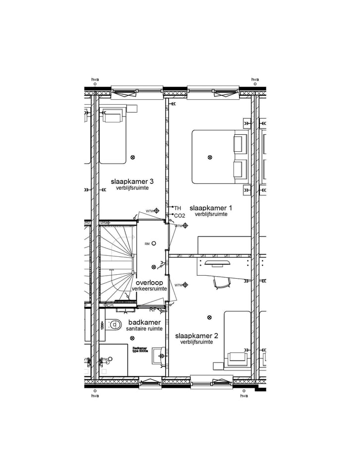
- 126 m²
- 113 m²
- 3
- A++++
Bekijk alle 5 beschikbare woningen van dit type in project
Buitenplaats BrielleOmschrijving
Advertentie
Kenmerken
Populariteit
0x
Bekeken
0x
Bewaard
11-12-2025
Op Funda
Buurt
Vierpolders
Vierpolders- Inwoners
- 1.265
- Gezin met kinderen
- 35%
- Gem. vraagprijs / m²
- € 3.928
Ontdek de buurt
Benieuwd naar het woningaanbod, bewoners en lokale makelaars?
Wil je dit huis niet vergeten?
Bewaar het als favoriet. Dan vind je ’m makkelijk terug en krijg je een seintje bij veranderingen.



