Vroomshoop Oost fase 3 - 6 vrijstaande woni (Bouwnr. 11)7681 DM VroomshoopVroomshoop-Oost
€ 613.500 v.o.n.
- 135 m²wonen
- 441 m²perceel
- 3slaapkamers
- A+++energielabel
Onderdeel van project Vroomshoop Oost fase 3 - 6 woningen, Vroomshoop
Omschrijving
6 woningen in Vroomshoop Oost fase 3
Aan de rand van Vroomshoop verrijst de nieuwe woonbuurt Vroomshoop Oost. In deze eigentijdse en toekomstbestendige woonwijk heb je een unieke kans om jouw droomhuis te creëren!
Er zijn tien verschillende woningtypen ontworpen die perfect passen op deze kavels – van tijdloos klassiek tot eigentijds. Daarbij heb je de mogelijkheid om deze woningen volledig aan te passen aan persoonlijke woonwensen. Denk aan een extra uitbouw, een tweede badkamer of een slaap- en badkamer op de begane grond. Bij Brummelhuis is vrijwel alles mogelijk.
Op de kavel met nummer 11 heeft Brummelhuis maar liefst 6 verschillende woningtypes ontwikkeld die op deze kavel gebouwd mogen worden. De kavelgrootte is 441 m². Bekijk via de website van Brummelhuis (brummelhuis.nl/vroomshoop) welke woning je op welke kavel kan bouwen!
Duurzaamheid speelt een belangrijke rol binnen de verschillende woningtypes. Elke woning is met aandacht ontwikkeld, met kwaliteit als uitgangspunt, zodat deze niet alleen aansluit bij de woonwensen van vandaag, maar ook in de toekomst blijft passen. Er is nagedacht over het latere gebruik van ruimtes, waardoor elk ontwerp moeiteloos meebeweegt met de veranderende behoeften van de bewoners. Een woning die met zorg is ontworpen en met de tijd meegaat.
Op deze kavel zijn 6 verschillende woningtypes mogelijk:
Type 1: € 655.500,- v.o.n.
Type 2: € 626.900,- v.o.n.
Type 3: € 613.500,- v.o.n.
Type 6: € 655.400,- v.o.n.
Type 7: € 641.500,- v.o.n.
Type 10: € 729.600,- v.o.n.
LOCATIE
Vroomshoop ligt in het hart van de gemeente Twenterand, in het noordoosten van Overijssel. Het dorp staat bekend als het ‘Kanaaldorp’, dankzij de ligging aan het kanaal Almelo–De Haandrik en het Zwolsekanaal, die samenkomen bij het karakteristieke Separatiepunt. Deze waterrijke en groene omgeving geeft het dorp een herkenbaar en ontspannen karakter. Aan de oostzijde van Vroomshoop verrijst de nieuwbouwwijk Vroomshoop-Oost fase 3, grenzend aan de Europasingel en het omliggende buitengebied. De wijk ligt dicht bij het centrum, met winkels, scholen en sportvoorzieningen op korte afstand, waardoor de rust van landelijk wonen wordt gecombineerd met de gemakken van een levendig dorp. Ook natuurgebied De Zandstuve ligt nabij, ideaal voor wandelen, fietsen en recreatie in het groen.
VOORZIENINGEN
Vroomshoop beschikt over een compleet aanbod aan voorzieningen die het dorp aantrekkelijk maken voor jong en oud. In het centrum bevinden zich winkels, supermarkten, horeca en het winkelhart van Twenterand. Sportliefhebbers hebben volop keuze dankzij het sportcomplex, het zwembad, de ijsbaan en recreatieplas Aquapark De Zandstuve. Daarnaast zijn er meerdere basisscholen, een middelbare school en diverse zorgvoorzieningen. In Vroomshoop-Oost fase 3 wordt bovendien een modern zorgcentrum en een brede school gerealiseerd, waar onderwijs, opvang en buurtactiviteiten samenkomen. Zo biedt Vroomshoop een veelzijdige woonomgeving met alles binnen handbereik.
Advertentie
Kenmerken
Overdracht
- Aangeboden sinds
- Aanvaarding
- In overleg
- Vraagprijs
- € 613.500 vrij op naam
- Vraagprijs per m²
- € 4.544
- Status
- Beschikbaar
Bouw
- Soort woonhuis
- Eengezinswoning, vrijstaande woning
- Soort bouw
- Nieuwbouw
- Bouwjaar
- 2026
- Keurmerken
- Woningborg Garantiecertificaat
Oppervlakten en inhoud
- Gebruiksoppervlakten
- Wonen
- 135 m²
- Perceel
- 441 m²
- Inhoud
- 559 m³
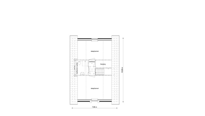
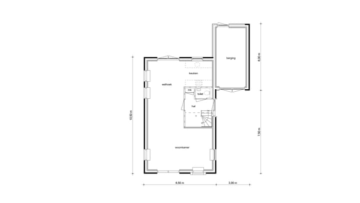
Indeling
- Aantal kamers
- 4 kamers (3 slaapkamers)
- Aantal badkamers
- 2 badkamers
- Badkamervoorzieningen
- 2 douches, 2 toiletten, en 2 wastafels
- Aantal woonlagen
- 2 woonlagen
- Voorzieningen
- Mechanische ventilatie
Energie
- Energielabel
- A+++
- Verwarming
- Gedeeltelijke vloerverwarming en warmtepomp
Kadastrale gegevens
- TWENTERAND
- Kadastrale kaart
- Oppervlakte
- 441 m²
Buitenruimte
- Ligging
- In woonwijk
Bergruimte
- Schuur/berging
- Aangebouwde stenen berging
Populariteit
0x
Bekeken
0x
Bewaard
17-12-2025
Op Funda
Buurt
Ontdek de buurt
Benieuwd naar het woningaanbod, bewoners en lokale makelaars?
Wil je dit huis niet vergeten?
Bewaar het als favoriet. Dan vind je ’m makkelijk terug en krijg je een seintje bij veranderingen.




