Onder optie
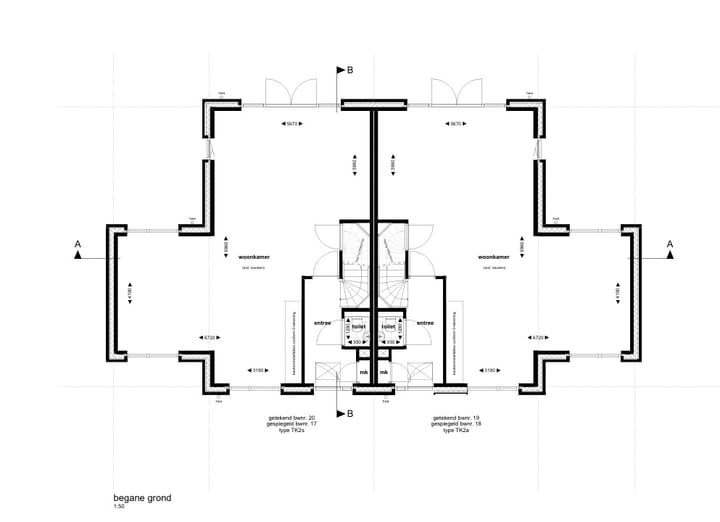
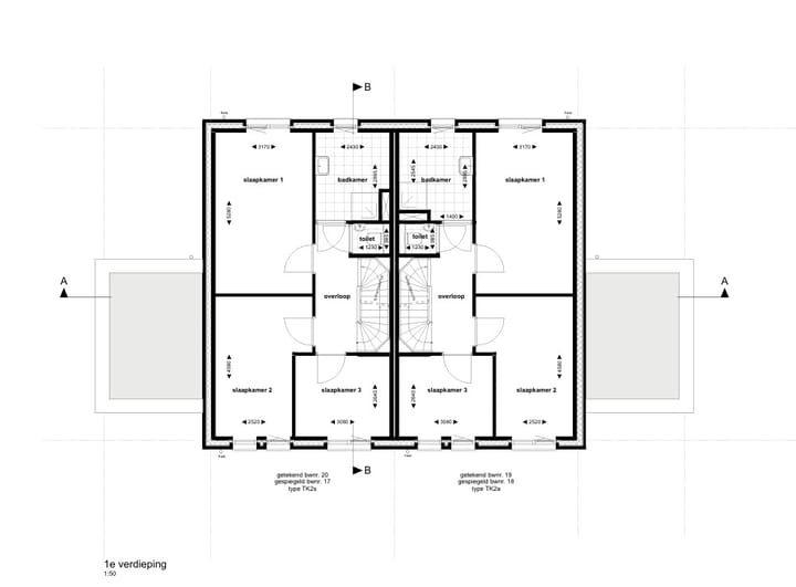
Het Dreijenveld - twee-onder-een-kapwoning (Bouwnr. 17)6706 WageningenBenedenbuurt
€ 919.000 v.o.n.
Kaart
- 170 m²
- 301 m²
- 3
- A++++
Bekijk alle woningen in project
Drie van DreijenOmschrijving
Advertentie
Kenmerken
Populariteit
0x
Bekeken
0x
Bewaard
27-2-2026
Op Funda
Buurt
Benedenbuurt
Wageningen- Inwoners
- 2.590
- Gezin met kinderen
- 22%
- Gem. vraagprijs / m²
- € 4.793
Ontdek de buurt
Benieuwd naar het woningaanbod, bewoners en lokale makelaars?
Wil je dit huis niet vergeten?
Bewaar het als favoriet. Dan vind je ’m makkelijk terug en krijg je een seintje bij veranderingen.





