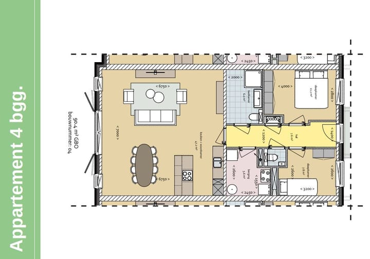
Plan Parkzicht (Bouwnr. P4)8471 WolvegaWolvega-Om de Noort
€ 434.000 v.o.n.
Kaart
- 90 m²
- 2
- A+++
Bekijk alle 18 beschikbare woningen van dit type in project
Groene Hart WolvegaOmschrijving
Advertentie
Kenmerken
Populariteit
504x
Bekeken
5x
Bewaard
7-8-2025
Op Funda
Buurt
Wolvega-Om de Noort
Wolvega- Inwoners
- 60
- Gezin met kinderen
- 75%
Ontdek de buurt
Benieuwd naar het woningaanbod, bewoners en lokale makelaars?
Wil je dit huis niet vergeten?
Bewaar het als favoriet. Dan vind je ’m makkelijk terug en krijg je een seintje bij veranderingen.


