Verkocht
Paaldijk 1021689 WE ZwaagBangert en Oosterpolder - Buurt 35 02
€ 399.000 k.k.
- 120 m²wonen
- 136 m²perceel
- 3slaapkamers
- Aenergielabel
Verkoopgeschiedenis
- Aangeboden sinds
- 28 oktober 2024
- Verkoopdatum
- 27 november 2024
- Looptijd
- 4 weken
Omschrijving
Tussenwoning op een Top locatie!
Deze keurig afgewerkte UITGEBOUWDE TUSSENWONING met BERGING én PARKEERGELEGENHEID op eigen erf ligt op een toplocatie en is een woning die zo betrokken kan worden! De woning is optimaal geïsoleerd, heeft zonnepanelen, en ligt op een heerlijke plek in de geliefde wijk Bangert Oosterpolder! De woning is in lichte kleurstellingen afgewerkt en door de uitbouw aan de achterzijde heeft u zeer veel lichtinval in de woning! De binnenstad van Hoorn ligt op 10 minuten fietsafstand en de aansluiting op de A-7 is vlakbij!
De woning wordt verkocht bij inschrijving onder gunning met vraagprijs € 399.000,--.
RE/MAX makelaar Han van Wijk begeleidt u graag bij de bezichtiging.
De inschrijving eindigt op donderdag 14 november 2024 om 17.00 uur.
Iedereen wordt op deze wijze in de gelegenheid gesteld om een bieding uit te kunnen brengen.
Beelden vertellen u meer dan tekst. Wij verwijzen u dan ook graag naar onze video, de Matterport presentatie én de interactieve video op onze site. U krijgt hierbij een video introductie, een videovlucht om én door de woning en maar liefst meer dan 50 foto’s van het object. U kunt de woning ook op een virtuele wijze bekijken. Dit kan met een VR bril, die wij bij de bezichtiging aan u zullen verstrekken, voor de ultieme beleving!
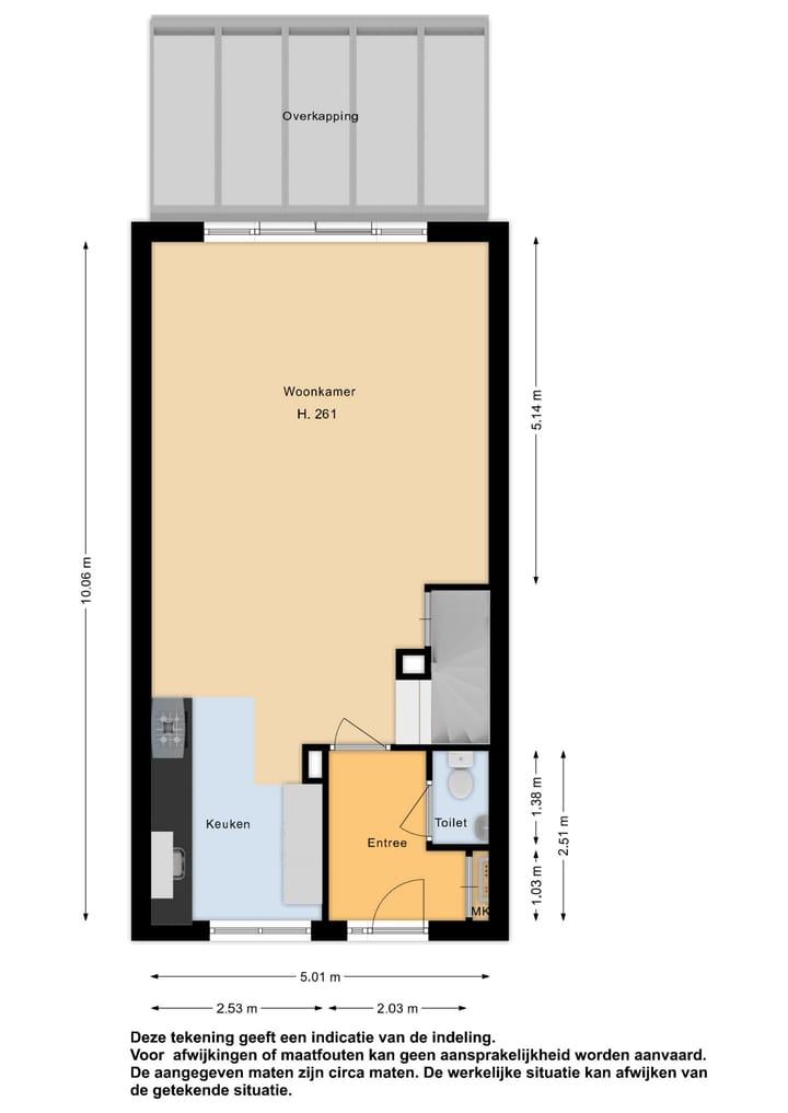
Begane grond: wanneer u de woning binnenkomt, treft u de hal met vaste kasten, een meterkast en een toilet met closet en fonteintje aan. De 1e indruk is gelijk goed!
De uitgebouwde woonkamer heeft ruime afmetingen en via de openslaande tuindeuren heeft u een fraaie kijk op de achtergelegen tuin. De vloer is voorzien van een moderne laminaatvloer. De aanbouw aan de achterzijde van de woning zorgt voor veel lichtinval én door de vormgeving van deze living kunt u op diverse wijzen uw interieur inrichten. Bovendien is deze woning uitgevoerd met hete lucht verwarming, waardoor u nergens radiatoren vindt en dus alle ruimte volledig kunt benutten. In deze woonkamer heeft u voor uw overtollige spulletjes een fijne trapkast tot uw beschikking. Vanuit de woonkamer heeft u toegang naar de 1e verdieping.
De straatgerichte keuken is aan beide zijden van de ruimte geplaatst en in een lichte kleurstelling uitgevoerd en afgewerkt met een fraai granieten werkblad. De keuken is voorzien van een 5 pits gaskookplaat, afzuigkap, vaatwasser, combimagnetron, koelkast en vriezer. Daarnaast heeft u voldoende kastruimte tot uw beschikking. Naast de keuken kunt u prima een eettafel plaatsen, waardoor u een woon/leefkeuken kunt creëren.
1e verdieping: op de 1e verdieping zijn 2 slaapkamers van verschillende afmetingen aanwezig. Beide slaapkamers zijn keurig afgewerkt met onder meer laminaatvloeren. De twee slaapkamers zijn met een elektrisch bedienbaar rolluik uitgevoerd. Zeer praktisch is de separate wasruimte op de overloop van deze verdiepingsvloer. Naast de wasmachine aansluiting, treft u hier ook de opstellingsmogelijkheid voor een wasdroger aan.
De keurig afgewerkte badkamer is betegeld in een lichte kleurstelling en voorzien van een ligbad, douchecabine, closet en wastafel. Plezierig is ook het raam dat u heerlijk open kunt doen en geeft ook fijn daglicht in de badkamer.
2e verdieping: de 2e verdieping is met een vaste trap bereikbaar. Op de overloop treft u naast de CV opstelling, mechanische ventilatie ook de Brink hete luchtverwarmingsunit aan. Op deze etage is een fijne 3e slaapkamer aanwezig. Door de aanwezige kunststof dakkapel heeft u veel ruimte tot uw beschikking. Eventueel kunt u de ruimte zelfs verdelen in 2 slaapkamers! Uiteraard is ook deze etage keurig afgewerkt met een laminaatvloer. Middels een vlizotrap kunt u vanuit deze kamer een bergzolder bereiken. Hier kunt u prima uw spulletjes een plekje geven.
Tuin: vanuit de woonkamer komt u via openslaande tuindeuren op de heerlijke veranda die aan deze woning is aangebouwd. De ruime veranda geeft u de mogelijkheid om op regenachtige dagen in de zomer toch heerlijk uw tuindeuren open te houden en lekker buiten te zitten. Verder treft u een heerlijke onderhoudsvriendelijke tuin op het westen! De tuin is nagenoeg volledig voorzien van sierbestrating. Via de achterpoort kunt u ook achterom uw erf bereiken. U kunt door de zonnige ligging de hele dag van de zon genieten!
Parkeergelegenheid: u kunt op eigen erf uw auto parkeren. Middels een brede schuifdeur kunt u uw terrein bereiken. Tezamen met de openbare parkeergelegenheid aan de voorzijde van de woning kunt u dus meerdere auto’s in de directe nabijheid rond de woning parkeren.
Berging: achterin de tuin is een handige berging aanwezig. Deze berging is voorzien van een betonvloer en elektra. In de berging kunt u prima uw gereedschappen, tuinmeubelen en fietsen een plekje geven.
Bijzonderheden:
De woning wordt verkocht bij inschrijving onder gunning met vraagprijs € 399.000,--.
RE/MAX makelaar Han van Wijk begeleidt u graag bij de bezichtiging.
De inschrijving eindigt op donderdag 14 november 2024 om 17.00 uur.
Iedereen wordt op deze wijze in de gelegenheid gesteld om een bieding uit te kunnen brengen.
Bouwjaar: 2008
Inhoud: ca. 395 m³
Woonoppervlakte: ca. 120 m²
Externe bergruimte: ca. 6 m²
Gebouwgebonden buitenruimte: ca. 15 m²
Perceeloppervlakte: 136 m²
Advertentie
Kenmerken
Overdracht
- Laatste vraagprijs
- € 399.000 kosten koper
- Vraagprijs per m²
- € 3.325
- Status
- Verkocht
Bouw
- Soort woonhuis
- Eengezinswoning, tussenwoning
- Soort bouw
- Bestaande bouw
- Bouwjaar
- 2008
- Soort dak
- Zadeldak bedekt met pannen
Oppervlakten en inhoud
- Gebruiksoppervlakten
- Wonen
- 120 m²
- Gebouwgebonden buitenruimte
- 15 m²
- Externe bergruimte
- 6 m²
- Perceel
- 136 m²
- Inhoud
- 395 m³
Indeling
- Aantal kamers
- 4 kamers (3 slaapkamers)
- Aantal badkamers
- 1 badkamer en 1 apart toilet
- Badkamervoorzieningen
- Douche, ligbad, toilet, en wastafel
- Aantal woonlagen
- 2 woonlagen en een zolder
- Voorzieningen
- Rolluiken en zonnepanelen
Energie
- Energielabel
- A
- Isolatie
- Volledig geïsoleerd
- Verwarming
- Heteluchtverwarming
- Warm water
- Cv-ketel
Kadastrale gegevens
- HOORN I 10088
- Kadastrale kaart
- Oppervlakte
- 136 m²
- Eigendomssituatie
- Volle eigendom
Buitenruimte
- Ligging
- Aan rustige weg en in woonwijk
- Tuin
- Achtertuin en voortuin
- Achtertuin
- 58 m² (11,50 meter diep en 5,00 meter breed)
- Ligging tuin
- Gelegen op het westen bereikbaar via achterom
Bergruimte
- Schuur/berging
- Vrijstaande houten berging
- Voorzieningen
- Elektra
Parkeergelegenheid
- Soort parkeergelegenheid
- Op eigen terrein en openbaar parkeren
Populariteit
2.508x
Bekeken
27x
Bewaard
28-10-2024
Op Funda
Buurt
Ontdek de buurt
Benieuwd naar het woningaanbod, bewoners en lokale makelaars?
Wil je dit huis niet vergeten?
Bewaar het als favoriet. Dan vind je ’m makkelijk terug en krijg je een seintje bij veranderingen.




