Hogevecht 1921102 HK AmsterdamRechte H-buurt
€ 340.000 k.k.
- 93 m²wonen
- 3slaapkamers
Omschrijving
Een ruim ingedeeld vierkamerappartement van 93 m2 gelegen op de tweede verdieping. De woning heeft een eigen parkeerbox in de overdekte parkeergarage. Lekker ruim balkon van 9.55 meter op het zuiden. Leeg en geheel naar eigen idee in te richten.
EIGEN PARKERPLAATS - GASLOOS WONEN - ERFPACHT AFGEKOCHT TOT 2054
Dit appartement heeft een ideale ligging in een rustige, groene omgeving met vrij uitzicht aan zowel de voor- als achterzijde. Winkels, scholen, crèches en diverse recreatiemogelijkheden in en om het Nelson Mandela en Brassa park zijn aanwezig. Het winkelcentrum Amsterdamse Poort, uitgaan en eten in de Arena Boulevard zoals Pathé bioscoop en de Ziggo Dome.
Openbaar vervoer is goed bereikbaar, bus 41 en 49 aan de wegzijde, metrostation Bullewijk of Bijlmer Arena en uiteraard het NS Intercitystation Bijlmer-Arena. Deze en de goede aansluiting op de ringweg brengt u vlot richting Schiphol, Almere, Zaandam, Utrecht.
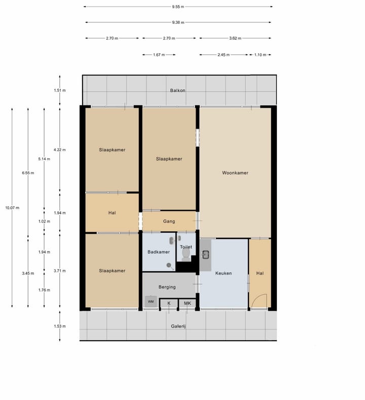
Indeling:
Het appartement bevindt zich op de 2e etage van het complex.
Aan de galerij bevindt zich de meterkast en de Stadsverwarmingsunit. Gasloos wonnen is hier mogelijk!
Woonkamer van ca. 24 m² (6.55m x 3.62 m) met toegang tot het royale balkon, gelegen op het zuiden
Keuken.
Keuken met de optie om de muur naar de woonkamer weg te halen en dan een ruime open woon-leef keuken te realiseren. Dan ontstaat eer ook lichtinval van 2 zijden het woongedeelte in.
Vanuit de keuken kunt u naar de inpandige berging met aparte wasmachineaansluiting.
3 slaapkamers
Twee slaapkamers bevinden zich aan de achterzijde, waarvan één met toegang tot het balkon. De derde slaapkamer ligt aan de voorzijde.
Badkamer
De badkamer is voorzien van een wastafel en douche.
Apart toilet met fonteintje.
Parkeren
In het parkeergebouw bevinden zich nog een berging van 3,8 m² en een eigen parkeerbox of kooi genoemd
Detailinformatie:
- Woonoppervlakte 93 m²;
- Bouwjaar 1970;
- Verwarming en heet water komt via stadsverwarming;
- Woningbreedbalkon op het zuiden 14,1 m²;
- Bergruimte op de begane grond 3,8 m²;
- Parkeerbox(kooi) in de overdekte garage;
- Energielabel nog in aanvraag B of A
- Bijdrage VvE kosten: € 274,81per maand (exclusief voorschot
stookkosten van € 187,00 per maand, afgestemd op persoonlijk gebruik),
€ 65 voor de berging en voor de parkeerbox; vve beheer via Metea.
- Erfpacht vooruitbetaald tot en met 31 januari 2054;
- Oplevering kan snel, staat leeg, in overleg.
Ruim appartement voor de toekomst die je nu helemaal naar eigen smaak kan inrichten!
Contact ons voor een bezichtging!
Advertentie
Kenmerken
Overdracht
- Aangeboden sinds
- Aanvaarding
- In overleg
- Vraagprijs
- € 340.000 kosten koper
- Vraagprijs per m²
- € 3.656
- Status
- Beschikbaar
- Bijdrage VvE
- € 343,74 per maand
Bouw
- Soort appartement
- Galerijflat (appartement)
- Soort bouw
- Bestaande bouw
- Bouwjaar
- 1970
- Soort dak
- Plat dak bedekt met bitumineuze dakbedekking
Oppervlakten en inhoud
- Gebruiksoppervlakten
- Wonen
- 93 m²
- Gebouwgebonden buitenruimte
- 14 m²
- Externe bergruimte
- 4 m²
- Inhoud
- 295 m³
Indeling
- Aantal kamers
- 4 kamers (3 slaapkamers)
- Aantal badkamers
- 1 apart toilet
- Aantal woonlagen
- 1 woonlaag
- Voorzieningen
- Lift en TV kabel
- Gelegen op
- 10e woonlaag
Energie
- Energielabel
- Niet beschikbaar
- Verwarming
- Stadsverwarming
- Warm water
- Stadsverwarming
Kadastrale gegevens
- WEESPERKARSPEL L 8273
- Kadastrale kaart
- Eigendomssituatie
- Gemeentelijke erfpacht (einddatum erfpacht: 01-02-2054)
Buitenruimte
- Ligging
- In woonwijk en vrij uitzicht
- Balkon/dakterras
- Balkon aanwezig
Bergruimte
- Schuur/berging
- Box
Garage
- Soort garage
- Garagebox en vrijstaande stenen garage
- Capaciteit
- 1 auto
Parkeergelegenheid
- Soort parkeergelegenheid
- Betaald parkeren, parkeergarage en parkeervergunningen
VvE checklist
- Inschrijving KvK
- Ja
- Jaarlijkse vergadering
- Ja
- Periodieke bijdrage
- Ja (€ 343,74 per maand)
- Reservefonds aanwezig
- Ja
- Onderhoudsplan
- Ja
- Opstalverzekering
- Ja
Populariteit
573x
Bekeken
11x
Bewaard
25-4-2026
Op Funda
Buurt

Rechte H-buurt
Amsterdam- Inwoners
- 3.035
- Gezin met kinderen
- 31%
- Gem. vraagprijs / m²
- € 3.871
Ontdek de buurt
Benieuwd naar het woningaanbod, bewoners en lokale makelaars?
Wil je dit huis niet vergeten?
Bewaar het als favoriet. Dan vind je ’m makkelijk terug en krijg je een seintje bij veranderingen.




