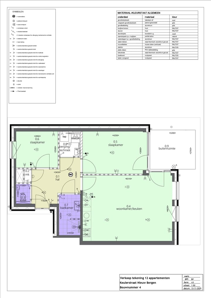
Appartement Keulerstaete (Bouwnr. 4)5854 BZ Bergen (LI)Nieuw-Bergen Kern
€ 321.500 v.o.n.
Kaart
- 72 m²
- 2
- A+++
Bekijk alle 6 beschikbare woningen van dit type in project
Keulerstaete | BergenOmschrijving
Advertentie
Kenmerken
Populariteit
0x
Bekeken
0x
Bewaard
5-12-2025
Op Funda
Buurt
Nieuw-Bergen Kern
Bergen (LI)- Inwoners
- 4.355
- Gezin met kinderen
- 30%
- Gem. vraagprijs / m²
- € 3.326
Ontdek de buurt
Benieuwd naar het woningaanbod, bewoners en lokale makelaars?
Wil je dit huis niet vergeten?
Bewaar het als favoriet. Dan vind je ’m makkelijk terug en krijg je een seintje bij veranderingen.





