Verkocht onder voorbehoud
De Linde type B gespiegeld (Bouwnr. 6)4765 CN Zevenbergschen Hoek (Gem. Moerdijk)Zevenbergschen Hoek
€ 535.000 v.o.n.
- wonen
- 292 m²perceel
- 3slaapkamers
- A+++energielabel
Bekijk de laatste beschikbare woning van dit type in project
Nieuw Spoorenbergh Zevenbergschen HoekOmschrijving
NIEUW SPOORENBERGH
Zevenbergschen Hoek is een plek waar je direct tot rust komt. Om deze unieke woonbeleving voor nóg meer mensen mogelijk te maken, hebben we het woningaanbod in Nieuw Spoorenbergh verfijnd en aangescherpt. Met slimme aanpassingen en een frisse kijk op de ontwerpen, sluiten de woningen nu perfect aan op de woonwensen van vandaag. Geniet van het polderlandschap met alle dagelijkse voorzieningen direct om de hoek.
FINANCIËLE VOORDELEN
Dankzij het energieneutrale ontwerp en energielabel A+++ geniet je van een duurzaam thuis met flinke financiële voordelen. Je ontvangt tot € 25.000,- extra leenruimte en bij veel hypotheekverstrekkers een aantrekkelijke rentekorting! Daarnaast profiteer je van een bijzondere regeling: je betaalt de bouw van de woning pas bij de sleuteloverdracht. In combinatie met de zeer korte bouwtijd voorkom je hiermee dubbele maandlasten tijdens de bouw. Dat is pas zorgeloos nieuwbouw kopen.
DUURZAAM WONEN IS JOUW TOEKOMST
Je koopt hier een huis dat klaar is voor de toekomst. De woningen zijn volledig gasloos en energieneutraal. De combinatie van een luchtwarmtepomp en triple glas houdt de warmte binnen waar het hoort. In de winter geniet je van de behaaglijke vloerverwarming en in de zomer zet je de vloerkoeling aan voor een fris huis. De zonnepanelen op het dak verlagen jouw energierekening.
Wist je dat je via de projectwebsite alle informatie kunt downloaden?
SNELLE OPLEVERING
Geen jarenlange onzekerheid, maar een vlot bouwproces. Door ons doordachte en efficiënte bouwproces realiseren we een bouwtijd van slechts circa vijf maanden*. Wij combineren jarenlange ervaring met een strakke planning, waardoor de overbruggingstijd tot een minimum wordt beperkt. Kwaliteit en snelheid gaan hier hand in hand, zodat jij sneller dan verwacht de sleutel van je toekomstbestendige woning in handen hebt.
DE GOUDEN RAND VAN ZEVENBERGSCHEN HOEK
Met Breda, Dordrecht en Rotterdam om de hoek woon je hier centraal én landelijk tegelijk. Via de A16 en A59 zit je in no time op weg richting de Randstad of Midden-Brabant. Liever met het openbaar vervoer? Station Lage Zwaluwe en busverbindingen naar Zevenbergen en Breda maken de bereikbaarheid compleet.
MAAK VAN JOUW DROOM EEN REALITEIT
Ben je enthousiast geworden? Alle details, plattegronden en informatie zijn direct te downloaden via de projectwebsite:
Wacht niet te lang. Schrijf je vandaag nog in voor jouw voorkeurswoning en zet de stap naar een duurzame toekomst. De verkoop is gestart, dus zorg dat je er op tijd bij bent voordat iemand anders de keuze voor jouw favoriete bouwnummer maakt.
Heb je nog vragen of wil je persoonlijk advies? Bon makelaardij en Steef! Makelaars staan klaar om je verder te helpen.
De linde (Type B) is een riante twee-onder-een-kapwoning met een gebruiksoppervlakte van 164 m² en een elegante klassiek-landelijke uitstraling. Het ontwerp valt op door de strakke witte gevels, de traditionele kapvorm en de grote raampartijen die veel licht en ruimte binnenbrengen.
Binnen biedt de woning volop mogelijkheden voor een ruime woonkeuken, een sfeervolle woonkamer en meerdere slaapkamers, waardoor dit woningtype perfect aansluit bij gezinnen die ruimte, luxe en comfort zoeken.
Op de foto zie je twee identieke woningen naast elkaar, die samen een stijlvol geheel vormen maar ieder volop privacy en woonkwaliteit bieden. De inhoudsmaten zijn incl. berging.
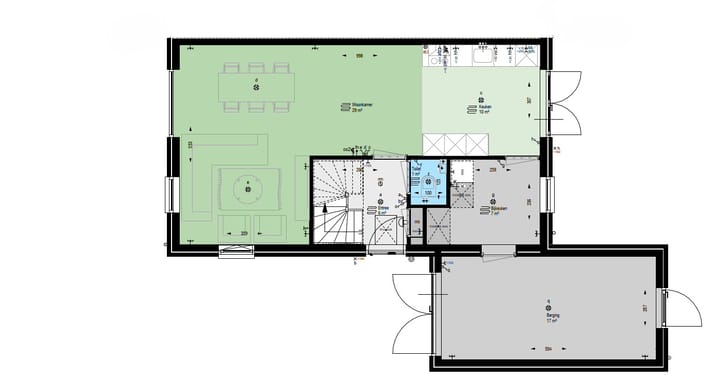
Indeling begane grond:
Zij-entree/hal met trapopgang naar de eerste verdieping, meterkast en toilet, toegang tot de U-vormige woonkamer met opstelplaats voor de keuken aan de tuinzijde en openslaande tuindeuren, vanuit de keuken toegang tot de ruime berging welke is voorzien van unit warmtepomp met voorraadvat en een loopdeur naar de voortuin.
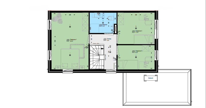
Indeling eerste verdieping:
Overloop met trapopgang naar de tweede verdieping, 1 voorslaapkamer, 2 achterslaapkamers, badkamer.
Indeling tweede verdieping:
Royale open zolder met daktuimelraam, WTW-unit, aansluiting voor de wasmachine en de mogelijkheid voor het creëren van 1 of 2 extra slaapkamers.
Algemeen:
De woning wordt op de begane grond en eerste verdieping voorzien van vloerverwarming met koeling.
De woning wordt voorzien van 6 zonnepanelen en een lucht-water warmtepomp met een voorraadvat met 200 liter water.
De woning heeft een voorlopig energielabel A+++ (tot de oplevering)
Advertentie
Kenmerken
Overdracht
- Aangeboden sinds
- Aanvaarding
- In overleg
- Vraagprijs
- € 535.000 vrij op naam
- Vraagprijs per m²
- € 3.262
- Status
- Verkocht onder voorbehoud
Bouw
- Soort woonhuis
- Eengezinswoning, 2-onder-1-kapwoning
- Soort bouw
- Nieuwbouw
- Bouwjaar
- 2026
- Soort dak
- Zadeldak bedekt met pannen
Oppervlakten en inhoud
- Gebruiksoppervlakten
- Wonen
- ca. 164 m²
- Perceel
- 292 m²
- Inhoud
- 625 m³
Indeling
- Aantal kamers
- 4 kamers (3 slaapkamers)
- Aantal badkamers
- 1 badkamer en 1 apart toilet
- Badkamervoorzieningen
- Douche, toilet, en wastafel
- Aantal woonlagen
- 2 woonlagen en een zolder
Energie
- Energielabel
- A+++
- Isolatie
- Volledig geïsoleerd
Kadastrale gegevens
- MOERDIJK
- Kadastrale kaart
- Oppervlakte
- 292 m²
Buitenruimte
- Tuin
- Achtertuin en voortuin
- Achtertuin
- 168 m² (18,24 meter diep en 9,19 meter breed)
- Ligging tuin
- Gelegen op het noordoosten
Bergruimte
- Schuur/berging
- Aangebouwde stenen berging
Parkeergelegenheid
- Soort parkeergelegenheid
- Op eigen terrein
Populariteit
828x
Bekeken
13x
Bewaard
14-11-2025
Op Funda
Buurt

Zevenbergschen Hoek
Zevenbergschen Hoek (Gem. Moerdijk)- Inwoners
- 1.295
- Gezin met kinderen
- 32%
- Gem. vraagprijs / m²
- € 3.700
Ontdek de buurt
Benieuwd naar het woningaanbod, bewoners en lokale makelaars?
Wil je dit huis niet vergeten?
Bewaar het als favoriet. Dan vind je ’m makkelijk terug en krijg je een seintje bij veranderingen.




