Sold
Kickstart Alphen (Bouwnr. 24)2404 HE Alphen aan den RijnBedrijventerrein Rijnhaven-Oost
€ 249,299 v.o.n.
- 48 m²living area
- A+++energy label
Sales history
- Listed since
- October 21, 2023
- Date of sale
- April 16, 2025
- Term
- 17½ month
Description
Kickstart! Een unieke kans voor starters om de eerste eigen woning te kopen!
Bouwnummer 24
Type A Standaardwoningen aan de noordkant.
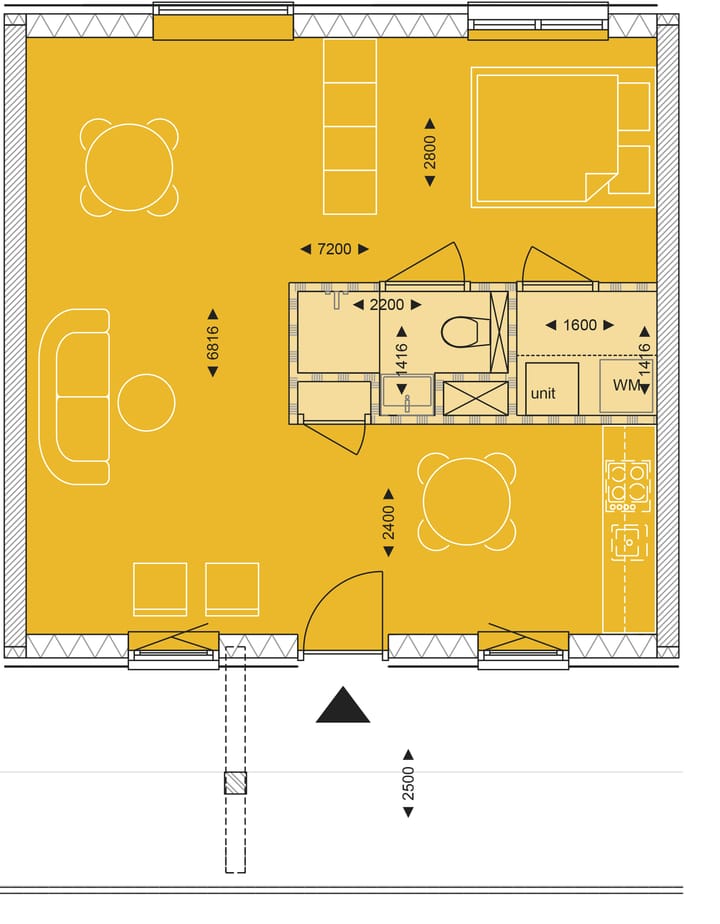
Aan de Energieweg 3 in Alphen aan den Rijn komt Kickstart-Alphen: een project met 48 starterswoningen van bijna 50 m². Alle woningen zijn qua grootte bijna identiek (tussen de 46,9 en 48,5 m²), maar verschillen iets in indeling vanwege de ligging in het gebouw. In totaal zijn er zeven types.
De woningen zijn zeer comfortabel, duurzaam en met een lekkere buitenruimte. De plek is perfect: de Rijnhaven in Alphen aan den Rijn ontwikkelde zich de afgelopen jaren tot de aantrekkelijkste woonlocatie van de stad met de Baronie om de hoek en de hippe Werf aan de overkant van de haven.
Bouwnummer 24 in een vogelvlucht:
• De woning bevind zich op de 3e verdieping aan de noordkant
• Woonoppervlakte van ca. 49 m2
• De woning beschikt over de mogelijkheid tot het realiseren van 2 slaapkamers of een afgescheiden werkruimte
• Door een zeer duurzame bouw zijn de energielasten zeer laag
• De woning beschikt over een complete badkamer met douche, wastafel en toilet en is voorzien van een aparte
wasmachinekast.
• Je fiets kun je kwijt in een grote, veilige fietsenstalling in het gebouw zelf
• Parkeren kan op eigen terrein er zijn totaal 27 parkeerplaatsen, daar staan ook deelauto’s.
• Je spaart vanaf de eerste hypotheekbetaling. Je lost namelijk je schuld in kleine stapjes af en na een periode van
anti-speculatie (zie hieronder) profiteer je als de woning in waarde is gestegen
Wil je een moderne loftwoning? Of liever een indeling met een apart slaapgedeelte? Of naast een slaapkamer ook ruimte voor een afgescheiden werkgedeelte? In Kickstart-Alphen is heel veel indelingsvrijheid, zodat je de woning helemaal naar eigen wens kunt maken! De afscheidingen kun je maken met kasten en/of roomdividers. N.b: In verband met de balansventilatie kun je geen volledig gesloten wanden maken. Voor de keuken zijn er verschillende locaties denkbaar, enige voorwaarde is dat deze altijd verbonden is met het sanitair blok in het hart van de woningen i.v.m. leidingen etc. Hiervoor zijn twee opties beschikbaar om de keuken op de ideale plaats te realiseren.
Keuzemogelijkheden sanitair en muurafwerking
In het hart van elke woning komt een heel efficiënte ruimte waarin een toilet, douche en wasmachineruimte is opgenomen. In de basis is dit compleet afgewerkt met sanitair, inclusief kranen en douche. Ook is de wandafwerking in douche, toilet standaard in de verkoopprijs opgenomen. Tegen een meerprijs zijn zowel voor het sanitair als de wandafwerking luxere varianten beschikbaar. Op de projectwebsite is een overzicht met de verschillende opties opgenomen. Alle kopers die een woning toegewezen hebben gekregen, worden uitgenodigd op een informatiebijeenkomst, waarin de opties worden toegelicht. N.B. de woningen worden opgeleverd zonder keuken.
BELANGRIJK OM TE WETEN:
• De verkoopprijzen zijn relatief laag omdat je geen grondkosten hebt: Kickstart-Alphen werkt met een recht van opstal. Daarvoor betaal je maandelijks wel een retributie, een vergoeding van circa 50 euro per maand. Die int de VVE naast de gebruikelijke servicekosten.
• De gemeente Alphen aan den Rijn kent een zelfbewoningsplicht voor de eerste drie jaar na de eerste aankoop. Voor een periode van vijf jaar na de eerste aankoop geldt een antispeculatiebeding.
Deze informatie is met de nodige zorgvuldigheid samengesteld. Onzerzijds wordt echter geen enkele aansprakelijkheid aanvaard voor enige onvolledigheid, onjuistheid of anderszins, dan wel de gevolgen daarvan. Alle opgegeven maten en oppervlakten zijn indicatief. Bijzonder bepaling: Deze aanbieding is geheel vrijblijvend en wordt gedaan onder voorbehoud (schriftelijke) goedkeuring en ondertekening door (directie)eigenaar/eigenaresse/opdrachtgever.
Advertisement
Features
Transfer of ownership
- Last asking price
- € 249,299 vrij op naam
- Asking price per m²
- € 5,194
- Status
- Sold
Construction
- Type apartment
- Galleried apartment (apartment)
- Building type
- New property
- Year of construction
- 2024
- Type of roof
- Flat roof covered with asphalt roofing
- Quality marks
- Woningborg Garantiecertificaat
Surface areas and volume
- Areas
- Living area
- 48 m²
- Exterior space attached to the building
- 5 m²
- Volume in cubic meters
- 141 m³
Layout
- Number of rooms
- 1 room
- Number of bath rooms
- 1 bathroom
- Bathroom facilities
- Shower, toilet, and sink
- Number of stories
- 6 stories
- Facilities
- Balanced ventilation system, optical fibre, and elevator
- Located at
- 3rd floor
Energy
- Energy label
- A+++
- Insulation
- Completely insulated
- Heating
- Heat pump
- Hot water
- Electrical boiler
Exterior space
- Location
- Alongside a quiet road and alongside waterfront
Parking
- Type of parking facilities
- Parking on private property
Popularity
0x
Viewed
0x
Saved
20-10-2023
On Funda
Neighborhood

Bedrijventerrein Rijnhaven-Oost
Alphen aan den Rijn- Residents
- 835
- Family with children
- 10%
Discover the neighborhood
Curious about the housing supply, residents and local real estate agents?
Don’t want to forget this home?
Save it as a favorite. You’ll easily find it back and get notified when something changes.




