Polderwijk fase 3 | Bouwnummer 033 (Bouwnr. 033)2661 AA BergschenhoekWilderszijde
€ 699,000 v.o.n.
Map
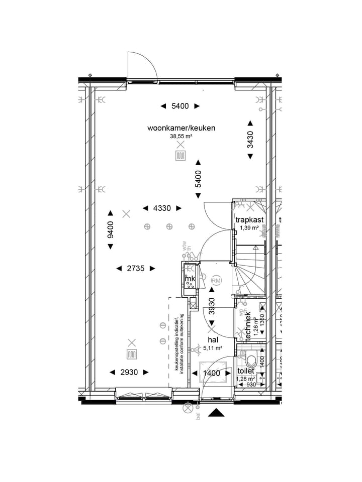
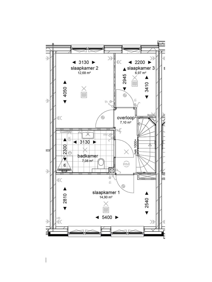
- 142 m²
- 125 m²
- 4
Description
Advertisement
Features
Popularity
0x
Viewed
0x
Saved
19-1-2026
On Funda
Neighborhood
Wilderszijde
Bergschenhoek- Residents
- 685
- Family with children
- 67%
Discover the neighborhood
Curious about the housing supply, residents and local real estate agents?
Don’t want to forget this home?
Save it as a favorite. You’ll easily find it back and get notified when something changes.



