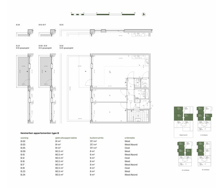
Princenpark Breda Gebouw B Type B (Bouwnr. B.16)4813 EA BredaPrincenhage
€ 484,000 v.o.n.
Map
- 91 m²
- 2
- A+++
This is the last available home of this type in project
Princenpark | Fase 1 | Appartementen & stadswoningen | Bouw gestart!Description
Advertisement
Features
Popularity
1,656x
Viewed
14x
Saved
1-4-2025
On Funda
Neighborhood
Princenhage
Breda- Residents
- 8,995
- Family with children
- 35%
- Avg. asking price / m²
- € 4,387
Discover the neighborhood
Curious about the housing supply, residents and local real estate agents?
Don’t want to forget this home?
Save it as a favorite. You’ll easily find it back and get notified when something changes.





