Sold
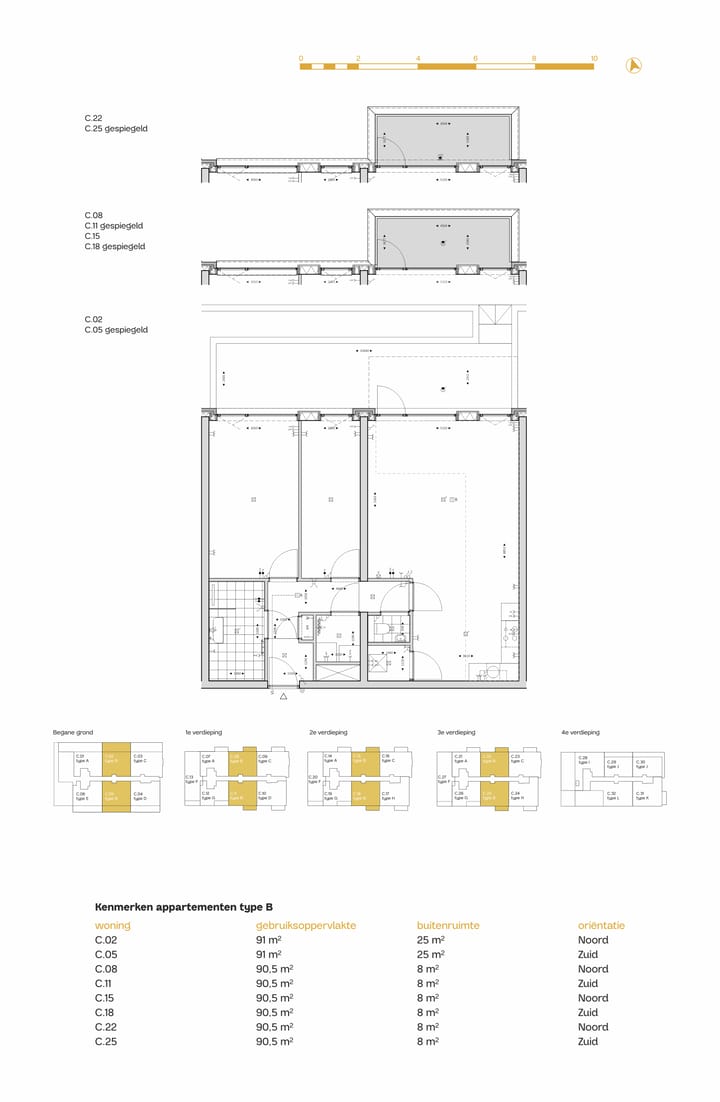
Princenpark Breda Gebouw C Type B (Bouwnr. C.18)4813 EA BredaPrincenhage
€ 488,000 v.o.n.
Map
- 91 m²
- 2
- A+++
Sales history
- Listed since
- April 1, 2025
- Date of sale
- December 22, 2025
- Term
- 8½ month
Description
Advertisement
Features
Popularity
0x
Viewed
0x
Saved
1-4-2025
On Funda
Neighborhood
Princenhage
Breda- Residents
- 8,995
- Family with children
- 35%
- Avg. asking price / m²
- € 4,283
Discover the neighborhood
Curious about the housing supply, residents and local real estate agents?
Don’t want to forget this home?
Save it as a favorite. You’ll easily find it back and get notified when something changes.





