Sold
Appartement | 1e verdieping (Bouwnr. 7)9207 BK DrachtenDe Folgeren centrum
€ 370,000 v.o.n.
- 82 m²living area
- 2bedrooms
- A+++energy label
Part of project Nij Wenwille, Drachten
Sales history
- Listed since
- September 10, 2025
- Date of sale
- November 5, 2025
- Term
- 8 weeks
Description
WENJE FOAR ELKENIEN | NIJ WENWILLE
Kijk voor meer informatie op: nij-wenwille.nl!
KENMERKEN BOUWNUMMER 7
- gelegen op de 1e verdieping
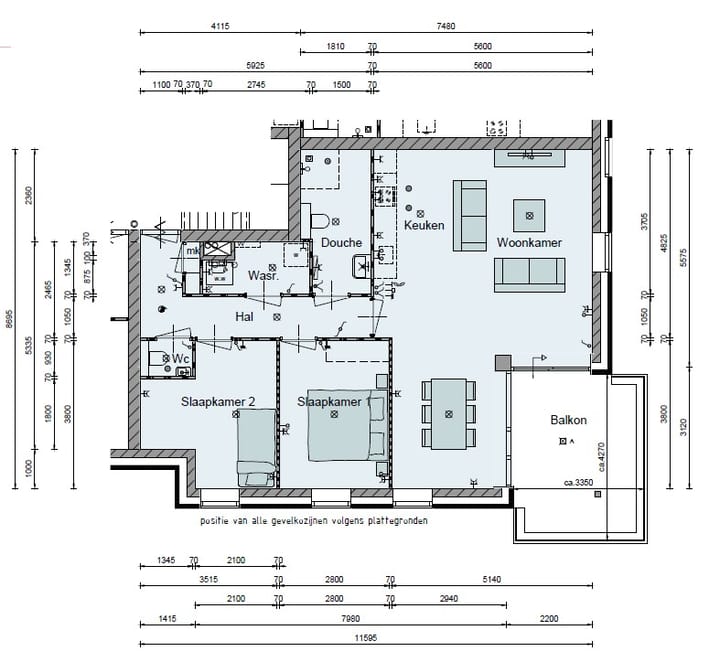
- woonoppervlakte circa 82 m2
- woonkamer met open keukenruimte van circa 42 m2
- 2 slaapkamers van circa 11 en 13 m2
- balkon van 14 m2 gelegen op het zuidoosten
- inclusief sanitair en tegelwerk
- separate berging op de begane grond
- eigen aangewezen parkeerplaats
- voorzien van vloerverwarming
APPARTEMENTEN: STIJLVOL WONEN MET EEN HISTORISCH TINTJE
In het kleinschalige appartementengebouw, geïnspireerd op klassieke pakhuizen, woon je heerlijk comfortabel. Vanaf je balkon heb je een prachtig uitzicht over het water en het groene landschap. Ideaal voor wie zorgeloos wil wonen zonder gedoe met tuinonderhoud. De 11 appartementen hebben een gebruiksoppervlakte van circa 66 tot 82 m2 en beschikken over twee slaapkamers en een terras of (deels) inpandig balkon.
PAKHUISSFEER
Een opvallend onderdeel in het plan is het appartementengebouw. Het is een bescheiden landmark, maar wel van afstand herkenbaar en passend bij de omgeving. 'Met zijn dubbele kap en klassieke pakhuissfeer voegt dit gebouw karakter toe aan de plek aan het water. Het ontwerp is een knipoog naar de pakhuizen van weleer, zoals die aan het Moleneind en langs de oude Drachtster Trekvaart stonden.
Wat bewoners straks het meest zal aanspreken? 'Het comfort van een moderne woning, gecombineerd met de ligging in een groen park, midden in de stad. Dat is ontspannen wonen op z'n best!
DRACHTEN: EEN BRUISEND DORP ALS JE ACHTERTUIN
Vanuit het appartement in Nij Wenwille spring je op de fiets en ben je binnen tien minuten in het gezellige centrum van Drachten. Even snel boodschappen doen, een terrasje pakken met vrienden of winkelen - alles ligt binnen handbereik. In cultureel centrum De Lawei geniet je van theater, muziek en exposities, en in de Bios zie je de nieuwste films in één van de moderne filmzalen.
Daarmee geniet je in Nij Wenwille van het beste van twee werelden: de rust van wonen in het groen én alle gemakken van de stad binnen handbereik. Het hart van de wijk wordt gevormd door een prachtig tuinlandschap. Of je nu starter bent, een gezin hebt of op zoek bent naar een levensloopgeschikte woning - in Nij Wenwille vind je een thuis dat bij je past.
WOONGEREED
Deze fraaie, duurzame nieuwbouwwoningen worden door de ontwikkelaar zeer compleet opgeleverd. Desgewenst kun je via WoonGereed jouw gloednieuwe huis verhuisklaar afwerken en inrichten, tot en met de erfafscheiding en tuinaanleg aan toe. Kijk voor meer informatie op: woongereed.nl.
Deze online presentatie en eventuele bijlagen zijn samengesteld aan de hand van de ons bekende gegevens en afbeeldingen. Samen met de artist impressies geven zij een indruk van de toekomstige situatie. Zij pretenderen niet een exacte weergave te zijn van het uiteindelijke product. Rechten kunnen dan ook niet aan deze presentatie of bijlagen ontleend worden. Eventueel genoemde of getoonde afmetingen zijn indicatief.
Let op: het door de ontwikkelaar opgegeven gebruiksoppervlak kan afwijken van het daadwerkelijke woonoppervlak! Bij het gebruiksoppervlak kunnen ook bergzolders, bergingen of andere ruimten zijn gerekend, terwijl deze volgens de NEN2580 niet als woonoppervlak zijn aan te merken. Afhankelijk van de mogelijkheden kunt u bijvoorbeeld voor een bergzolder een dakraam toepassen, waardoor deze ruimte eventueel alsnog als woonoppervlak kan worden gerekend. Vraag de makelaar voor meer informatie en eventuele mogelijkheden.
Advertisement
Features
Transfer of ownership
- Last asking price
- € 370,000 vrij op naam
- Asking price per m²
- € 4,512
- Status
- Sold
Construction
- Type apartment
- Apartment with shared street entrance (apartment)
- Building type
- New property
- Year of construction
- 2026
- Type of roof
- Combination roof covered with roof tiles
- Quality marks
- Woningborg Garantiecertificaat
- Accessibility
- Accessible for people with a disability and accessible for the elderly
Surface areas and volume
- Areas
- Living area
- 82 m²
- Other space inside the building
- 5 m²
- Exterior space attached to the building
- 14 m²
- Volume in cubic meters
- 216 m³
Layout
- Number of rooms
- 3 rooms (2 bedrooms)
- Number of bath rooms
- 1 bathroom and 1 separate toilet
- Bathroom facilities
- Shower, toilet, and sink
- Number of stories
- 1 story
- Facilities
- Elevator and mechanical ventilation
- Located at
- 2nd floor
Energy
- Energy label
- A+++
- Insulation
- Completely insulated
- Heating
- Complete floor heating
- Hot water
- Electrical boiler
Exterior space
- Location
- Alongside a quiet road, alongside waterfront and in residential district
- Balcony/roof terrace
- Balcony present
Storage space
- Shed / storage
- Built-in
- Facilities
- Electricity
Parking
- Type of parking facilities
- Parking on private property
Popularity
637x
Viewed
7x
Saved
10-9-2025
On Funda
Neighborhood

De Folgeren centrum
Drachten- Residents
- 1,515
- Family with children
- 36%
- Avg. asking price / m²
- € 2,669
Discover the neighborhood
Curious about the housing supply, residents and local real estate agents?
Don’t want to forget this home?
Save it as a favorite. You’ll easily find it back and get notified when something changes.




