Vrijstaande woningen Emmelhage (Bouwnr. 168)8302 AA EmmeloordEmmeloord-Centrum-Centrum West
€ 805,500 v.o.n.
Map
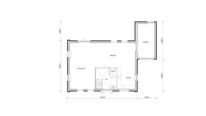
- 149 m²
- 1,042 m²
- 3
- A+++
Part of project Vrijstaande woningen Emmelhage, Emmeloord
Description
Advertisement
Features
Popularity
548x
Viewed
8x
Saved
2-10-2025
On Funda
Neighborhood
Discover the neighborhood
Curious about the housing supply, residents and local real estate agents?
Don’t want to forget this home?
Save it as a favorite. You’ll easily find it back and get notified when something changes.




