Sold under reservation
Entrada 3-kamer appartement type D (Bouwnr. 16)1703 DK HeerhugowaardBeveland
€ 342,000 v.o.n.
- 66 m²living area
- 2bedrooms
- A++energy label
Explore all available homes in project
Entrada - HeerhugowaardDescription
Entrada - Type D
De bouw van Entrada is gestart! Dat betekent dat genieten dichtbij is!
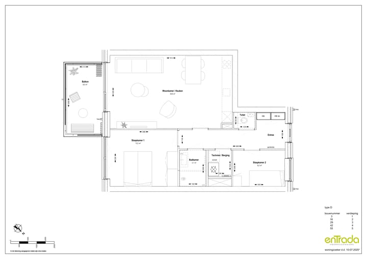
Dit appartement is net even anders dan alle andere appartementen in Entrada en daarmee uniek. De woonkamer is extra breed, grenst volledig aan het balkon en vormt zo letterlijk het verlengde van je woonruimte. Dit zorgt voor een ruimtelijke beleving en verbindt de buiten- en binnenruimte op een natuurlijke manier met elkaar.
Praktisch is het balkon zeker, want met het glazen schuifvouwsysteem bepaal je zelf of je het op mooie dagen wagenwijd openzet, of juist grotendeels afsluit zodat je ook op minder warme dagen kunt blijven genieten. Het balkon van type D ligt op het zuidoosten. Perfect om hier je eerste kop koffie te drinken terwijl je de zon ziet opkomen boven het Luipaardenpark.
In Entrada is dit type appartement er ook met de ligging op het noordwesten. Met zon in de middag en avond is het hier heerlijk vertoeven. Je hebt aan deze zijde een prachtig uitzicht op de tegenovergelegen waterpartij en het daaraan gelegen en groen ingerichte pleintje. Dat betreft type Ds.
De hoofdslaapkamer is extra luxe en licht dankzij de dubbele raampartij in de gevel. De tweede slaapkamer, de badkamer en de separate toiletruimte maken dit appartement compleet.
Op de begane grond beschik je over een eigen berging van nog eens 5 m², waar je eenvoudig je fiets parkeert en ruimte hebt voor extra spullen.
Alles op een rij:
- Woonoppervlakte: 66 m²
- Extra brede woonkamer
- Balkon 8,5 m², gelegen op het zuidoosten (type D) of noordwesten (type Ds)
- Balkon voorzien van glazen schuifvouwsysteem
- De types D liggen op de 1e t/m 5e verdieping
- 2 slaapkamers
- Badkamer en separate toiletruimte
- Extra (fietsen)berging op de begane grond
- Parkeren op eigen terrein
- Energielabel A++
In de woningzoeker op de projectwebsite vind je van alle bouwnummers de plattegronden en specificaties.
THUIS IN ENTRADA:
Door de ligging aan het water ervaar je ruimte en vrijheid en geniet je vanuit je appartement van de waterbeleving die nooit verveelt. Op de hoger gelegen verdiepingen heb je een prachtig uitzicht en ervaar je iedere dag opnieuw het schouwspel van de Hollandse luchten die door de grote schilders zo bekend zijn geworden. Vanzelfsprekend is ieder appartement zeer goed geïsoleerd en biedt de vloerverwarming heerlijk comfort. Daarnaast zijn alle appartementen voorzien van een ruim balkon met glazen schuifvouwwanden. Zo geniet je het hele jaar door van jouw eigen buitenruimte en vormt het een verlengde van je woonkamer. En op mooie dagen zet je de glazen wand wagenwijd open en haal je het zonnetje letterlijk in huis.
Gunstige financieringsvoorwaarden
Wil jij graag een appartement in Entrada kopen? Dan is het goed om te weten dat er een aantal belangrijke financiële voordelen zijn waar je gebruik van kunt maken. Namelijk;
Extra rentevoordeel NHG, De woning komt in aanmerking voor NHG. De rente van een hypotheek met NHG is al snel 0,5% goedkoper!
Rentekorting; Veel geldverstrekkers hebben een duurzaamheidskorting waarvoor de appartementen van Entrada in aanmerking komen. Alle appartementen hebben een energielabel A++
Starterslening, Voor stellen en singles die voor de eerste keer een woning gaan kopen is er voor Entrada een starterslening beschikbaar. Hiermee kun je tot soms wel € 50.000,- extra lenen tegen zeer gunstige voorwaarden. Daarmee komt de stap naar je eigen appartement ineens een heel stuk dichterbij!
Wij snappen dat het best lastig is om zelf te onderzoeken hoeveel je kunt lenen en wat daar allemaal bij komt kijken. Gelukkig zijn er goede en betrouwbare adviseurs die je daarbij kunnen helpen. Misschien heb je zelf al een adviseur op het oog. Zo niet, dan kun je kosteloos en vrijblijvend een eerste financiële check laten uitvoeren door CJK Advies of De Financiële Raadgevers. Zij weten precies wat de mogelijkheden zijn voor een financiering voor Entrada en koppelen dat aan jouw persoonlijke situatie.
In Entrada woon je modern en comfortabel!
Advertisement
Features
Transfer of ownership
- Listed since
- Acceptance
- Available in consultation
- Asking price
- € 342,000 vrij op naam
- Asking price per m²
- € 5,182
- Status
- Sold under reservation
Construction
- Year of construction
- After 2020
- Type apartment
- Galleried apartment (apartment)
- Building type
- New property
- Type of roof
- Flat roof covered with asphalt roofing
- Quality marks
- Woningborg Garantiecertificaat
Surface areas and volume
- Areas
- Living area
- 66 m²
- Exterior space attached to the building
- 9 m²
- External storage space
- 5 m²
- Volume in cubic meters
- 172 m³
Layout
- Number of rooms
- 3 rooms (2 bedrooms)
- Number of bath rooms
- 1 bathroom and 1 separate toilet
- Number of stories
- 1 story
- Facilities
- Elevator
- Located at
- 2nd floor
Energy
- Energy label
- A++
- Insulation
- Completely insulated
- Heating
- District heating and complete floor heating
- Hot water
- District heating
Exterior space
- Location
- Alongside waterfront and in centre
- Balcony/roof terrace
- Balcony present
Storage space
- Shed / storage
- Built-in
- Facilities
- Electricity
Parking
- Type of parking facilities
- Parking on private property and public parking
Popularity
1,102x
Viewed
18x
Saved
17-9-2025
On Funda
Neighborhood

Beveland
Heerhugowaard- Residents
- 5
Discover the neighborhood
Curious about the housing supply, residents and local real estate agents?
Don’t want to forget this home?
Save it as a favorite. You’ll easily find it back and get notified when something changes.




