Te Nijenhuiswei 359241 EA WijnjewoudeWijnjewoude-Centrum
€ 425,000 k.k.
- 167 m²living area
- 287 m²plot size
- 7bedrooms
- Aenergy label
Eye-catcherRuime hoekwoning | Grote aanbouw | 6 slaapkamers | Energielabel A
Description
Ruime hoekwoning | 167 m² woonoppervlak | 6 slaapkamers | Grote aanbouw | Energielabel A
Aan de rustige en groene Te Nijenhuiswei staat deze bijzonder royale en volledig gemoderniseerde hoekwoning. Met een woonoppervlakte van 167 m², zes slaapkamers, een grote aanbouw en een verzorgde tuin is dit een ideale gezinswoning met uitzonderlijk veel leefruimte. De afgelopen jaren is de woning grondig en kwalitatief gerenoveerd, waardoor deze instapklaar, energiezuinig en van alle comfortabele voorzieningen is voorzien.
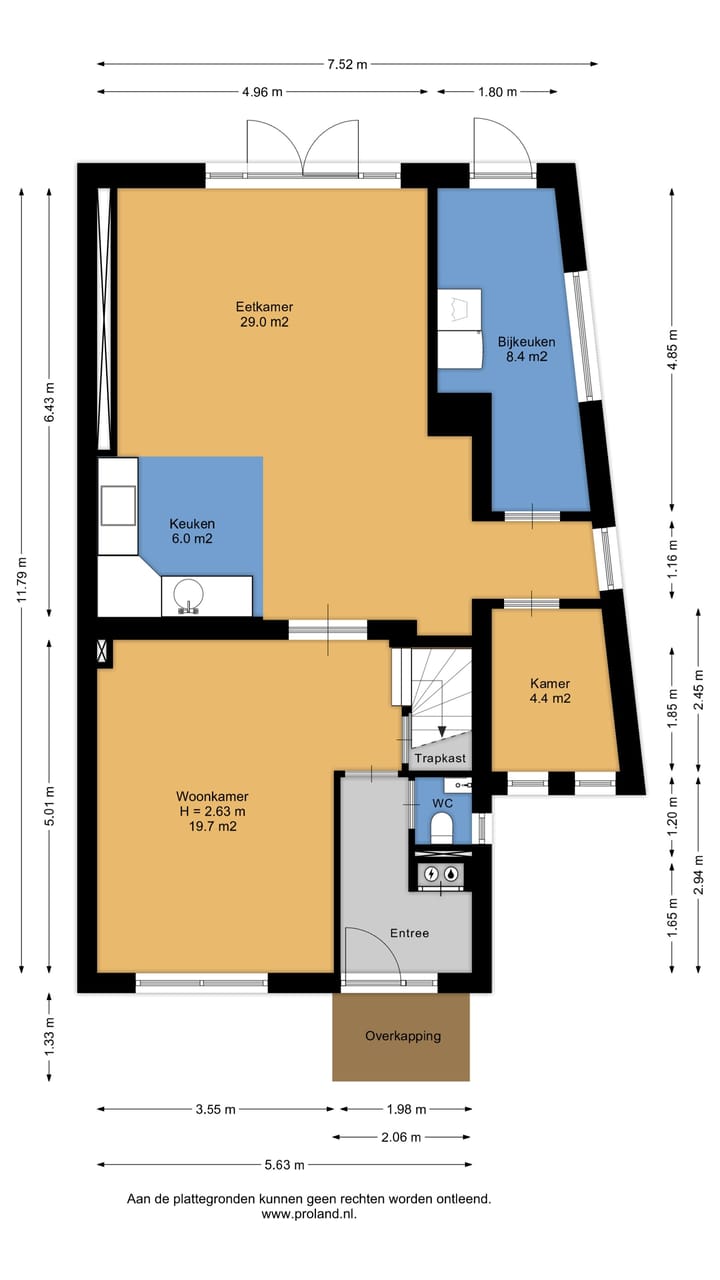
Indeling
Via de ruime hal – met modern toilet – bereikt u de lichte woonkamer. Door de grote aanbouw uit 2019 is een royale leefruimte ontstaan met veel lichtinval en een fijne verbinding met de keuken en achtertuin. De achterkeuken is ruim opgezet en voorzien van extra werkruimte, bergruimte en tuindeuren naar de achtertuin, waardoor dit een heerlijke plek is om te koken en samen te komen. Aangrenzend bevindt zich een extra kamer die uitstekend in te richten is als kantoor, speelkamer of hobbyruimte. De praktische bijkeuken beschikt over een wasmachineaansluiting, extra opbergmogelijkheden en directe toegang tot zowel de achtertuin als de vrijstaande schuur.
Eerste verdieping
Op de eerste verdieping bevinden zich vier volwaardige slaapkamers met fijne afmetingen. De badkamer is modern uitgevoerd en voorzien van een lichtbad, inloopdouche en toilet. Daarnaast is op deze verdieping een extra apart toilet aanwezig, wat het comfort voor het hele gezin vergroot. Op de overloop is een tweede wasmachineaansluiting aanwezig, waardoor er extra gebruiksgemak voor het huishouden is.
Tweede verdieping
Via de vaste trap bereikt u de tweede verdieping met twee extra slaapkamers. Dankzij de goede lichtinval en nette afwerking is deze verdieping ideaal als extra slaapverdieping, werkruimte of hobbyruimte. Hier bevindt zich tevens de CV-installatie, die in 2022 is vernieuwd.
Tuin
De achtertuin is in 2025 volledig opnieuw aangelegd en voorzien van nieuwe bestrating, borders en erfafscheiding. De tuin biedt veel privacy en een fijne mix van zon- en schaduwplekken. De voortuin is eveneens vernieuwd in 2025 en zorgt voor een frisse, nette uitstraling aan de voorkant van de woning. Achterop het perceel staat een vrijstaande royale schuur met brede overkapping. Deze schuur, in 2022 in de tuin geplaatst, vormt één mooi geheel met de overkapping. De schuur is volledig geïsoleerd en voorzien van elektriciteit, en daarmee perfect geschikt als werkplaats, hobbyruimte of extra bergruimte. Onder de overkapping kan het hele jaar door comfortabel worden genoten van de tuin.
Bijzonderheden
Wooncomfort & ruimte
• Woonoppervlakte 167 m²
• Grote aanbouw (2019) met royale leefkeuken
• 6 volwaardige slaapkamers
• Extra kamer op de begane grond (kantoor/speelkamer)
• Twee wasmachineaansluitingen: bijkeuken en overloop
Energie & techniek
• Energielabel A
• 11 zonnepanelen (370 Wp, 2022)
• Vloerisolatie: 10 cm spuitisolatie (2023)
• Vloerverwarming begane grond (2019)
• CV-installatie vernieuwd (2022)
• CV-leidingen vernieuwd (2019)
• Nieuwe meterkast (2022) + extra groep (2025)
Onderhoud & renovaties
• Volledige interne renovatie (2021)
• Dak vernieuwd met nieuwe platen en pannen (2022)
• Schilderwerk kozijnen (2025)
• Elektra boven toilet (2025)
Tuin & buitenruimte
• Achtertuin en voortuin volledig vernieuwd (2025)
• Vrijstaande, geïsoleerde schuur met elektriciteit en royale overkapping (2022)
• Gelegen in een rustige, groene woonomgeving in Wijnjewoude
Voorzieningen en omgeving Wijnjewoude
Wijnjewoude is een levendig en groen dorp in de gemeente Opsterland, waar rust, ruimte en natuur samenkomen. Het dorp biedt alle dagelijkse voorzieningen binnen handbereik, zoals een supermarkt, basisschool, sportverenigingen en diverse winkels. Ook horeca en lokale eetgelegenheden zijn goed vertegenwoordigd, waardoor er altijd iets te beleven valt in het dorp zelf. Voor ontspanning is de omgeving van Wijnjewoude ideaal. Fiets- en wandelroutes slingeren door bossen, heidevelden en langs uitgestrekte weilanden, waaronder het prachtige natuurgebied Duurswouderheide. Voor sportievelingen is er een tennisbaan, voetbalclub en andere sportvoorzieningen in de buurt. Het dorp heeft een prettige, sociale gemeenschap en een rustige, landelijke sfeer, waardoor het zowel voor gezinnen als voor senioren aantrekkelijk wonen is. Wijnjewoude combineert het beste van twee werelden: een groene, landelijke omgeving met volop mogelijkheden voor recreatie, en tegelijkertijd een centrale ligging met goede verbindingen naar grotere steden zoals Drachten, Heerenveen en Groningen.
Advertisement
Features
Transfer of ownership
- Listed since
- Acceptance
- Available in consultation
- Asking price
- € 425,000 kosten koper
- Asking price per m²
- € 2,545
- Status
- Available
Construction
- Kind of house
- Single-family home, corner house
- Building type
- Resale property
- Year of construction
- 1978
- Type of roof
- Gable roof covered with roof tiles
Surface areas and volume
- Areas
- Living area
- 167 m²
- Exterior space attached to the building
- 2 m²
- External storage space
- 23 m²
- Plot size
- 287 m²
- Volume in cubic meters
- 612 m³
Layout
- Number of rooms
- 8 rooms (7 bedrooms)
- Number of bath rooms
- 1 bathroom
- Bathroom facilities
- Shower, bath, toilet, and sink
- Number of stories
- 3 stories
Energy
- Energy label
- A
- Insulation
- Completely insulated
- Heating
- CH boiler
- Hot water
- CH boiler and solar collectors
- CH boiler
- HR (gas-fired combination boiler from 2014, in ownership)
Cadastral data
- LIPPENHUIZEN G 1373
- Cadastral map
- Area
- 287 m²
- Ownership situation
- Full ownership
Exterior space
- Garden
- Back garden and front garden
Storage space
- Shed / storage
- Detached wooden storage
- Facilities
- Electricity
- Insulation
- Completely insulated
Parking
- Type of parking facilities
- Parking on private property
Popularity
3,776x
Viewed
32x
Saved
17-11-2025
On Funda
Neighborhood
Discover the neighborhood
Curious about the housing supply, residents and local real estate agents?
Don’t want to forget this home?
Save it as a favorite. You’ll easily find it back and get notified when something changes.





